Кинотеатр La Géode – реконструкция
                Фото © Adrien Daste
        Заменить систему пришлось не только по причине ее устаревания: La Géode, вначале крайне популярный у парижан и туристов, к середине 2010-х окончательно проиграл соревнование с новейшими типами IMAX, 3D, виртуальной реальностью и так далее. Поэтому стало необходимым переделать его техническую начинку, включая зрительские ряды: они стали более отвесными, а современные кресла можно наклонять под шестью разными углами. Мест стало меньше: 286 вместо прежних 400.
Кинотеатр La Géode – реконструкция
                Фото © Adrien Daste
        До начала сеанса посетители могут сквозь остекление геодезического купола полюбоваться панорамой парка Ла-Виллет с его разнообразными сооружениями, а затем ее закрывает экран площадью 1000 м2. Его диаметр в полусферическом формате составляет 27 м, в формате IMAX Native он 24 м шириной. Экран состоит из 559 алюминиевых панелей с микроперфорацией.
Кинотеатр La Géode – реконструкция
                Фото © Adrien Daste
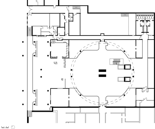
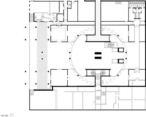
        Вход в кинотеатр теперь оформлен бихроматическим переливающимся стеклом: архитекторы называют его современным аналогом витражей. Внутри суровость бетонных пространств с кессонированным потолком максимально подчеркнута – в том числе соседством с большими яркими автоматами по продаже попкорна и лакомств, а также подсветкой. Здесь же устроен зал для мероприятий с проекционным экраном по периметру. В сферу-кинозал ведут два панорамных лифта и «парящая» 11-метровая лестница.
Кинотеатр La Géode – реконструкция
                Фото © Adrien Daste
        Кинотеатр La Géode – реконструкция
                Фото © Adrien Daste
        Кинотеатр La Géode – реконструкция
                Фото © Adrien Daste
        Кинотеатр La Géode – реконструкция
                Фото © Loci Anima
        
                        
            
            
        
                            