Офисный комплекс в районе The Springs
Фото © CreatAR_Images
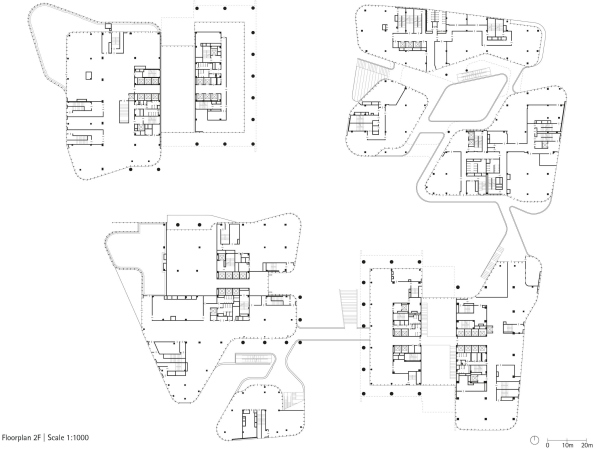
Среди заметных построек в Thе Springs – парные башни The Axiom от бюро Оле Шерена и офисы от Henning Larsen и ландшафтных архитекторов SLA. Между ними и появился офисный кампус по проекту gmp. Это композиция из трех пар прямоугольных корпусов (от 100 до 133 м высотой) и 4-этажного «органического» комплекса, расставленных по схеме вертушки. Между ними создан также «органический» ландшафт с магазинами и кафе, приподнятый над уровнем улицы.
Офисный комплекс в районе The Springs
Фото © CreatAR_Images
Постройки соединены между собой серией мостов, еще один пешеходный мост связывает их с территорией «Аксиомы». Прямоугольные корпуса с широких сторон защищены от солнца горизонтальными алюминиевыми «жалюзи» медного цвета: они выступают за пределы фасадов, размывая их силуэты.
Офисный комплекс в районе The Springs
Фото © CreatAR_Images
Основной арендатор кампуса gmp, общая площадь которого достигает 193 тыс. м2, – компания ByteDance, разработчик приложений TikTok и Douyin.
Офисный комплекс в районе The Springs
Фото © CreatAR_Images
Офисный комплекс в районе The Springs
Фото © CreatAR_Images
Офисный комплекс в районе The Springs
Фото © CreatAR_Images
