Штаб-квартира компании Kloboucká lesní в Брумов-Бильнице
Фотография © BoysPlayNice / предоставлена Mjölk architekti
Штаб-квартира компании Kloboucká lesní в Брумов-Бильнице
Фотография © BoysPlayNice / предоставлена Mjölk architekti
Штаб-квартира компании Kloboucká lesní в Брумов-Бильнице
Фотография © BoysPlayNice / предоставлена Mjölk architekti
Штаб-квартира компании Kloboucká lesní в Брумов-Бильнице
Фотография © BoysPlayNice / предоставлена Mjölk architekti
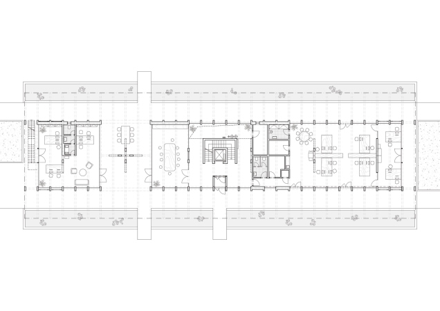
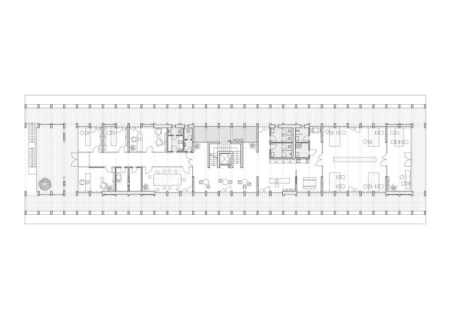
Административный корпус, спроектированный бюро Mjölk, располагается на территории фабрики в городке Брумов-Бильнице почти на границе со Словакией. Небольшой вытянутый объем, окруженный зеленой зоной, получил привычную двускатную кровлю. Его протяженный северный фасад обращен к железной дороге и городу, с этой же стороны расположен и главный вход. Таким образом удалось закрыть производственные цеха, находящиеся в глубине территории, но сохранить красивые виды на горный хребет вдалеке.
Штаб-квартира компании Kloboucká lesní в Брумов-Бильнице
Фотография © BoysPlayNice / предоставлена Mjölk architekti
Штаб-квартира компании Kloboucká lesní в Брумов-Бильнице
Фотография © BoysPlayNice / предоставлена Mjölk architekti
Штаб-квартира компании Kloboucká lesní в Брумов-Бильнице
Фотография © BoysPlayNice / предоставлена Mjölk architekti
Штаб-квартира компании Kloboucká lesní в Брумов-Бильнице
Фотография © BoysPlayNice / предоставлена Mjölk architekti
Штаб-квартира компании Kloboucká lesní в Брумов-Бильнице
Фотография © BoysPlayNice / предоставлена Mjölk architekti
Здание получило бетонное ядро и основной конструктив из клееного профилированного бруса со стальными крепежами. Его модульность позволяет при необходимости масштабировать рабочий объем. В отделке тоже использованы экологически безопасные панели и доски из лиственницы (террасы и галереи), сосны (пол) и ели (фасады, стены и мебель). Древесина очень тщательно подобрана по цвету и текстуре, при этом сырье взято из соседних лесов, а произведены материалы на самой фабрике, буквально в 100 метрах от места применения. Все это, конечно, необходимые составляющие предлагаемой компанией «устойчивой» технологии деревообработки и строительства из дерева.
Штаб-квартира компании Kloboucká lesní в Брумов-Бильнице
Фотография © BoysPlayNice / предоставлена Mjölk architekti
Штаб-квартира компании Kloboucká lesní в Брумов-Бильнице
Фотография © BoysPlayNice / предоставлена Mjölk architekti
Штаб-квартира компании Kloboucká lesní в Брумов-Бильнице
Фотография © BoysPlayNice / предоставлена Mjölk architekti
Штаб-квартира компании Kloboucká lesní в Брумов-Бильнице
Фотография © BoysPlayNice / предоставлена Mjölk architekti
Штаб-квартира компании Kloboucká lesní в Брумов-Бильнице
Фотография © BoysPlayNice / предоставлена Mjölk architekti
Традиционная, архитипическая форма постройки прекрасно сочетается с современными технологиями. Южная часть кровли выложена фотогальваническими элементами в сочетании со стеклом, вставленным там, где солнечные лучи не могут эффективно «работать», вырабатывая электричество. Батареи полностью обеспечивают потребности офиса в электроэнергии, а все излишки перенаправляются на нужды производства. При этом северный скат кровли целиком выполнен из стекла, пуская свет во внутренние зоны.
Штаб-квартира компании Kloboucká lesní в Брумов-Бильнице
Фотография © BoysPlayNice / предоставлена Mjölk architekti
Штаб-квартира компании Kloboucká lesní в Брумов-Бильнице
Фотография © BoysPlayNice / предоставлена Mjölk architekti
Штаб-квартира компании Kloboucká lesní в Брумов-Бильнице
Фотография © BoysPlayNice / предоставлена Mjölk architekti
Постройка вообще максимально открыта, так что снаружи очень хорошо видно как устроен и как работает офис. Чтобы реализовать такие внушительные площади остекления в условиях гуляющего деревянного каркаса, понадобились специальные подвижные крепления. Дополнительно предусмотрен сбор дождевой воды с кровли в специальные искусственные водоемы, затем она используется для полива и охлаждения в жаркий период. Кроме того, на территории фабрики работает отдельная котельная, в качестве топлива для которой используется стружка и другие отходы производства. Все это позволяет зданию штаб-квартиры быть полностью независимым.
Материалы предоставлены агентством Linka.
Штаб-квартира компании Kloboucká lesní в Брумов-Бильнице
Фотография © BoysPlayNice / предоставлена Mjölk architekti
Штаб-квартира компании Kloboucká lesní в Брумов-Бильнице
© Mjölk architekti
Штаб-квартира компании Kloboucká lesní в Брумов-Бильнице
© Mjölk architekti
Штаб-квартира компании Kloboucká lesní в Брумов-Бильнице
© Mjölk architekti
Штаб-квартира компании Kloboucká lesní в Брумов-Бильнице
© Mjölk architekti
