Организаторами конкурса выступили ФАУ «ФЦС» и Союз архитекторов России совместно с Минстроем и Минздравом. Общий призовой фонд составил 3 млн рублей. Дополнительно призерам будет предложено заключить договоры о передаче прав на дальнейшее использование их проектов. Заметим, что конкурс созвучен другому творческому соревнованию, посвященному проекту дома престарелых повторного применения, – его Минстрой и Минтруда провели в прошлом, 2019 году.
Ниже – шесть проектов, занявшие первые и вторые места в каждой конкурсной категории.
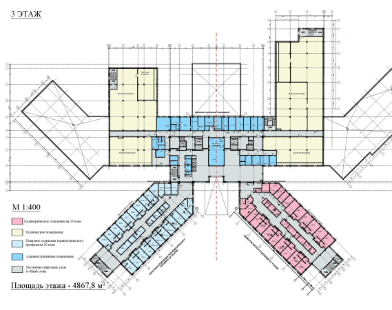
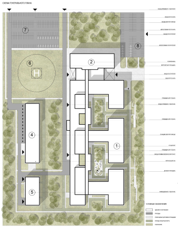
Больница на 400 коек
Первое место. Профиль
Типовой проект по созданию центральных районных больниц на 400 коек
Профиль
Как и требовало конкурсное задание, проект разработан с учетом возможной адаптации к различным типам местности и рельефа. Комплекс состоит из нескольких корпусов. Главный, лечебно-диагностический, связан с соседними переходами на разных уровнях, в том числе при помощи подземного коридора. Поликлиника решена как отдельностоящее здание и также связана с необходимыми для ее функционирования диагностическим и лабораторным блоками.
Помимо модульности и возможности вписать проект в любой подходящий по размерам участок, архитекторы продумали его потенциальную реализацию в разных климатических зонах, предложив для здания комплекса навесные утепленные фасады и несколько вариантов внешней отделки.
Жюри посчитало проект сбалансированным с точки зрения архитектурной и технологической составляющих, а также оценило продуманные решения по доставке и приему поступающих пациентов.
***
Второе место. UNK project
Типовой проект по созданию центральных районных больниц на 400 коек
UNK project
Согласно предложенной архитекторами концепции «Конструктор здоровья», комплекс ЦРБ состоит из небольших блоков, выделенных в соответствии с ее структурой. Поэтому проводить расширение или реконструкцию можно будет не приостанавливая работу учреждения. Кроме того, «конструктор» легко адаптировать к условиям конкретного участка и окружающей застройке.
В конкурсном проекте у больницы одиннадцать блоков, у каждого отдельный вход. Собственный блок – у главного вестибюля, где посетители могут получить нужную информацию, купить цветы и пообщаться с пациентами. Принцип модульности лег в основу не только компоновки комплекса, но также разработки планировочных решений. Одним из главных приоритетов стала простота навигации.
Внешняя отделка корпусов выполнена фасадными модулями. Этот выбор обусловлен заводским качеством, скоростью сборки и невысокой стоимостью. Кроме того, модули возможно производить по индивидуальному дизайну с корректировкой значимых для реализации в определенном регионе характеристик (толщина утеплителя, процент остекления и т.д.).
***
Больница на 240 коек
Первое место. Гинзбург Архитектс
Типовой проект по созданию центральных районных больниц на 240 коек
Гинзбург Архитектс
В этом проекте архитекторы постарались обеспечить баланс между архитектурой, технологиями и комфортом. Комплекс составлен из блоков, расположенных вдоль общей галереи. Их количество и функционал могут варьироваться. Проект легко адаптировать под нужную форму участка и специфику климата.
Концепция озеленения предусматривает обустройство парковой зоны, цветники во внутренних дворах, создание детской площадки и других открытых пространств для отдыха и общения. Кровли в большинстве задуманы эксплуатируемыми.
***
Второе место. Мастерская №3 Архитектурного бюро «Студия 44»
Типовой проект по созданию центральных районных больниц на 240 коек
Мастерская №3 Архитектурного бюро «Студия 44»
Отличительная особенность этого проекта – в создании общего коммуникационного пространства для нескольких корпусов больницы. Это главная общественная зона комплекса, первый этаж которой – место для ожидания и встреч, а второй – магистральный коридор, по которому можно попасть в нужное отделение. Доступ на второй этаж для посетителей закрыт. Также у этой части ЦРБ эксплуатируемая кровля, где пациенты могут прогуляться.
Всего в комплексе десять корпусов. Некоторые из них связаны с главным зданием при помощи подземного перехода. Составляющие проекта можно переставлять, менять местами, а расширение ЦРБ предлагается проводить за счет быстровозводимых сооружений или пристройки новых корпусов.
***
Больница на 80 коек
Первое место. Гипроздрав
Типовой проект по созданию центральных районных больниц на 80 коек
Гипроздрав
Преимущество проекта – в компактности, благодаря которой сокращаются расходы на строительство и эксплуатацию. Главный корпус удобно связан с основными подразделениями больницы. Комплекс состоит из нескольких блоков, количество и функционал которых можно менять.
Архитекторы обеспечили доступ в здание естественного света – в первую очередь, в помещения, где постоянно находятся пациенты или сотрудники. Материалы внутренней отделки подбирались с учетом необходимости влажной уборки и дезинфекции.
***
Второе место. Жилпроект
Типовой проект по созданию центральных районных больниц на 80 коек
Жилпроект
В этом проекте жюри отметило удачное архитектурное решение, благодаря которому комплекс можно будет вписать в любую городскую застройку. У каждого блока – свое оформление, что помогает ориентироваться на территории комплекса.
Большие площади остекления и солидные оконные проемы позволяют обеспечить здание естественным освещением и благоприятно сказываются на эмоциональном настрое пациентов. Из основного корпуса можно выйти на озелененную кровлю для прогулки.
Конструктор здоровья
© UNK project
***
В жюри конкурса вошли архитекторы Николай Шумаков, Владимир Плоткин, Борис Левянт, Владимир Легошин, а также сотрудники профильных департаментов Минздрава и Минстроя.
Конструктор здоровья
© UNK project
