Рынок «Багратионовский», проект реконструкции
© Wowhaus
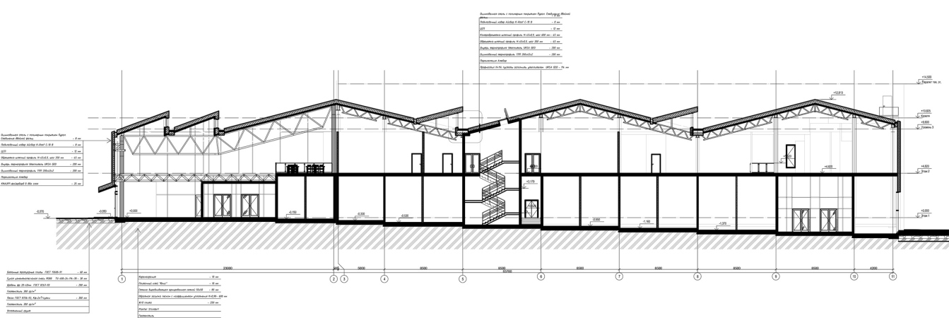
В остальном объем – прагматичный параллелепипед, и держится на металлокаркасе с большепролетной конструкцией.
Концепция рынка развивает жанр, популярный в последние 5-7 лет: рынка, совмещенного с кафе и магазинами, а в данном случае промышленными товарами и парковкой – подобный Депо на Лесной, так называемому «Центральному» на Трубной или Даниловскому рынку. Первый этаж отдан магазинам, в том числе промтоварным, причем магазины и кафе, выстроенные вдоль улицы, имеют отдельные входы с нее, усиливая элемент «городской» типологии торгового пространства в противовес классической замкнутости чистого ТЦ. Хотя, по словам архитекторов Wowhaus, «в ходе проекта менялась концепция заполнения рынка по финансовой модели и коммерческая сторона перевесила общественную. Не удалось в полной мере сохранить изначальный образ».
Фасад за время проектирования изменился довольно существенно. По просьбе заказчика уличный фасад был объединен имитирующими дерево экстерьерными HPL-панелями FunderMax, зазоры между которыми образовали крупный рисунок листьев орнаментально-экологичной тематики. Новой версией фасада занимались архитекторы UNK project под руководством ГАПа Александра Соколова.
Озеленение. ТЦ «Багратионовский»
© REFRAME ARCHITECTS
Получилось довольно цельно и в какой-то степени более, скажем так, «празднично», прежде всего из-за белого фона. Идея городских магазинов с выходом на улицу Барклая сохранилась, но их стеклянный фронт по-модернистики углубился, подчеркнув «нависание» верхнего объема и получив над собой некое подобие козырька.
Интерьеры ТЦ также разрабатывал Александр Соколов, но уже самостоятельно, основав в процессе работы над «Багратионовским» бюро Reframe architects.
ТЦ «Багратионовский»
Фотография © Александр Соколов
Структура интерьера также изменилась в процессе проектирования. Согласно концепции, почти треть (чуть меньше) здания со стороны метро была отведена двусветному атриуму. В его нижней части располагался ряд магазинов, а верх был открыт. Две трети (чуть больше) справа были двухэтажными и трактовались как балкон, выходящий в атриум, хотя внутри были довольно плотно заполнены торговыми пространствами. Первый этаж, напротив, был занят отдельно стоящими торговыми точками, между которыми можно было бы свободно перемещаться во всех направлениях.
После изменений структура нижнего и верхнего этажей поменялись местами: планировка точек, регулярно расставленных в пространстве, но свободно обтекаемых людьми, переехала на второй этаж, а первый оказался спланирован более плотно, с петлей коридоров вокруг центра. Таким образом внизу удалось разместить больше торговых площадей, что логично с точки зрения более высокой цены на аренду на первых этажах. Кроме того, ряд магазинов вдоль северо-западной стены получил второй ярус, а атриум сохранился, но стал похож на коридор двойной ширины и ввысоты.
Таким образом как прилавки с продуктами, так и вытянутый со стороны атриума фудкорт получили возможность использовать естественное освещение шедовых фонарей. Металлические конструкции пролетов открыты по желанию заказчика, что не только актуально уже пару десятилетий, но и помогает представить внутреннее пространство как более высокое и просторное. Атриум освещен высокими фонарями белого света, подчеркивающими его высоту.
Образность интерьера вторит фасаду вертикальными алюминиевыми ламелями, имитирующими дерево. Она построена на трех идеях: обилия зелени, дерева (для мебели использован сосновый брус) и простой ясной организации элементов пространства в виде модульной решетки черного металла.
Авторы разработали гибкую систему перегородок для арендных площадей, антивандальную мебель лаконичного вида и конструкции прилавков, группирующихся вокруг опорных столбов.
Интерьер получился характерным для современного фудкорта: натуральное дерево в сочетании с имитацией, черный цвет и зелень, несколько видов и типов освещенности, открытые металлические конструкции потолка – все это складывается в узнаваемый образ «хипстерского» пространства, где вкусно кормят и назначают встречи.
