Квартал Polaris
Фото © Julien Lanoo
Квартал Polaris
Фото © Cyrille Weiner
Такое пограничное положение поставило перед архитекторами LAN, создавшими мастерплан и проекты четырех из шести зданий, особенно сложную задачу. Ответом стал общий для всех построек ясный архитектурный язык, а также продуманная схема общественного пространства, откуда неизменно виден исторический центр Нанта за рекой. Несмотря на то, что квартал по сути – частный, его пешеходные зоны доступны всем (притом он закрыт для машин). Это проходы и площадь в центре, дополненные полуобщественными террасами у части корпусов.
Квартал Polaris
Фото © Fabrice Fouillet
Планировка разрабатывалась не по типичной схеме «зоны реконструкции» (ZAC), то есть не путем предписаний, а в ходе диалога архитекторов LAN и приглашенных ими к сотрудничеству бюро Abinal & Ropars и Atelier Stéphane Fernandez. Они обсуждали как общие решения, так и детали конкретных зданий. Особенность проекта – сравнительно высокая плотность (коэффициент 3,8, а пятно застройки составляет 38% от общей площади). Группировку объемов определили в том числе преобладающие направления ветров и угол падения солнечных лучей.
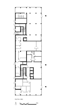
В квартале расположился кампус колледжа гостинично-ресторанного бизнеса «Ватель» (10 000 м2) с аудиториями, учебными рестораном и брассери, а также открытым для горожан кафе Vatel, а еще – 6500 м2 офисов, 250 квартир (доступных, социальных и коммерческих), студенческое жилье (300 квартир) и еще 600 м2 различных функций. Общая площадь всех зданий – около 35 000 м2.
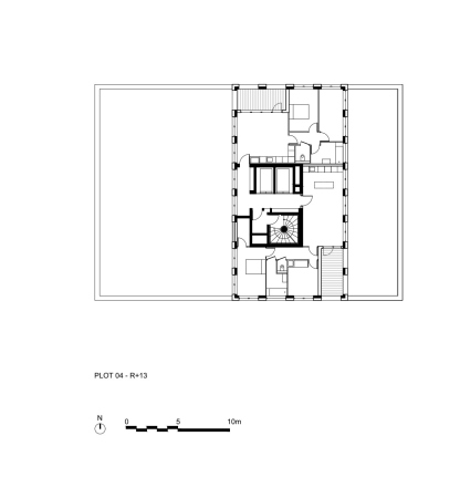
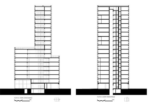
Главная постройка квартала – 18-этажная башня (строение 4), названная 360° View: 84% из ее квартир получили панорамные виды Луары. У ее подножия устроена главная площадь, а серебристый фасад из крацованного алюминия подчеркнут четырьмя высокими тополями. Ее облик постоянно меняется благодаря перфорированным ставням, которые жители открывают и закрывают в зависимости от погоды, времени суток и собственных желаний.
Квартал Polaris
© LAN
Квартал Polaris
© LAN
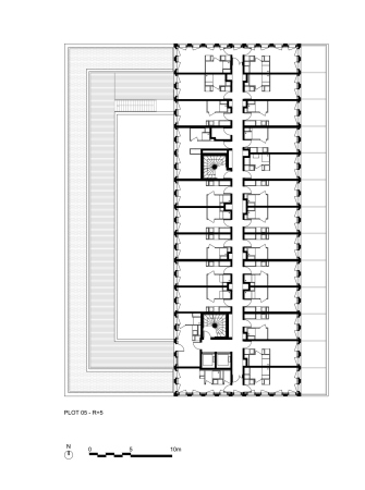
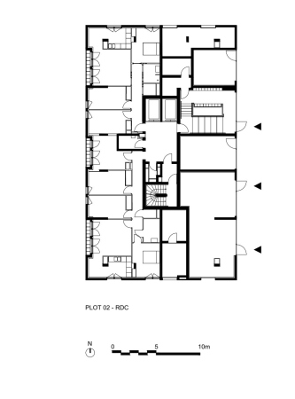
Строение 1
Архитекторы LAN
65 доступных и социальных квартир, магазины на первом этаже
4 689 м2
Лоджии выступают как буферные зоны.
Квартал Polaris. Строение 1
Фото © Charly Broyez
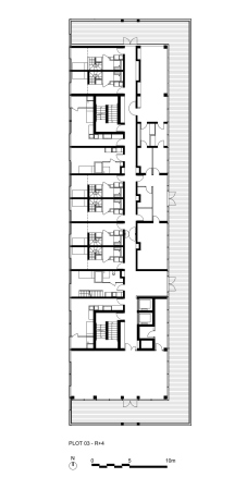
Строение 2
Архитекторы Abinal & Ropars
73 доступных и социальных квартир, магазины на первом этаже
5 325 м2
Здание играет центральную роль в квартале как «противовес» башне (№4). На этаже расположено от четырех до шести квартир с просторной лестничной площадкой в центре. Гостиные помещены посредине квартир и соединены с разными фасадами с помощью лоджий.
Квартал Polaris. Строение 2
Фото © Fabrice Fouillet
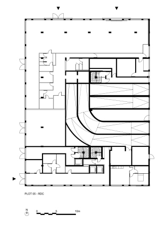
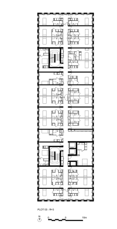
Строение 3
Архитекторы LAN
122 студенческих квартир, колледж «Ватель» с рестораном, брассери, складами.
5 934 м2
Две функции четко разграничены: это визуально выделенные верхняя и нижняя части здания.
Квартал Polaris. Строение 3
Фото © Fabrice Fouillet
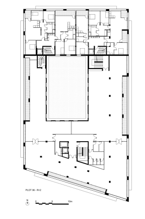
Строение 5
Архитекторы LAN
179 студенческих квартир, колледж «Ватель» с кафе Vatel, многоуровневый гараж
4 786 м2
Сложная конфигурация здания – результат его «отступления» от других корпусов квартала и многоквартирных домов 1970-х через дорогу.
Квартал Polaris. Строение 5
Фото © Fabrice Fouillet
Квартал Polaris. Строение 5
Фото © Fabrice Fouillet
Квартал Polaris. Строение 5
Фото © Fabrice Fouillet
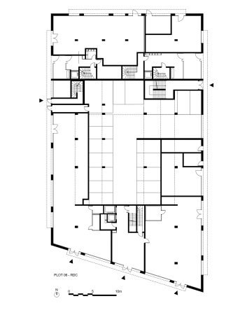
Строение 6
Архитекторы Atelier Stéphane Fernandez
34 коммерческие и доступные квартиры, офисы
9 424 м2
Среднеэтажное здание с трапециевидным планом отвечает контексту и меняет облик в зависимости от угла зрения.
Строение 4
Архитекторы LAN
79 коммерческих и доступных квартир, школа абитуриента (для подготовки к поступлению в средние профессиональные и высшие учебные заведения).
5 086 м2
Повороты объема 18-этажной башни отмечают высоту того или иного из соседних зданий. Квартиры варьируются по площади от одной до пяти спален. Большие квартиры-дуплексы помещены на 17 и 18 этажах.
Квартал Polaris. Строение 4
Фото © Cyrille Weiner
Квартал Polaris. Строение 4
Фото © Julien Lanoo
Квартал Polaris. Строение 4
Фото © Julien Lanoo
Квартал Polaris. Строение 4
Фото © Julien Lanoo
Квартал Polaris. Строение 4
Фото © Julien Lanoo
Квартал Polaris. Строение 4
Фото © Julien Lanoo
Квартал Polaris
© LAN
Квартал Polaris
© LAN
Квартал Polaris
© LAN
Квартал Polaris
© LAN
Квартал Polaris
© LAN
