Многоквартирный дом Wood Up
Фото © Charly Broyez
Рядом с этими парными башнями, в составе нового жилого квартала, и появился Wood Up. Он стоит торцом к реке, а северным фасадом – к магистральному бульвару Генерала Жана Симона, поэтому хорошо заметен издалека. Компактный 50-метровый объем вписывается в окружение из новых и более старых, в основном крупных жилых и офисных зданий, но сохранились здесь и некоторые индустриальные сооружения, например, ТЭЦ.
Многоквартирный дом Wood Up
Фото © Daisy Reillet
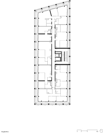
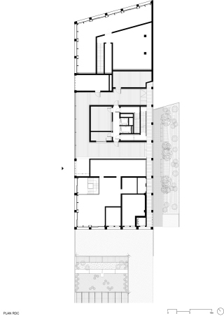
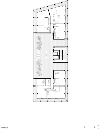
Над коммерческими двумя нижними ярусами Wood Up идут 132 квартиры, каждая со своим балконом-террасой. На 9-м этаже расположена 300-метровая полуоткрытая терраса (23х10 м), где жильцы могут заниматься спортом, общаться или отдыхать. Она подходит для собраний на 300 человек; для сборищ также пригодны сад на крыше (700 м2) и просторный вестибюль. Везде расставлена мебель из дерева, оставшегося от строительства дома.
Многоквартирный дом Wood Up
Фото © Daisy Reillet
Квартиры чередуются по этажам: над каждой большой (от 3 до 5 спален) расположены две малые (1–2 спальни). По углам размещены дуплексы.
Здание LAN – одно из первых с деревянной конструкцией, достигших во Франции высоты 50 м. Внутренний каркас выполнен из клееной древесины бука (опоры) и ели (балки): это экосертифицированный французский лес, доставленный в Париж традиционным «зеленым» способом – по Сене. Для внешнего каркаса использована Дугласова пихта. Из бетона выполнены фундамент и первые два этажа, а также стены жесткости. Перекрытия гибридные, бетонно-деревянные. Над террасой 9-го этажа и над 1-м этажом установлены стальные фермы.
Многоквартирный дом Wood Up
Фото © Daisy Reillet
