Мемориальная библиотека Мартина Лютера Кинга – реконструкция
© Trent Bell / фотография предоставлена архитекторами
Мемориальная библиотека Мартина Лютера Кинга – реконструкция
© Trent Bell / фотография предоставлена архитекторами
Мемориальная библиотека Мартина Лютера Кинга – реконструкция
© Mecanoo
Само здание, с 2007 внесенное в национальный реестр объектов наследия, находилось в не слишком хорошем техническом состоянии, остро ощущалась необходимость устройства дополнительных вертикальных коммуникаций, а стеллажи с книгами и рабочие места располагались таким образом, что сотрудникам и читателям катастрофически не хватало естественного света. Кроме того, наружные кирпичные стены отрезали внутренние зоны остекленного первого этажа от городского пространства. Решать все эти проблемы команде Франсин Хубен помогало местное бюро OTJ Architects. Также консультации проводились с бывшим сотрудником бюро Миса ван дер Роэ Джеком Боуменом, который принимал участие в разработке первоначального проекта, и с Чарльзом Касселлем, по инициативе которого библиотека и получила имя Мартина Лютера Кинга. Стоимость более чем трехлетней реконструкции составила около 211 млн долларов.
Мемориальная библиотека Мартина Лютера Кинга – реконструкция
© Trent Bell / фотография предоставлена архитекторами
Мемориальная библиотека Мартина Лютера Кинга – реконструкция
© Trent Bell / фотография предоставлена архитекторами
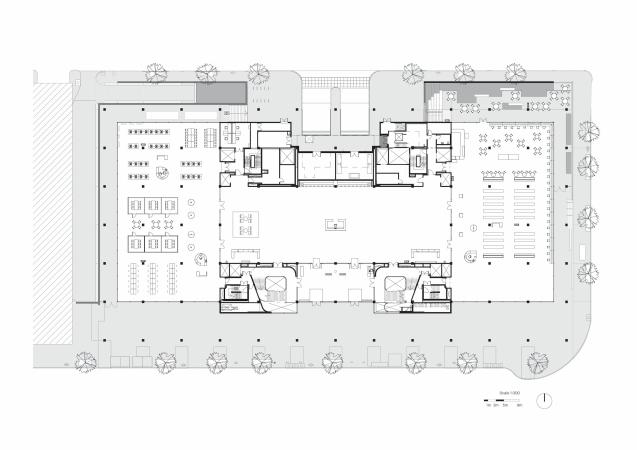
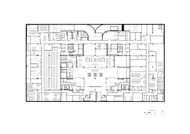
Разворот в сторону читателей и жителей города чувствуется уже у главного входа. В вестибюле архитекторы оформили фреску 1986 года, посвященную жизни Мартина Лютера Кинга, создав комфортное общественное пространство с деревянной отделкой и ступенями-скамейками. Чуть дальше расположена еще один новый мурал и, отделенное от лобби прозрачным стеклом, кафе, которое затем открывается и в городское пространство. За вертикальную коммуникацию отвечают две эффектные лестницы, пронизывающие все этажи и освещенные при помощи фонарей в перекрытиях. Они получили фирменные для нидерландского бюро динамичные органические формы и отделку из дерева. В подземном уровне, куда посетители раньше не имели доступ, устроили помещения для творчества, различных занятий и мастер-классов. Они делятся на «тихую» и «громкую» лаборатории. На втором этаже расположено пространство для детей, разбитое на три возрастных зоны. На третьем находится большой читальный зал, который теперь стал двусветным. Четвертый этаж и новый объем на крыше заняты комфортной аудиторией, вмещающей 291 человека. Она также отделана деревом.
Мемориальная библиотека Мартина Лютера Кинга – реконструкция
© Robert Benson / фотография предоставлена архитекторами
Мемориальная библиотека Мартина Лютера Кинга – реконструкция
© Trent Bell / фотография предоставлена архитекторами
Необходимость увеличить площади библиотеки и намерение архитекторов надстроить историческое здание вызвали наибольшую обеспокоенность по итогам конкурса. Но в результате, возникший на крыше дополнительный стеклянный павильон абсолютно не заметен снизу и никак не искажает созданный Мисом ван дер Роэ объем. А вот открывающиеся с озелененной эксплуатируемой кровли виды позволяют лучше почувствовать и понять столичный город.
Мемориальная библиотека Мартина Лютера Кинга – реконструкция
© Robert Benson / фотография предоставлена архитекторами
Мемориальная библиотека Мартина Лютера Кинга – реконструкция
© Trent Bell / фотография предоставлена архитекторами
Мемориальная библиотека Мартина Лютера Кинга – реконструкция
© Robert Benson / фотография предоставлена архитекторами
Мемориальная библиотека Мартина Лютера Кинга – реконструкция
© Trent Bell / фотография предоставлена архитекторами
Мемориальная библиотека Мартина Лютера Кинга – реконструкция
© Trent Bell / фотография предоставлена архитекторами
Мемориальная библиотека Мартина Лютера Кинга – реконструкция
© Trent Bell / фотография предоставлена архитекторами
Мемориальная библиотека Мартина Лютера Кинга – реконструкция
© Trent Bell / фотография предоставлена архитекторами
Мемориальная библиотека Мартина Лютера Кинга – реконструкция
© Trent Bell / фотография предоставлена архитекторами
Мемориальная библиотека Мартина Лютера Кинга – реконструкция
© Trent Bell / фотография предоставлена архитекторами
Мемориальная библиотека Мартина Лютера Кинга – реконструкция
© Robert Benson / фотография предоставлена архитекторами
Мемориальная библиотека Мартина Лютера Кинга – реконструкция
© Robert Benson / фотография предоставлена архитекторами
