Вокзал Эде – Вагенинген
Фото © Stijn Poelstra
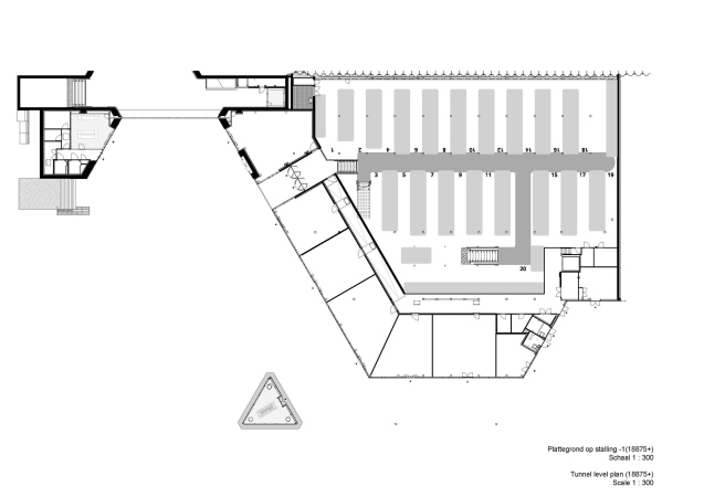
Первые стадии проекта разрабатывало в 2014–2016 бюро Mecanoo, дальнейшую работу вели архитекторы и инженеры Royal HaskoningDHV. Вокзал открылся в этом году, но строительство перехватывающего паркинга и тоннеля для велосипедистов и пешеходов между Эде и Вагенингеном, а также завершение благоустройства (общая площадь – 1,2 га) продолжатся до 2026.
Вокзал Эде – Вагенинген
Фото © Stijn Poelstra
Эде и Вагенинген находятся в лесистой области Велюве, знаменитой своими национальными парками. Кроны деревьев и пробивающийся сквозь них солнечный свет воплощены в проекте через деревянные перекрытия. Они состоят из 23 треугольников (длиной 27 метров каждый) и объединяют все пространства вокзала, обеспечивая их естественным освещением.
Вокзал Эде – Вагенинген
Фото © Stijn Poelstra
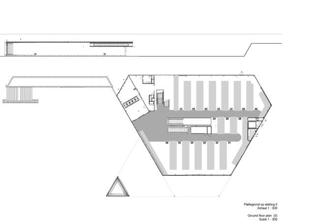
Интуитивное перемещение пассажиров по вокзалу заложено в основу проекта. От платформ видны все ключевые опции для пересадок и дальнейшего путешествия: привокзальная площадь, автовокзал, зона высадки пассажиров, стоянка такси и велопарковка на 5500 мест. Мост для пешеходов и велосипедистов к востоку от станции упрощает их передвижение. Одновременно им удастся полюбоваться открывающимся отсюда панорамным видом лесов Велюве.
Вокзал Эде – Вагенинген
Фото © Stijn Poelstra
Прежнее здание вокзала давно облюбовали летучие мыши, поэтому и в новом предусмотрены части, напоминающие привычные этим животным пещеры. Кроме того, здесь живут сверчки редкого вида Eumodicogryllus Bordigalensis, которые встречаются только на железнодорожных путях. Необходимость сохранить их среду обитания стала главным отправным пунктом при разработке проекта благоустройства.
Вокзал Эде – Вагенинген
Фото © Stijn Poelstra
Вокзал Эде – Вагенинген
© Mecanoo
Вокзал Эде – Вагенинген
© Mecanoo
