Отель Author′s Room в комплексе Aranya на озере Цзюлунху
Фото © DONG Image
Отель Author′s Room в комплексе Aranya на озере Цзюлунху
Фото © Xia Zhi
Статуса гостинице добавляет то, что она появилась под брендом naïve Imaginist. Он принадлежит известному издательству интеллектуальной литературы, как художественной, так и нон-фикшн, – «Лисянгуо», что можно перевести как «утопия», но его официальное международное название как раз Imaginist (это отсылка к умению вообразить другие, новые возможности). Naïve здесь означает невинность, любопытство, отказ от привычного и устоявшегося. Под таким «нагруженным» брендом издательство стало открывать в крупных городах совмещенные с кофейнями и коктейльными барами книжные магазины, а позднее добавила в набор функций и отели.
Отель Author′s Room в комплексе Aranya на озере Цзюлунху
Фото © Xia Zhi
Отель Author′s Room в комплексе Aranya на озере Цзюлунху
Фото © DONG Image
Архитекторы отталкивались от типичного для старой части Гуанчжоу типа цилоу («дом с аркадой») 1920–1930-х. Аркады защищали пешеходов от ливней и яркого солнца и скрывали за собой лавки; выше располагалось жилье. Таким же образом здесь галерея из пятигранных столбов вдоль берега реки защищает гуляющих от капризов погоды, а за ней начинается общественная зона первого этажа с книжным магазином, совмещенным со стойкой администратора, и также сблокированными кофейней и «неформальным» рестораном. Выше, на трех этажах, устроены номера.
Лаконичная стоечно-балочная конструкция задает здесь ритм и служит главным выразительным средством. В ее ячейках по речному фасаду устроены террасы номеров, по заднему за опорами скрываются коридоры-галереи. Эту четкую схему нарушают два приема: уменьшение площади этажей по мере возрастания высоты, формирующее озелененные ступени-террасы, а также существование дворов-атриумов. Проницаемость всех пространств более чем уместна в теплом субтропическом климате.
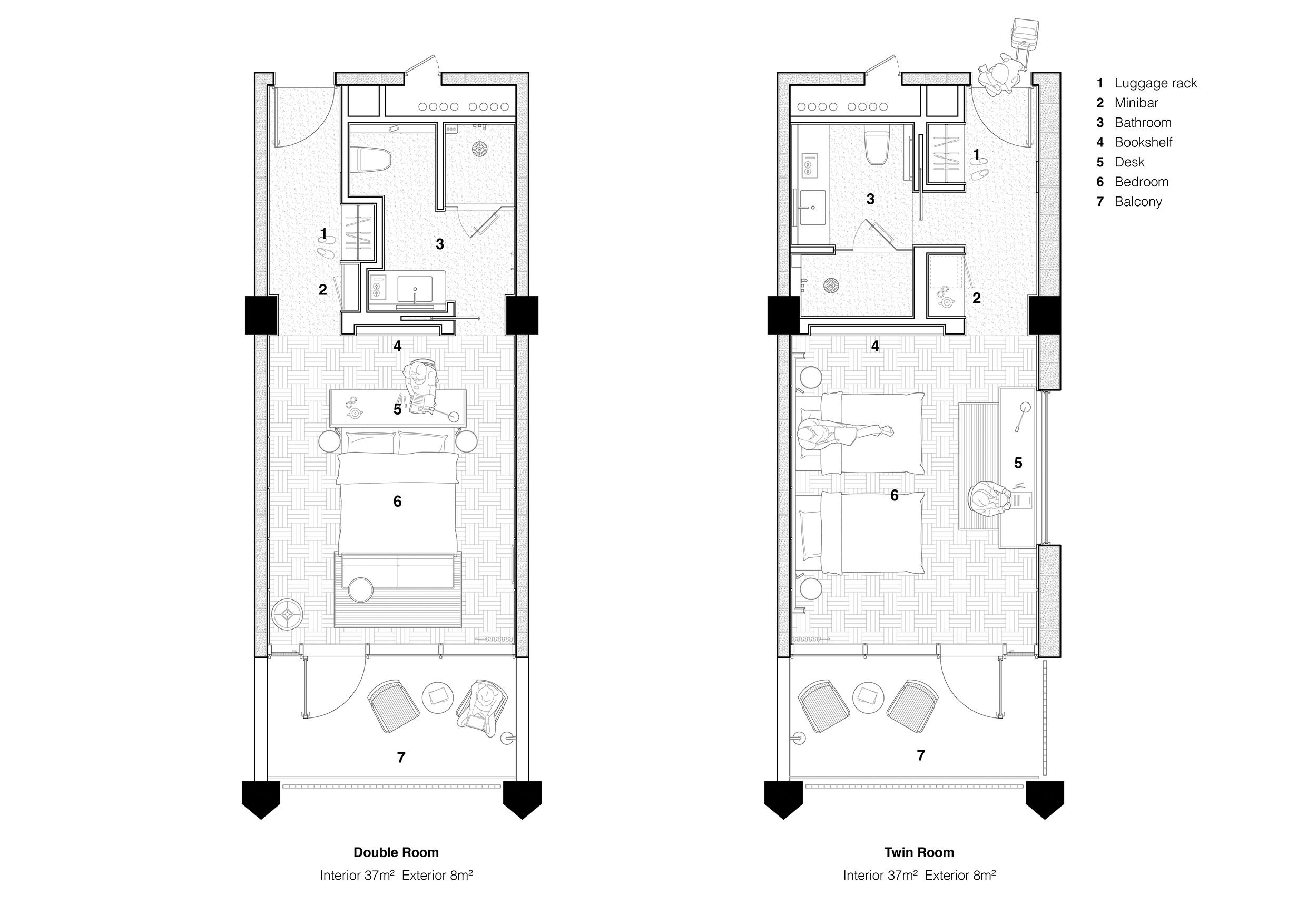
Главным материалом стал окрашенный в массе бетон: этот оттенок красного напоминает о почве и старом кирпиче и должен хорошо «состариться», как считают авторы. Контраст с ним по фактуре создает медная обшивка пластичных объемов лестнично-лифтового узла и пожарной лестницы по заднему фасаду. Внутри использованы разные виды натурального камня, традиционная гуанчжоуская плитка, водостойкая фанера; нельзя забыть и о книгах издательства Imaginist, расставленных везде, от ресепшн до номеров, где изголовье кровати порой совмещено со столом для чтения.
Отель Author′s Room в комплексе Aranya на озере Цзюлунху
Фото © Xia Zhi
Отель Author′s Room в комплексе Aranya на озере Цзюлунху
Фото © The Wethos
Отель Author′s Room в комплексе Aranya на озере Цзюлунху
Фото © Xia Zhi
Отель Author′s Room в комплексе Aranya на озере Цзюлунху
Фото © Xia Zhi
