RSS
Отель Author′s Room в комплексе Aranya на озере Цзюлунху
Фото © DONG Image

Отель Author′s Room в комплексе Aranya на озере Цзюлунху


/ Author′s Room Hotel · Aranya Jiulong Lake

информация:

B.L.U.E. Architecture Studio / Китай
Отель Author′s Room в комплексе Aranya на озере Цзюлунху
Фото © Xia Zhi

Архи.ру об этом объекте:

29.04.2026

Стоечно-балочное гостеприимство

Отель Author’s Room по проекту B.L.U.E. Architecture Studio в агломерации Гуанчжоу соединяет для постояльцев отдых на природе с флером интеллектуальности от видного китайского издательства.

читать дальше
Отель Author′s Room в комплексе Aranya на озере Цзюлунху
Фото © Xia Zhi
Отель Author′s Room в комплексе Aranya на озере Цзюлунху
Фото © The Wethos
Отель Author′s Room в комплексе Aranya на озере Цзюлунху
Фото © The Wethos
Отель Author′s Room в комплексе Aranya на озере Цзюлунху
Фото © Xia Zhi
Отель Author′s Room в комплексе Aranya на озере Цзюлунху
Фото © Xia Zhi
Отель Author′s Room в комплексе Aranya на озере Цзюлунху
Фото © The Wethos
Отель Author′s Room в комплексе Aranya на озере Цзюлунху
Фото © Xia Zhi
Отель Author′s Room в комплексе Aranya на озере Цзюлунху
Фото © DONG Image
Отель Author′s Room в комплексе Aranya на озере Цзюлунху
Фото © Xia Zhi
Отель Author′s Room в комплексе Aranya на озере Цзюлунху
Фото © Xia Zhi
Отель Author′s Room в комплексе Aranya на озере Цзюлунху
Фото © Xia Zhi
Отель Author′s Room в комплексе Aranya на озере Цзюлунху
Фото © Xia Zhi
Отель Author′s Room в комплексе Aranya на озере Цзюлунху
Фото © Xia Zhi
Отель Author′s Room в комплексе Aranya на озере Цзюлунху
Фото © Xia Zhi
Отель Author′s Room в комплексе Aranya на озере Цзюлунху
Фото © Xia Zhi
Отель Author′s Room в комплексе Aranya на озере Цзюлунху
Фото © Xia Zhi
Отель Author′s Room в комплексе Aranya на озере Цзюлунху
Фото © Xia Zhi
Отель Author′s Room в комплексе Aranya на озере Цзюлунху
Фото © Xia Zhi
Отель Author′s Room в комплексе Aranya на озере Цзюлунху
Фото © Xia Zhi
Отель Author′s Room в комплексе Aranya на озере Цзюлунху
Фото © The Wethos
Отель Author′s Room в комплексе Aranya на озере Цзюлунху
Фото © Xia Zhi
Отель Author′s Room в комплексе Aranya на озере Цзюлунху
Фото © Xia Zhi
Отель Author′s Room в комплексе Aranya на озере Цзюлунху
Фото © Xia Zhi
Отель Author′s Room в комплексе Aranya на озере Цзюлунху
Фото © Xia Zhi
Отель Author′s Room в комплексе Aranya на озере Цзюлунху
Фото © Xia Zhi
Отель Author′s Room в комплексе Aranya на озере Цзюлунху
Фото © Xia Zhi
Отель Author′s Room в комплексе Aranya на озере Цзюлунху
Фото © Xia Zhi
Отель Author′s Room в комплексе Aranya на озере Цзюлунху
Фото © Xia Zhi
Отель Author′s Room в комплексе Aranya на озере Цзюлунху
Фото © Xia Zhi
Отель Author′s Room в комплексе Aranya на озере Цзюлунху
Фото © Xia Zhi
Отель Author′s Room в комплексе Aranya на озере Цзюлунху
Фото © Xia Zhi
Отель Author′s Room в комплексе Aranya на озере Цзюлунху
Фото © Xia Zhi
Отель Author′s Room в комплексе Aranya на озере Цзюлунху
Фото © Xia Zhi
Отель Author′s Room в комплексе Aranya на озере Цзюлунху
Фото © Xia Zhi
Отель Author′s Room в комплексе Aranya на озере Цзюлунху
Фото © Xia Zhi
Отель Author′s Room в комплексе Aranya на озере Цзюлунху
Фото © Xia Zhi
Отель Author′s Room в комплексе Aranya на озере Цзюлунху
Фото © Xia Zhi
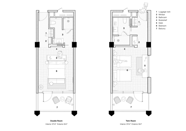
Отель Author′s Room в комплексе Aranya на озере Цзюлунху
© B.L.U.E. Architecture Studio
Отель Author′s Room в комплексе Aranya на озере Цзюлунху
© B.L.U.E. Architecture Studio
Отель Author′s Room в комплексе Aranya на озере Цзюлунху
© B.L.U.E. Architecture Studio
Отель Author′s Room в комплексе Aranya на озере Цзюлунху
© B.L.U.E. Architecture Studio
Отель Author′s Room в комплексе Aranya на озере Цзюлунху
© B.L.U.E. Architecture Studio
Отель Author′s Room в комплексе Aranya на озере Цзюлунху
© B.L.U.E. Architecture Studio
Отель Author′s Room в комплексе Aranya на озере Цзюлунху
© B.L.U.E. Architecture Studio
Отель Author′s Room в комплексе Aranya на озере Цзюлунху
© B.L.U.E. Architecture Studio
Отель Author′s Room в комплексе Aranya на озере Цзюлунху
© B.L.U.E. Architecture Studio
Отель Author′s Room в комплексе Aranya на озере Цзюлунху
© B.L.U.E. Architecture Studio
Отель Author′s Room в комплексе Aranya на озере Цзюлунху
© B.L.U.E. Architecture Studio
Отель Author′s Room в комплексе Aranya на озере Цзюлунху
© B.L.U.E. Architecture Studio
Отель Author′s Room в комплексе Aranya на озере Цзюлунху
© B.L.U.E. Architecture Studio
Отель Author′s Room в комплексе Aranya на озере Цзюлунху
© B.L.U.E. Architecture Studio
Отель Author′s Room в комплексе Aranya на озере Цзюлунху
© B.L.U.E. Architecture Studio

Избранные архитекторы:

  • Хельмут Ян
  • Рафаэль Монео
  • Стивен Холл
  • Бернар Чуми
  • Ренцо Пьяно
  • Оскар Нимейер
  • Том Мейн
  • Сигэру Бан
  • Сантьяго Калатрава

Проект из каталога (случайный выбор)

ЖК Foriver
Исак Хедман, Магнус Монссон, Мария Броман, Сергей Федаценка, 2020 – 2020
ЖК Foriver

Избранные постройки:

  • Выставочный зал Stadthaus Ulm
  • Дворец-музей Лоо – реконструкция
  • Монастырь ордена кларисс
  • Башня Тысячелетия
  • Здание Banca del Gottardo
  • Башня La Marseillaise
  • Новый учебный корпус Колледжа Купер-Юнион
  • Небоскреб SBF
  • Олимпийский хоккейный стадион – Pala Alpitour

Зарубежные новости