Размещено на портале Архи.ру (www.archi.ru)

29.04.2026

Стоечно-балочное гостеприимство

Объект:
Отель Author′s Room в комплексе Aranya на озере Цзюлунху
Адрес:
Китай, None, Гуанчжоу.
Мастерская:
B.L.U.E. Architecture Studio

Отель Author’s Room по проекту B.L.U.E. Architecture Studio в агломерации Гуанчжоу соединяет для постояльцев отдых на природе с флером интеллектуальности от видного китайского издательства.

Author’s Room Hotel на 18 номеров расположен в курортно-развлекательном комплексе на озере Цзюлунху. Девелопер комплекса, Aranya, больше всего известен элегантной «архитектурной коллекцией» на другом курорте, Циньхуандао, но здесь возвел условный «европейский» городок. Новый отель от пекинского B.L.U.E. Architecture Studio отличается от окружения: это как раз пример «элегантной» линии.
 
Статуса гостинице добавляет то, что она появилась под брендом naïve Imaginist. Он принадлежит известному издательству интеллектуальной литературы, как художественной, так и нон-фикшн, – «Лисянгуо», что можно перевести как «утопия», но его официальное международное название как раз Imaginist (это отсылка к умению вообразить другие, новые возможности). Naïve здесь означает невинность, любопытство, отказ от привычного и устоявшегося. Под таким «нагруженным» брендом издательство стало открывать в крупных городах совмещенные с кофейнями и коктейльными барами книжные магазины, а позднее добавила в набор функций и отели.
 
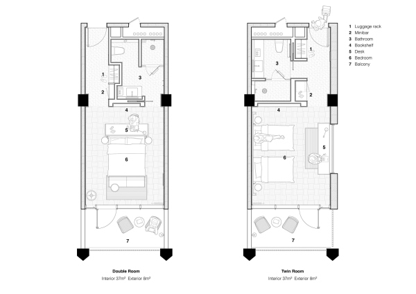
Архитекторы отталкивались от типичного для старой части Гуанчжоу типа цилоу («дом с аркадой») 1920–1930-х. Аркады защищали пешеходов от ливней и яркого солнца и скрывали за собой лавки; выше располагалось жилье. Таким же образом здесь галерея из пятигранных столбов вдоль берега реки защищает гуляющих от капризов погоды, а за ней начинается общественная зона первого этажа с книжным магазином, совмещенным со стойкой администратора, и также сблокированными кофейней и «неформальным» рестораном. Выше, на трех этажах, устроены номера.
 


Лаконичная стоечно-балочная конструкция задает здесь ритм и служит главным выразительным средством. В ее ячейках по речному фасаду устроены террасы номеров, по заднему за опорами скрываются коридоры-галереи. Эту четкую схему нарушают два приема: уменьшение площади этажей по мере возрастания высоты, формирующее озелененные ступени-террасы, а также существование дворов-атриумов. Проницаемость всех пространств более чем уместна в теплом субтропическом климате.
 
Главным материалом стал окрашенный в массе бетон: этот оттенок красного напоминает о почве и старом кирпиче и должен хорошо «состариться», как считают авторы. Контраст с ним по фактуре создает медная обшивка пластичных объемов лестнично-лифтового узла и пожарной лестницы по заднему фасаду. Внутри использованы разные виды натурального камня, традиционная гуанчжоуская плитка, водостойкая фанера; нельзя забыть и о книгах издательства Imaginist, расставленных везде, от ресепшн до номеров, где изголовье кровати порой совмещено со столом для чтения.

Отель Author′s Room в комплексе Aranya на озере Цзюлунху
Отель Author′s Room в комплексе Aranya на озере Цзюлунху
Фото © DONG Image
Отель Author′s Room в комплексе Aranya на озере Цзюлунху
Отель Author′s Room в комплексе Aranya на озере Цзюлунху
Фото © Xia Zhi
Отель Author′s Room в комплексе Aranya на озере Цзюлунху
Отель Author′s Room в комплексе Aranya на озере Цзюлунху
Фото © Xia Zhi
Отель Author′s Room в комплексе Aranya на озере Цзюлунху
Отель Author′s Room в комплексе Aranya на озере Цзюлунху
Фото © DONG Image
Отель Author′s Room в комплексе Aranya на озере Цзюлунху Фото © The Wethos
Отель Author′s Room в комплексе Aranya на озере Цзюлунху
Фото © The Wethos
Отель Author′s Room в комплексе Aranya на озере Цзюлунху Фото © The Wethos
Отель Author′s Room в комплексе Aranya на озере Цзюлунху
Фото © The Wethos
Отель Author′s Room в комплексе Aranya на озере Цзюлунху Фото © Xia Zhi
Отель Author′s Room в комплексе Aranya на озере Цзюлунху
Фото © Xia Zhi
Отель Author′s Room в комплексе Aranya на озере Цзюлунху Фото © Xia Zhi
Отель Author′s Room в комплексе Aranya на озере Цзюлунху
Фото © Xia Zhi
Отель Author′s Room в комплексе Aranya на озере Цзюлунху Фото © The Wethos
Отель Author′s Room в комплексе Aranya на озере Цзюлунху
Фото © The Wethos
Отель Author′s Room в комплексе Aranya на озере Цзюлунху Фото © Xia Zhi
Отель Author′s Room в комплексе Aranya на озере Цзюлунху
Фото © Xia Zhi
Отель Author′s Room в комплексе Aranya на озере Цзюлунху Фото © Xia Zhi
Отель Author′s Room в комплексе Aranya на озере Цзюлунху
Фото © Xia Zhi
Отель Author′s Room в комплексе Aranya на озере Цзюлунху Фото © Xia Zhi
Отель Author′s Room в комплексе Aranya на озере Цзюлунху
Фото © Xia Zhi
Отель Author′s Room в комплексе Aranya на озере Цзюлунху Фото © Xia Zhi
Отель Author′s Room в комплексе Aranya на озере Цзюлунху
Фото © Xia Zhi
Отель Author′s Room в комплексе Aranya на озере Цзюлунху Фото © Xia Zhi
Отель Author′s Room в комплексе Aranya на озере Цзюлунху
Фото © Xia Zhi
Отель Author′s Room в комплексе Aranya на озере Цзюлунху Фото © Xia Zhi
Отель Author′s Room в комплексе Aranya на озере Цзюлунху
Фото © Xia Zhi
Отель Author′s Room в комплексе Aranya на озере Цзюлунху Фото © Xia Zhi
Отель Author′s Room в комплексе Aranya на озере Цзюлунху
Фото © Xia Zhi
Отель Author′s Room в комплексе Aranya на озере Цзюлунху Фото © Xia Zhi
Отель Author′s Room в комплексе Aranya на озере Цзюлунху
Фото © Xia Zhi
Отель Author′s Room в комплексе Aranya на озере Цзюлунху
Отель Author′s Room в комплексе Aranya на озере Цзюлунху
Фото © Xia Zhi
Отель Author′s Room в комплексе Aranya на озере Цзюлунху Фото © Xia Zhi
Отель Author′s Room в комплексе Aranya на озере Цзюлунху
Фото © Xia Zhi
Отель Author′s Room в комплексе Aranya на озере Цзюлунху Фото © Xia Zhi
Отель Author′s Room в комплексе Aranya на озере Цзюлунху
Фото © Xia Zhi
Отель Author′s Room в комплексе Aranya на озере Цзюлунху
Отель Author′s Room в комплексе Aranya на озере Цзюлунху
Фото © The Wethos
Отель Author′s Room в комплексе Aranya на озере Цзюлунху Фото © Xia Zhi
Отель Author′s Room в комплексе Aranya на озере Цзюлунху
Фото © Xia Zhi
Отель Author′s Room в комплексе Aranya на озере Цзюлунху Фото © Xia Zhi
Отель Author′s Room в комплексе Aranya на озере Цзюлунху
Фото © Xia Zhi
Отель Author′s Room в комплексе Aranya на озере Цзюлунху Фото © Xia Zhi
Отель Author′s Room в комплексе Aranya на озере Цзюлунху
Фото © Xia Zhi
Отель Author′s Room в комплексе Aranya на озере Цзюлунху Фото © Xia Zhi
Отель Author′s Room в комплексе Aranya на озере Цзюлунху
Фото © Xia Zhi
Отель Author′s Room в комплексе Aranya на озере Цзюлунху Фото © Xia Zhi
Отель Author′s Room в комплексе Aranya на озере Цзюлунху
Фото © Xia Zhi
Отель Author′s Room в комплексе Aranya на озере Цзюлунху Фото © Xia Zhi
Отель Author′s Room в комплексе Aranya на озере Цзюлунху
Фото © Xia Zhi
Отель Author′s Room в комплексе Aranya на озере Цзюлунху Фото © Xia Zhi
Отель Author′s Room в комплексе Aranya на озере Цзюлунху
Фото © Xia Zhi
Отель Author′s Room в комплексе Aranya на озере Цзюлунху Фото © Xia Zhi
Отель Author′s Room в комплексе Aranya на озере Цзюлунху
Фото © Xia Zhi
Отель Author′s Room в комплексе Aranya на озере Цзюлунху Фото © Xia Zhi
Отель Author′s Room в комплексе Aranya на озере Цзюлунху
Фото © Xia Zhi
Отель Author′s Room в комплексе Aranya на озере Цзюлунху Фото © Xia Zhi
Отель Author′s Room в комплексе Aranya на озере Цзюлунху
Фото © Xia Zhi
Отель Author′s Room в комплексе Aranya на озере Цзюлунху
Отель Author′s Room в комплексе Aranya на озере Цзюлунху
Фото © Xia Zhi
Отель Author′s Room в комплексе Aranya на озере Цзюлунху Фото © Xia Zhi
Отель Author′s Room в комплексе Aranya на озере Цзюлунху
Фото © Xia Zhi
Отель Author′s Room в комплексе Aranya на озере Цзюлунху Фото © Xia Zhi
Отель Author′s Room в комплексе Aranya на озере Цзюлунху
Фото © Xia Zhi
Отель Author′s Room в комплексе Aranya на озере Цзюлунху
Отель Author′s Room в комплексе Aranya на озере Цзюлунху
Фото © Xia Zhi
Отель Author′s Room в комплексе Aranya на озере Цзюлунху Фото © Xia Zhi
Отель Author′s Room в комплексе Aranya на озере Цзюлунху
Фото © Xia Zhi
Отель Author′s Room в комплексе Aranya на озере Цзюлунху Фото © Xia Zhi
Отель Author′s Room в комплексе Aranya на озере Цзюлунху
Фото © Xia Zhi
Отель Author′s Room в комплексе Aranya на озере Цзюлунху Фото © Xia Zhi
Отель Author′s Room в комплексе Aranya на озере Цзюлунху
Фото © Xia Zhi
Отель Author′s Room в комплексе Aranya на озере Цзюлунху Фото © Xia Zhi
Отель Author′s Room в комплексе Aranya на озере Цзюлунху
Фото © Xia Zhi
Отель Author′s Room в комплексе Aranya на озере Цзюлунху © B.L.U.E. Architecture Studio
Отель Author′s Room в комплексе Aranya на озере Цзюлунху
© B.L.U.E. Architecture Studio
Отель Author′s Room в комплексе Aranya на озере Цзюлунху © B.L.U.E. Architecture Studio
Отель Author′s Room в комплексе Aranya на озере Цзюлунху
© B.L.U.E. Architecture Studio
Отель Author′s Room в комплексе Aranya на озере Цзюлунху © B.L.U.E. Architecture Studio
Отель Author′s Room в комплексе Aranya на озере Цзюлунху
© B.L.U.E. Architecture Studio
Отель Author′s Room в комплексе Aranya на озере Цзюлунху © B.L.U.E. Architecture Studio
Отель Author′s Room в комплексе Aranya на озере Цзюлунху
© B.L.U.E. Architecture Studio
Отель Author′s Room в комплексе Aranya на озере Цзюлунху © B.L.U.E. Architecture Studio
Отель Author′s Room в комплексе Aranya на озере Цзюлунху
© B.L.U.E. Architecture Studio
Отель Author′s Room в комплексе Aranya на озере Цзюлунху © B.L.U.E. Architecture Studio
Отель Author′s Room в комплексе Aranya на озере Цзюлунху
© B.L.U.E. Architecture Studio
Отель Author′s Room в комплексе Aranya на озере Цзюлунху © B.L.U.E. Architecture Studio
Отель Author′s Room в комплексе Aranya на озере Цзюлунху
© B.L.U.E. Architecture Studio
Отель Author′s Room в комплексе Aranya на озере Цзюлунху © B.L.U.E. Architecture Studio
Отель Author′s Room в комплексе Aranya на озере Цзюлунху
© B.L.U.E. Architecture Studio
Отель Author′s Room в комплексе Aranya на озере Цзюлунху © B.L.U.E. Architecture Studio
Отель Author′s Room в комплексе Aranya на озере Цзюлунху
© B.L.U.E. Architecture Studio
Отель Author′s Room в комплексе Aranya на озере Цзюлунху © B.L.U.E. Architecture Studio
Отель Author′s Room в комплексе Aranya на озере Цзюлунху
© B.L.U.E. Architecture Studio
Отель Author′s Room в комплексе Aranya на озере Цзюлунху © B.L.U.E. Architecture Studio
Отель Author′s Room в комплексе Aranya на озере Цзюлунху
© B.L.U.E. Architecture Studio
Отель Author′s Room в комплексе Aranya на озере Цзюлунху © B.L.U.E. Architecture Studio
Отель Author′s Room в комплексе Aranya на озере Цзюлунху
© B.L.U.E. Architecture Studio
Отель Author′s Room в комплексе Aranya на озере Цзюлунху © B.L.U.E. Architecture Studio
Отель Author′s Room в комплексе Aranya на озере Цзюлунху
© B.L.U.E. Architecture Studio
Отель Author′s Room в комплексе Aranya на озере Цзюлунху © B.L.U.E. Architecture Studio
Отель Author′s Room в комплексе Aranya на озере Цзюлунху
© B.L.U.E. Architecture Studio
Отель Author′s Room в комплексе Aranya на озере Цзюлунху © B.L.U.E. Architecture Studio
Отель Author′s Room в комплексе Aranya на озере Цзюлунху
© B.L.U.E. Architecture Studio