Кафе JM
Фото © Zhi Xia
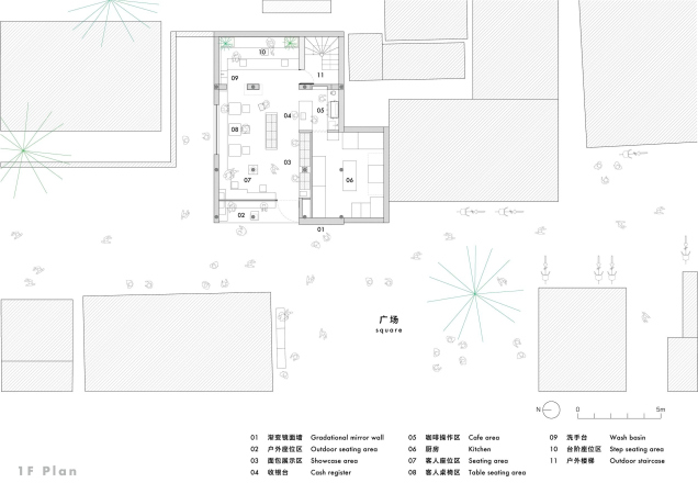
B.L.U.E. Architecture Studio получило заказ на новую постройку вместо более скромного кафе с очень удачным расположением: на небольшой площади, искони служащей центром жизни района. Храм Мяоин находится от нее буквально в нескольких шагах.
Кафе JM
Фото © Zhi Xia
Архитекторы учли процесс «прибытия» посетителей в кафе, где подаются кофе и выпечка: по узким переулкам между хутунами, а затем – через площадь. В первую очередь их внимание привлечет экран из нержавеющей стали с участком, отполированным до состояния зеркала посередине: в нем они заметят свое отражение, даже если решат пройти мимо. За ним скрывается служебная зона кафе с прилавком, витриной и кухней, также выполненная из стали. Серебристый цвет металла согласуется с замыслом авторов проекта: придерживаться монохромного колорита Белой ступы.
Кафе JM
Фото © Zhi Xia
Его продолжают традиционный для Китая серый кирпич и каменная плитка, покрывающая пол и скамьи для посетителей, а также колонны с фигурными деревянными кожухами, покрытые фактурной штукатуркой.
Зона для гостей частично расположена снаружи остекленного фасада, что размывает границу между интерьером и окружением. В глубине помещения эту же функцию играет пространство с растениями и обильным верхним светом. Здесь устроена лестница на террасу, где из той же каменной плитки сложен геометризированный «двойник» ступы, на которую отсюда открывается идеальный вид.
Кафе JM
Фото © Zhi Xia
Кафе JM
Фото © Zhi Xia
Кафе JM
Фото © Zhi Xia
Кафе JM
Фото © Zhi Xia
Кафе JM
Фото © Zhi Xia
Кафе JM
Фото © Zhi Xia
Кафе JM
Фото © Zhi Xia
