RSS
Школа имени Доминика Фрело
Фото © Maxime Verret

Школа имени Доминика Фрело


/ Dominique Frelaut School Group
Tectoniques / Франция
Школа имени Доминика Фрело
Фото © Maxime Verret

Архи.ру об этом объекте:

10.02.2026

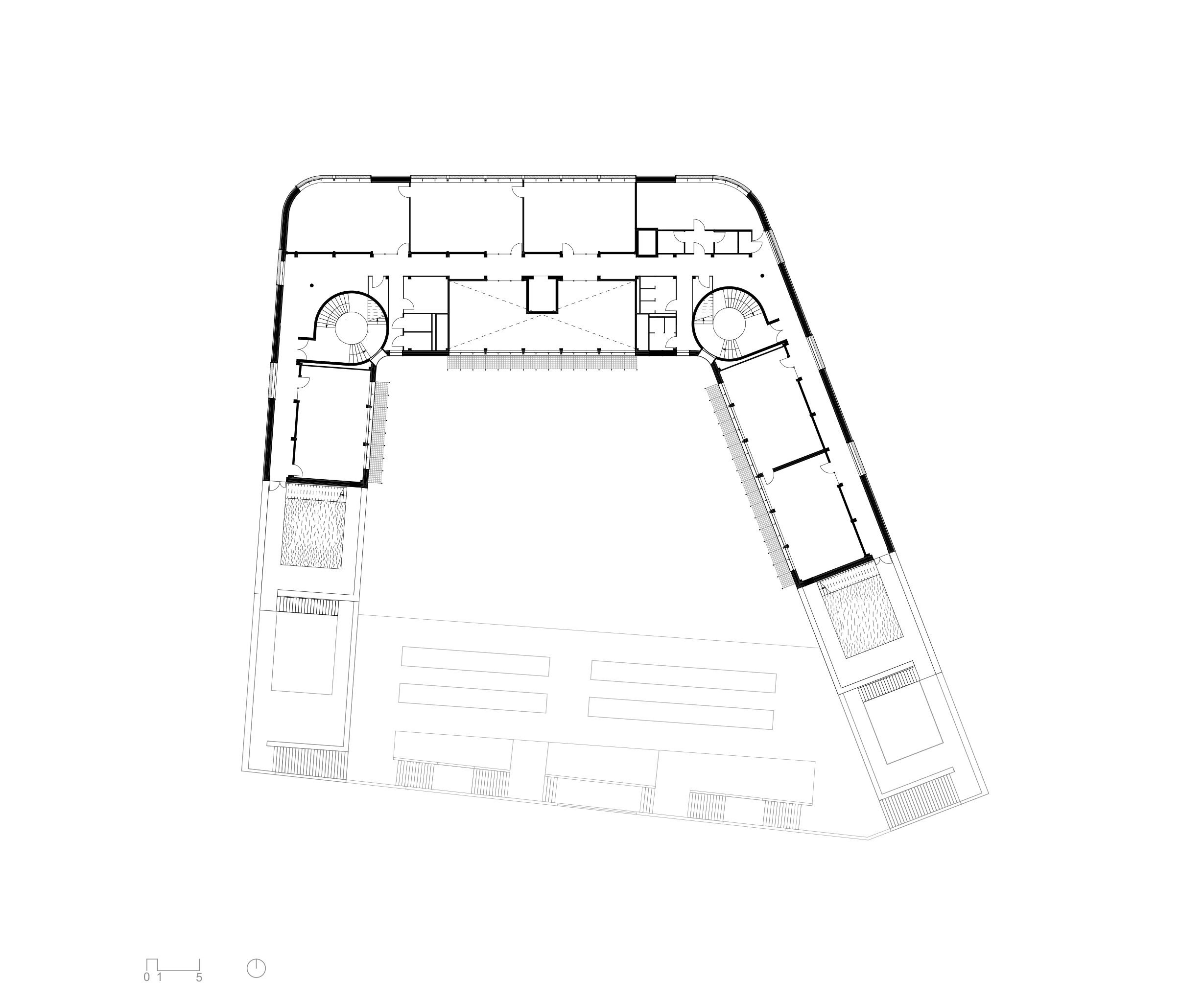
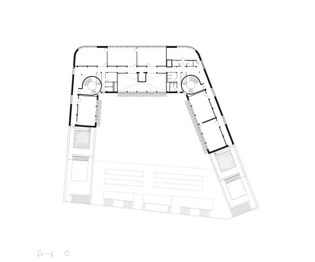
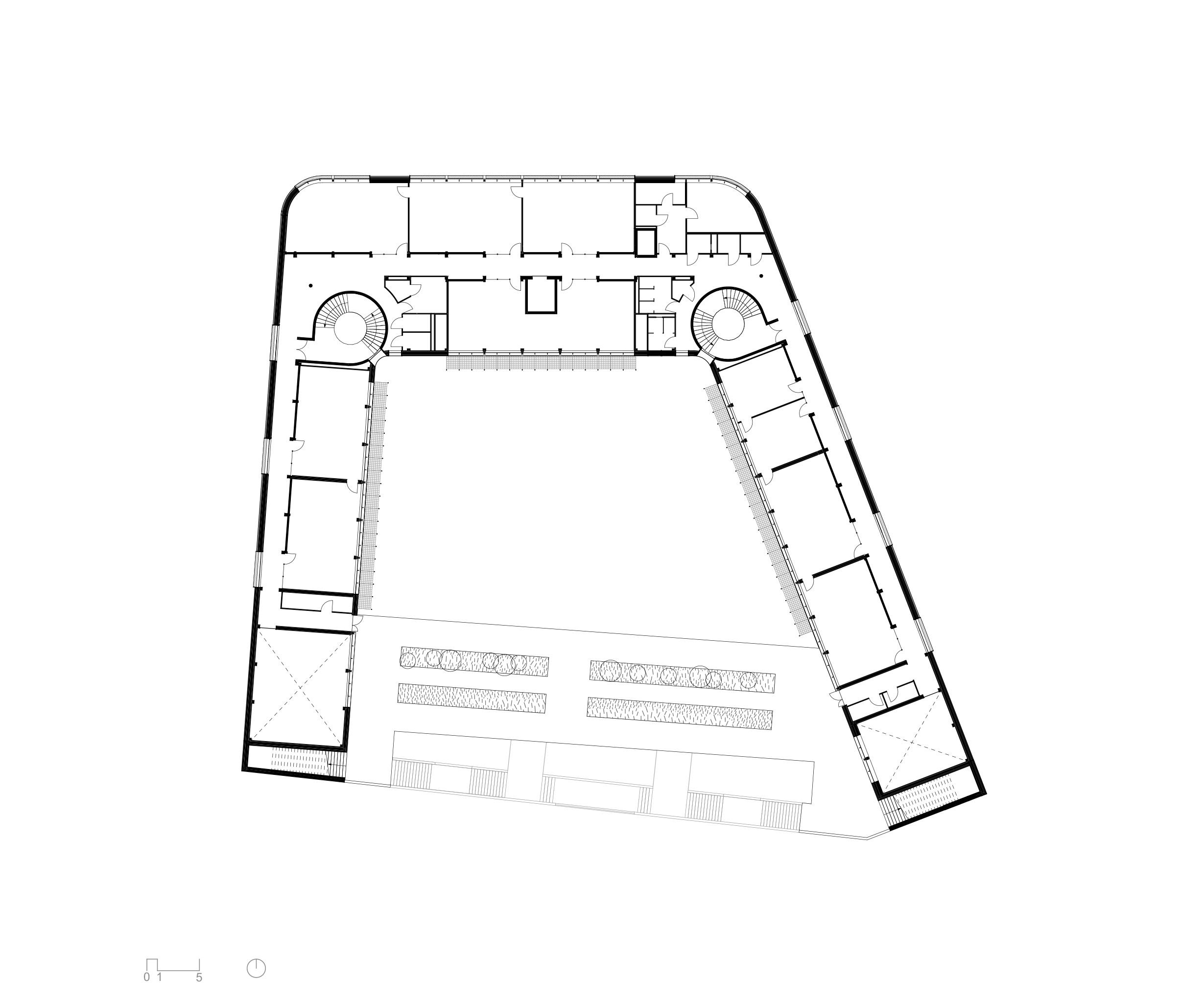
Нина Фролова. Сад под защитой

Здание начальной школы и детского сада по проекту бюро Tectoniques в Коломбе, пригороде Парижа, как будто обнимает озелененную игровую площадку.

читать дальше
Школа имени Доминика Фрело
Фото © Maxime Verret
Школа имени Доминика Фрело
Фото © Salem Mostefaoui
Школа имени Доминика Фрело
Фото © Salem Mostefaoui
Школа имени Доминика Фрело
Фото © Salem Mostefaoui
Школа имени Доминика Фрело
Фото © Salem Mostefaoui
Школа имени Доминика Фрело
Фото © Salem Mostefaoui
Школа имени Доминика Фрело
Фото © Salem Mostefaoui
Школа имени Доминика Фрело
Фото © Salem Mostefaoui
Школа имени Доминика Фрело
Фото © Salem Mostefaoui
Школа имени Доминика Фрело
Фото © Salem Mostefaoui
Школа имени Доминика Фрело
Фото © Salem Mostefaoui
Школа имени Доминика Фрело
Фото © Salem Mostefaoui
Школа имени Доминика Фрело
Фото © Salem Mostefaoui
Школа имени Доминика Фрело
Фото © Salem Mostefaoui
Школа имени Доминика Фрело
Фото © Maxime Verret
Школа имени Доминика Фрело
Фото © Salem Mostefaoui
Школа имени Доминика Фрело
Фото © Salem Mostefaoui
Школа имени Доминика Фрело
Фото © Maxime Verret
Школа имени Доминика Фрело
Фото © Salem Mostefaoui
Школа имени Доминика Фрело
Фото © Salem Mostefaoui
Школа имени Доминика Фрело
Фото © Salem Mostefaoui
Школа имени Доминика Фрело
Фото © Maxime Verret
Школа имени Доминика Фрело
Фото © Salem Mostefaoui
Школа имени Доминика Фрело
Фото © Salem Mostefaoui
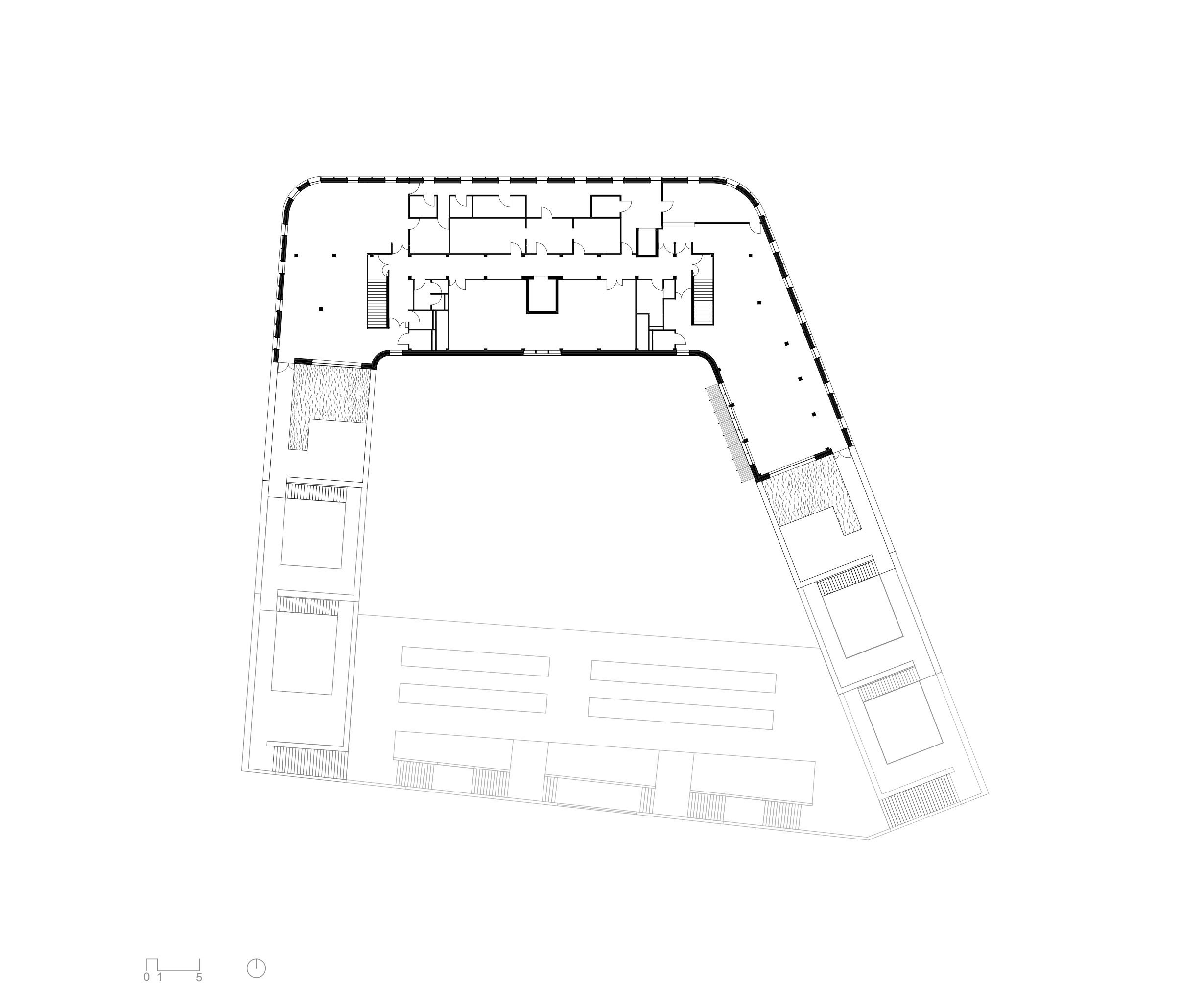
Школа имени Доминика Фрело
© Tectoniques
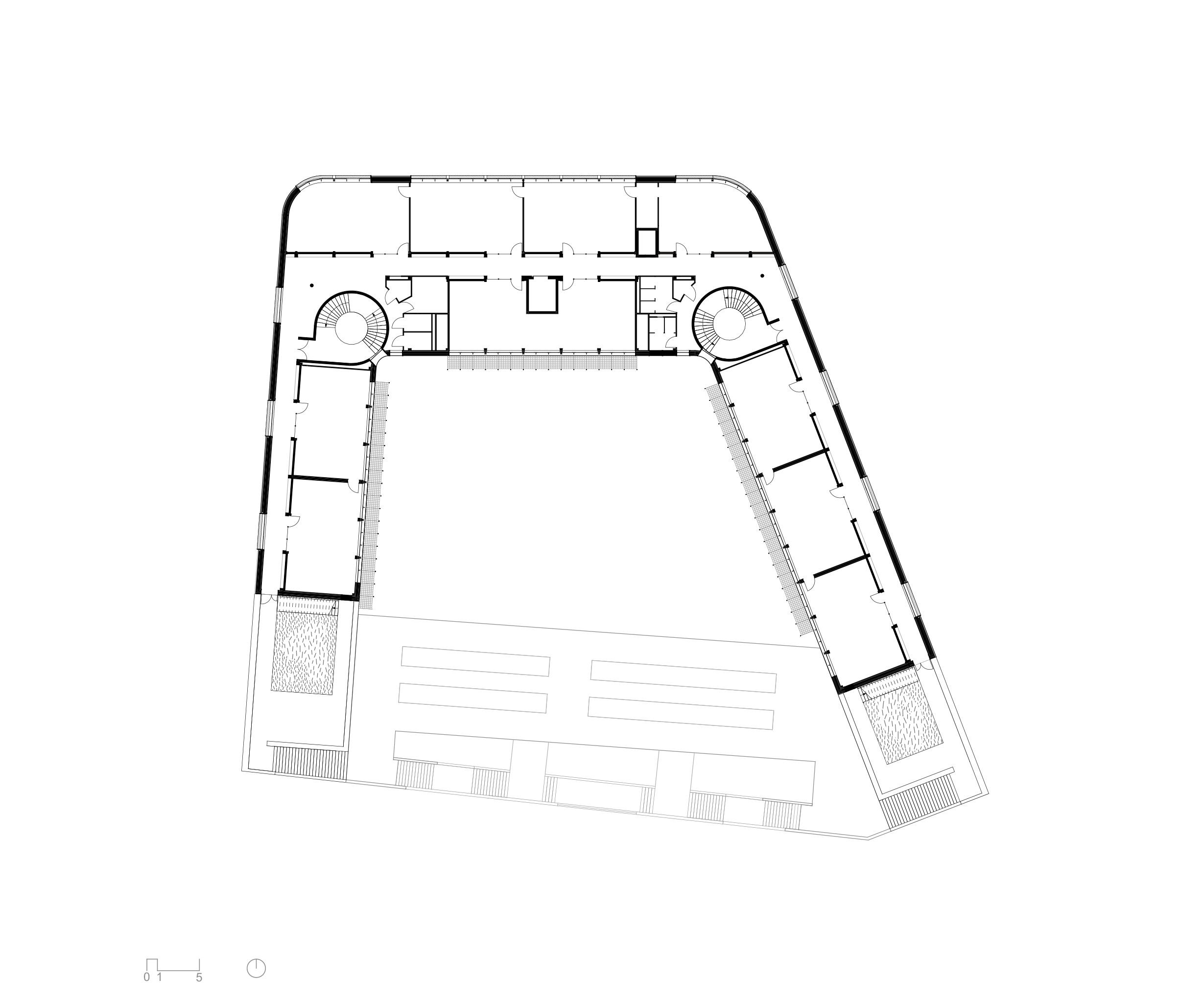
Школа имени Доминика Фрело
© Tectoniques
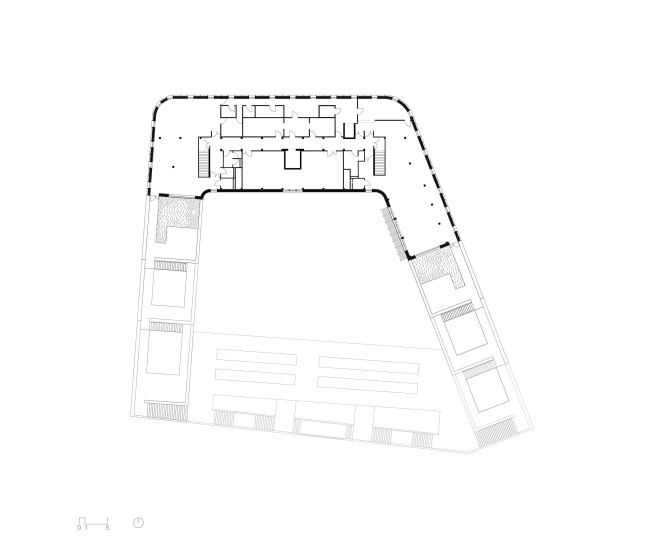
Школа имени Доминика Фрело
© Tectoniques
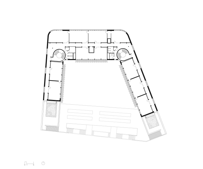
Школа имени Доминика Фрело
© Tectoniques
Школа имени Доминика Фрело
© Tectoniques
Школа имени Доминика Фрело
© Tectoniques
Школа имени Доминика Фрело
© Tectoniques
Школа имени Доминика Фрело
© Tectoniques
Школа имени Доминика Фрело
© Tectoniques
Школа имени Доминика Фрело
© Tectoniques
Школа имени Доминика Фрело
© Tectoniques
Школа имени Доминика Фрело
© Tectoniques
Школа имени Доминика Фрело
© Tectoniques
Школа имени Доминика Фрело
© Tectoniques
Школа имени Доминика Фрело
© Tectoniques

Избранные архитекторы:

  • Дэвид Аджайе
  • Тадао Андо
  • Тоёо Ито
  • Одиль Декк
  • Рафаэль Виньоли
  • Ричард Роджерс
  • Том Мейн
  • Даниэль Либескинд
  • Жан Нувель

Проект из каталога (случайный выбор)

Избранные постройки:

  • Филиал Музея Виктории и Альберта в Данди
  • Универмаг La Samaritaine – реконструкция
  • Музей искусств Сент-Луиса – Восточный корпус
  • Новый район гавани Дарлинг-харбор
  • Небоскреб Leadenhall
  • Здание Европейского Парламента – реконструкция
  • Павильон Испании на ЭКСПО-2010
  • Жилой комплекс Waterfront
  • Галисийский центр современного искусства

Зарубежные новости

Симулятор «зеленой» жизни
05.03.2026

Симулятор «зеленой» жизни

Томас Хезервик
От пещеры до звезды
04.03.2026

От пещеры до звезды

Станислав Субботин
Дарья Кириллова
Горный страж
03.03.2026

Горный страж

Артем Агекян