|
Здание начальной школы и детского сада по проекту бюро Tectoniques в Коломбе, пригороде Парижа, как будто обнимает озелененную игровую площадку.
Новая «школьная группа», как называют теперь средние образовательные учреждения во Франции, носит имя бывшего мэра Коломба, члена Коммунистической партии Доминика Фрело. Она возведена в зоне новой застройки на месте бывшего завода Ericsson, в достаточно сложных условиях: вокруг очень плотно стоят средняя школа (коллеж) и многоквартирные дома, а чуть дальше, за оживленной магистралью, расположена еще одна промзона (а дальше – Сена).

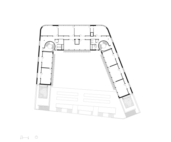
Поэтому архитекторы выбрали необычную для школы, особенно начальной, вертикальную схему, несколько напоминающую крепость. Здание имеет планировку в форме буквы П, защищая от шума, пыли и посторонних взглядов внутренний двор, он же игровая площадка, он же сад (всем озеленением занималась ландшафтная студия Altitude 35).

Наружные фасады облицованы светлой керамической плиткой: сочетание выпуклых и плоских элементов придают им рельеф. Со стороны двора использовано дерево, им же полностью обшит верхний, пятый, этаж. Легкие стальные конструкции затеняют окна и служат опорой для вьющихся растений, которые высажены во дворе. Конструкция в здании гибридная – инженерное дерево сочетается с бетоном.

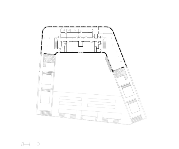
Небольшой участок не стал причиной дефицита открытого пространства: кроме двора, здесь есть терраса с учебным огородом на кровле галереи, замыкающей двор (в ней дети могут играть в непогоду). Ножки буквы П имеют ступенчатый силуэт: каждый этаж содержит с каждой стороны на один класс меньше нижнего, а вместо него устроена озелененная терраса. Завершает все зеленая крыша, для прогулок, впрочем, недоступная. Зато на верхнем этаже устроена столовая с панорамным видом.

По внешнему периметру идут коридоры с большими окнами, куда выходят 25 классных комнат с остекленными входными группами: так обеспечиваются естественные освещение и вентиляция, а также общая проницаемость пространств. Внутренние перегородки выполнены из прессованных земляных блоков: они повышают тепловую инерцию здания и помогают поддерживать оптимальную влажность. Блоки, как и многие другие части постройки и ее инженерных сетей, никак не декорированы и не замаскированы, что позволяет им служить наглядным пособием для школьников.

Встроенная мебель изготовлена по проекту архитекторов из тополевой фанеры. Школа имени Доминика ФрелоФото © Maxime Verret
Школа имени Доминика ФрелоФото © Maxime Verret
Школа имени Доминика ФрелоФото © Maxime Verret
Школа имени Доминика ФрелоФото © Salem Mostefaoui
Школа имени Доминика ФрелоФото © Salem Mostefaoui
Школа имени Доминика ФрелоФото © Salem Mostefaoui
Школа имени Доминика ФрелоФото © Salem MostefaouiШкола имени Доминика ФрелоФото © Salem MostefaouiШкола имени Доминика ФрелоФото © Salem MostefaouiШкола имени Доминика ФрелоФото © Salem MostefaouiШкола имени Доминика ФрелоФото © Salem MostefaouiШкола имени Доминика ФрелоФото © Salem MostefaouiШкола имени Доминика ФрелоФото © Salem MostefaouiШкола имени Доминика ФрелоФото © Salem MostefaouiШкола имени Доминика ФрелоФото © Salem MostefaouiШкола имени Доминика ФрелоФото © Salem Mostefaoui
Школа имени Доминика ФрелоФото © Maxime VerretШкола имени Доминика ФрелоФото © Salem MostefaouiШкола имени Доминика ФрелоФото © Maxime VerretШкола имени Доминика ФрелоФото © Salem MostefaouiШкола имени Доминика ФрелоФото © Salem MostefaouiШкола имени Доминика ФрелоФото © Salem MostefaouiШкола имени Доминика ФрелоФото © Salem MostefaouiШкола имени Доминика ФрелоФото © Salem MostefaouiШкола имени Доминика ФрелоФото © Maxime VerretШкола имени Доминика ФрелоФото © Salem MostefaouiШкола имени Доминика Фрело© TectoniquesШкола имени Доминика Фрело© TectoniquesШкола имени Доминика Фрело© TectoniquesШкола имени Доминика Фрело© TectoniquesШкола имени Доминика Фрело© TectoniquesШкола имени Доминика Фрело© TectoniquesШкола имени Доминика Фрело© TectoniquesШкола имени Доминика Фрело© TectoniquesШкола имени Доминика Фрело© TectoniquesШкола имени Доминика Фрело© TectoniquesШкола имени Доминика Фрело© TectoniquesШкола имени Доминика Фрело© TectoniquesШкола имени Доминика Фрело© TectoniquesШкола имени Доминика Фрело© TectoniquesШкола имени Доминика Фрело© Tectoniques
|