Комплексный подход, практикуемый с самого основания компании, включает в себя рабочее проектирование, монтаж и полный контроль выполнения фасадных работ. Фактически «ОРТОСТ-ФАСАД» является полноправным соавтором объектов, на которых применяются их изделия.
На основе многолетнего опыта и поиска инновационных подходов к инженерным решениям «ОРТОСТ-ФАСАД» разработали и запустили в производство собственную подсистему для устройства облицовки фасадов и утепления стен с наружной стороны зданий. Она позволяет выполнять фасады со сложной конфигурацией, а также минимизировать проблемы, связанные с инженерными коммуникациями и монтажом отдельных элементов. Достоинствами подсистемы являются снижение металлоемкости конструкций без потери несущей способности и быстрый монтаж, что влияет на экономику проекта.
Традиционно в подсистемах для вентфасадов используются сварные конструкции и типовые кронштейны, которые при монтаже необходимо подгонять «по месту». Недостатки такого подхода проявляются при монтаже: во-первых, часто приходится делать расчеты в процессе строительства, во-вторых, образуется большое количество «излишков». Сфера применения стандартных решений подсистем также ограничена – осложнено сопряжение с другими конструкциями, например, светопрозрачными сводчатыми фонарями и витражами, и инженерными системами.
Особую трудность представляют собой фасады сложной геометрии: индивидуальные сварные кронштейны – габаритные и тяжелые, а их подгонка по месту вызывает много сложностей, а зачастую просто невозможна, особенно если речь идет об элементах, располагающихся на высоте, так как при высотном строительстве пространство монтажа ограничено.
Детский художественно-эстетический центр «Школа искусств»
Фотография предоставлена «ОРТОСТ-ФАСАД»
Разработанная «ОРТОСТ-ФАСАД» подсистема позволяет решить эти проблемы. В частности при размещении инженерных систем внутри фасада, которое обычно представляет особенную трудность, данная подсистема позволяет учесть пространство для них и предлагает решения без переделки несущих кронштейнов в процессе монтажа и с минимальной корректировкой по месту расположения кронштейнов на 10-15 см. Подобное решение с успехом было применено при выполнении фасада Главного храма вооруженных сил в Кубинке.
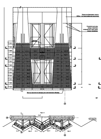
Подсистема представляет собой комплект изделий, состоящий из несущих кронштейнов, вертикальных и горизонтальных направляющих из коррозионностойкой или оцинкованной стали с дополнительным двусторонним антикоррозийным полимерным покрытием, теплоизоляционных изделий, облицовки в виде панелей (изделий) из стеклофибробетона, деталей примыкания системы к строительному основанию и крепежных изделий.
Конфигурация силовых элементов подсистемы выполняется в виде кронштейнов сквозного сечения и формируется исходя из геометрии фасада. В подсистеме принцип индивидуальной конфигурации кронштейнов сочетается с высокой степенью унификации и заводской готовности. Геометрия несущих кронштейнов подбирается индивидуально при проектировании. Это позволяет применить кронштейны с максимально развитым сечением и учесть другие требования. Также если необходимо отрегулировать положения детали в процессе монтажа, предусмотрена возможность регулировки во всех направлениях за счет использования резьбовых шпилек и овальных отверстий.
«Стандартизация достигается за счет использования всех кронштейнов из одного сортамента комплектующих элементов, которые изготавливаются заранее на технологических линиях высокой производительности. Это позволяет практически сразу приступить к монтажу и как результат дает значительный выигрыш в сроках», – отмечает Максим Павлов, главный инженер «ОРТОСТ-ФАСАДа». Сборка элементов несущей подсистемы осуществляется по разработанным стандартным узлам, в которых предусмотрены разные варианты их сопряжения и адаптации.
Применение подсистемы практически не ограничено: она подходит для устройства облицовки фасадов и утепления стен с наружной стороны зданий, относящихся к различным ветровым районам с особенными геологическими и геофизическими условиями: были специально проведены испытания на сейсмику, доказавшие, что подсистема может использоваться в регионах с высокой сейсмической активностью.
Универсальность конструкции подсистемы заключается и в том, что она подходит практически для любого вентфасада, что подтверждается техническими свидетельствами, выданными для подсистемы с разными видами материалов, из которых выполняется облицовка: для стеклофибробетона, натурального камня, а также для металлических кассет и бетонной плитки.
Специалисты «ОРТОСТ-ФАСАДа» проводят необходимые расчеты под каждый проект с целью оптимизации работ и расчета металлоемкости изделий. Конструкции подсистемы относятся к пожаробезопасным (класс пожарной безопасности К0).
Главная производственная площадка компании площадью 8000 м2 находится в Переславле-Залесском, еще две – в Долгопрудном и Севастополе. Последняя из них была открыта в прошлом году в связи с масштабным проектом Национального исторического парка Херсонес, где «ОРТОСТ-ФАСАД» не только изготавливал изделия для выполнения вентфасадов, но и выполнил все работы по монтажу.
«Оборудование обеспечивает высокую производительность цеха – до 10 000 изделий в месяц. Мощности производства включают в себя два лазерных и два листогибочных станка, лазерную сварку и участок порошковой покраски; три кривошипных пресса используются для гибки и пробивки малогабаритных изделий. На основании чертежей листовой металл разрезается согласно установленным габаритам, гарантируется чистота кромок, и их не приходится дополнительно обрабатывать. С помощью станка также делаются отверстия, которые в дальнейшем позволяют выполнить точную установку, а при необходимости – и корректировку конструкций на месте», – отмечает руководитель цеха по изготовлению подсистем «ОРТОСТ-ФАСАД» Дмитрий Комиссаров.
Для конструкций используется коррозионностойкая или оцинкованная сталь с дополнительным двусторонним антикоррозийным полимерным покрытием, что обеспечивает готовому изделию устойчивость к воздействию агрессивных сред и повышенную прочность изделия, которая позволяет кронштейну не ломаться даже в условиях предельной грузоподъемности. В национальном исследовательском технологическом университете «МИСиС» были проведены исследования коррозийной стойкости и долговечности, показавшие защиту от коррозии элементов подсистемы на срок не менее 50 лет.
Решения, предлагаемые «ОРТОСТ-ФАСАДом», позволяют снижать металлоемкость конструкций по сравнению с традиционным решениями, а за счет минимизации переделок – экономить материалы и время. В отдельных особо сложных случаях данная подсистема является единственно возможным решением.
«ОРТОСТ-ФАСАД» выполняет не только работы по монтажу подсистемы: спектр услуг гораздо шире. Являясь крупнейшим производителем стеклофибробетонных фасадных панелей – 200-250 тысяч м2 в год – компания предлагает полный комплекс фасадных работ «под ключ».

