Муслим Шуаибович Алиев
© Фотография предоставлена компанией «ОртОст-Фасад»
Архи.ру: Ваша компания ОРТОСТ-ФАСАД стабильно работает над проектом «Садовые кварталы» уже более 8 лет, с 2013 года. Как так получилось, что совершенно разные по своей пластике здания доверяют делать одной и той же компании на протяжение столь долгого времени?
Муслим Шуаибович Алиев: История с «Садовыми кварталами» началась для нас, можно сказать, на стадии проектирования. Изначально генподрядчиком на «Садовых кварталах» – проекте Сергея Скуратова, в котором приняли участие такие ведущие архитектурные бюро как АБ «СПиЧ», «Проект Меганом», ТПО «Резерв», «Остоженка» – была компания Strabag.
Архитекторы поставили перед Strabag задачу создания кирпичных фасадов, которые бы стали развитием истории самого места: некогда здесь обжигали кирпич, кирпич являлся излюбленным материалом в промышленной архитектуре – а квартал возник на месте корпусов завода «Каучук». Из его бывших построек было сохранено здание, возведенное по проекту Романа Клейна, ставшее частью общего замысла нового района.
Общий вид на жилой комплекс «Садовые кварталы» с новыми корпусами 2.1 и 2.4
Предполагалось, что фасады комплекса будут облицованы бетонными панелями, в которые интегрирован немецкий кирпич ручной формовки. Strabag, с которым мы работали до этого над проектом гостиницы «Москва» обратились к нам рассмотреть такую возможность и принять участие в реализации проекта. Проанализировав задачу мы поняли, что, во-первых, вести бетонные панели из-за рубежа – это дорогое удовольствие, связанное с логистикой, а во-вторых – бетонные панели при такой высоте – это серьезная нагрузка на основание, поэтому мы предложили заменить бетон на стеклофибробетон и интегрировать не клинкерный кирпич, а клинкерную «плитку» толщиной в 40 мм ( вернее, спил лицевой части клинкера Hagemeister).
Садовые кварталы.
Корпуса 2.1 и 2.4
© Фотография предоставлена компанией «ОртОст-Фасад»
Как вам удалось убедить архитектора и заказчика?
М.А.: Для того, чтобы самим утвердиться в том, что идея жизнеспособна и с точки зрения эстетики и с точки зрения технологии, мы изготовили элемент и показали заказчику. Внешний вид был очень убедителен. Еще одним доводом стало то, что производство в России, было выгодно экономически не только с точки зрения логистики – оно значительно ускоряло процесс. А высотный монтаж более легких панелей мог происходить и в зимнее время, что в целом влияло на процесс строительства.
Затем на производстве мы сделали натурный стенд, провели испытания несущей способности, смонтировали полноразмерный мокап, примерили его и совместно с заказчиком пришли к выводу, что это оптимальный ответ на те сложные задачи, которые предстояло решать.
Первые несколько корпусов были выполнены в 2013-2014 гг.: в корпусе 4.1 были применены овальные колонны и полуколонны с применением радиусного кирпича. Аналогичная технология была использована и в корпусе 4.4, но там пилоны были с переменным прямоугольным сечением.
Садовые кварталы.
Корпус 2.4
© Фотография предоставлена компанией «ОртОст-Фасад»
В целом облик квартала отличает многообразие архитектурных решений...
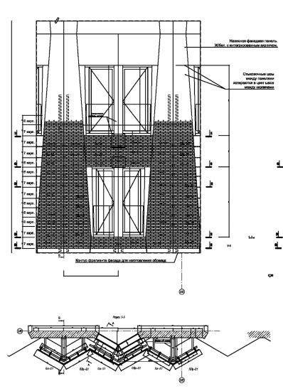
М.А.: Корпуса имеют совершенно разную пластику. Особенно интересной работой была с корпусами 3.2 по проекту бюро Спич, и 3.7. Сергея Скуратова. В одном случае вы видите такую необычную складчатую структуру стены – выполнить задачу формирования таких сложных фасадов с разным сопряжением стен, и разными глубинами выносов в кладочном варианте при таких высотах невозможно.
В основе своей корпуса имеют форму правильных параллелепипедов, но догадаться об этом, глядя на здания, нельзя. Мы разработали уникальную подсистему для этих стен, причем средний вынос подсистемы был от 400 до 1500 мм, а в максимальной точке достигал 1 метра 80 см. При этом своего фундамента у этих «складок» нет – вся нагрузка идет на несущую стену.
Садовые кварталы.
Корпус 2.4
В чем заключается особенность фасадов последних корпусов «Садовых кварталов» ?
М.А.: Корпус 2.4 выполнен в уже узнаваемой манере Сергея Скуратова. Бес, как говорится, прячется в деталях. В основе своей дом, как и предшествующие – параллелепипед. Здание к низу слегка расширяется и имеет закругленный угол, обращенный к улице. При общем достаточно лаконичном силуэте очень необычно решены межэтажные и межоконные проемы нижнего яруса: кирпич не просто выложен по радиусу, каждый из элементов слегка выступает, по принципу рыбьей чешуи, что создает интересную игру света и тени. Для нас это стало очередным вызовом – задача была непростая, но результат уже можно оценить в натуре.
Каким образом удалось достичь эффекта рукотворной стены? Раскладка панелей совершенно не заметна даже при ближайшем рассмотрении.
М.А.: Действительно, все панели нестандартные- практически не одна из них не повторяется. В профилях окон архитектор предусмотрел такую живую игру плоскостей – даже в чертежах их угол слегка меняется от одной к другой.
Эффект рукотворности достигается не только благодаря ручной формовке и настоящей печи, в которой делаются сами плитки, но и зависит от раскладки этих плиток при изготовлении каждой панели и от последующего размещения уже готовых панелей на фасадах.
Сначала изготавливаются формы необходимой кривизны, затем в них выкладывается кирпич-плитка, причем он берется из разных паллет, чтобы максимально различался оттенок материала – это придает большей живости фасадам. Затем наносится затирка, и на тыльную сторону распыляется стеклофибробетон. В момент его напыления монтируются закладные детали для подсистемы.
Как много времени уходит на проектирование подсистемы и расчет панелей?
М.А.: Проект наших фасадов мы разрабатываем сами. Мы знаем фасады от «А» до «Я», т.к. занимаемся ими на протяжении более 20 лет. Конструкторский отдел, наша проектная группа, берет на себя весь комплекс работ, начиная от консультаций генпроектировщиков на стадии П, когда образ здания только начинает складываться и предполагает сложные нестандартные решения. Часто мы разрабатываем узлы, которые входят в разработку стадии П.
В конструкторском отделе ОРТОСТ-ФАСАДа работают почти полтора десятка штатных сотрудников, также мы привлекаем специалистов на аутсорсинг. при проектировании мы используем различные программы – это и AutoCAD, и Revit, и ArchiCAD.
Сроки всегда очень сжатые – заказчик стремится сразу же за проектированием увидеть стройку. К примеру на корпусе 4.2 весь комплект чертежей был выпущен за 2,5 – 3 месяца. Стеклофибробетон позволяет делать любую пластику фасадов, но ключевым моментом является разработка подсистемы, которая учитывает не только особенности материала, но и удобство последующих монтажных работ в разных условиях, например на большой высоте.
Помимо разработки подсистемы важную роль играет раскладка панелей: их разбивка сначала делается в программе, затем согласовывается с архитекторами, которые советуют где-то объединить, где-то наоборот разделить.
Монтаж также осуществляется вашей компанией?
М.А.: Да, монтаж тоже необходимо рассчитать и тщательно контролировать. Стоимость всего объекта определена и сложностью архитектуры и сложностью конструкторских решений.
Например, все пилоны корпуса 2.4 имеют разную кривизну, что создает богатую пластику фасада. Для нас это значит большое количество форм и не стандартизированное производство, здесь для каждой детали сделана своя индивидуальная форма. Более того, на одной стене могут быть применены разные типы подсистемы. От точного исполнения, от правильной организации работ зависит конечный результат и то, насколько соответствует то, что было задумано архитектором, реализованному объекту.
Садовые кварталы.
Корпуса 2.1 и 2.4
© Фотография предоставлена компанией «ОртОст-Фасад»
Монтаж является очень важным этапом, особенно в условиях ограниченного времени. Заказчик долго запрягает, но быстро едет. Чтобы выдержать сроки , надо очень хорошо продумывать последовательность монтажа – чтобы один процесс не задерживал другой. Все детали маркировались на производстве и монтировались согласно чертежу в проектное положение. Иногда количество монтажников на объектах доходило до 800 человек, работающих в три смены.
Кстати, те самые швы между панелями, которые не видно – это и результат работы конструкторов и высокая точность монтажа.
Разработка регламентов и выполнения работ, механизированные работы - четкий и понятный механизм , который работает без сбоев, – наша задача. И это касается также дальнейшей эксплуатации зданий – мы поддерживаем связь и при необходимости помогаем советом.
Садовые кварталы.
Корпус 2.4
Садовые кварталы.
Корпус 2.4
Рынок на стандартные объекты достаточно высок, есть много компаний которые работают в секторе фасадных поверхностей, но нам интересны именно такие необычные проекты, т.к любой вызов мы рассматриваем как возможность профессионального роста и уникальный опыт. Высокая квалификация наших специалистов проверена на таких объектах, как гостиница «Москва», главный Храм Вооруженных сил РФ, и, конечно, «Садовые кварталы». Именно поэтому к нам обращаются в сложных случаях. При наличии хорошей команды нереализуемых задач нет.

