RSS
Фасады. Жилой многофункциональный комплекс «КОД Сокольники», проект
© АБ «Остоженка» / девелопер «Новая Эра»

Жилой многофункциональный комплекс «КОД Сокольники»

информация:

  • статус
    в процессе реализации
  • даты
    20232025 / 2025
  • region= area= address=улица Шумкина, корпуса 2/1 и 2/2; Митьковский грузовой двор country_t=Россия city_t=Москва
    место
    Москва улица Шумкина, корпуса 2/1 и 2/2; Митьковский грузовой двор
  • координаты
    55.787150, 37.668525
  • функция
    Многофункциональный комплекс / МФК с преобладанием жилья
  • общая площадь
    317 100 м2
  • площадь жилая
    210 039 м2
  • высота
    150
  • этажность
    39
  • БЦ – 65 560 м2
    ТЦ – 8 900 м2
    Расчетное население составляет 8800 человек
    Общая потребность в машиноместах по нормативу составляет 1799 м/мест, включая парковки для ЖК (постоянное и временное хранение), УВК, БЦ и ТЦ, при этом проект обеспечивает необходимый профицит
Андрей Гнездилов
Егор Королев
Анастасия Федорова
АБ «Остоженка»

авторский коллектив

Руководитель проекта – Андрей Гнездилов, при участии Павел Журавлёв.
ГАП (АГК) – Егор Королев, ГАП (АГР и ПД) – Анастасия Фёдорова, ГИП – Николай Федорчук. Архитекторы – М. Мосешвили, А. Талаева, А. Таирова,  М. Елизарова, М. Матвеенко, И. Римашевская, Е. Кондратьева, М. Кудряшов. К. Щербакова, С. Сунгатуллин, А. Портнов,  Н. Шевякова,  Е. Прохорова, В. Данчук.  
Визуализация – М. Мосешвили, Н. Смирнов 

партнеры, заказчики, смежники

Девелопер – «Новая Эра»
Фасады. Жилой многофункциональный комплекс «КОД Сокольники», проект
© АБ «Остоженка» / девелопер «Новая Эра»

Архи.ру об этом объекте:

19.01.2026

Юлия Тарабарина. Плетение Сокольников

Высотное жилое строительство в промзонах стало за последние годы главной темой московской архитектуры. Башни вырастают там и тут, вопрос – какие они. Проект жилого комплекса «КОД Сокольники», сделанный архитекторами АБ «Остоженка», – вдумчивый. Авторы внимательны к истории места, связности городской ткани, силуэту и видовым характеристикам. А еще они предложили мотив с лиричным названием «шарф». Неофициально, конечно... Изучаем объемное построение и крупный декор, «вытканный», в данном случае, из террас и балконов.

Территории бывших промзон известный ресурс развития застройки Москвы, и если исключить самые гигантские из них, в прошлом металлообрабатывающие, то следующими по масштабу будут, вероятно, грузовые дворы железных дорог. Несколько лет назад много гов...   читать дальше
Фасады. Жилой многофункциональный комплекс «КОД Сокольники», проект
© АБ «Остоженка»

описание:

Описание от архитекторов: 

Основная задача архитектурно-планировочной концепции – максимально адекватное и полноценное включение новой крупномасштабной застройки в контекст города и прилегающего района на всех уровнях восприятия и использования. Решение этой задачи предлагается в нескольких масштабах: двора – каскадного парка – квартала – улицы и города.

Первые два масштабных уровня решены с максимальным вниманием к жителям новой и прилегающей застройки – для них предлагаются не только благоустроенные дворы, но и внутренний парк с системой прудов в западной части территории. Вдохновляющим мотивом для этого парка стала воображаемая долина речки Рыбинки, протекающей здесь когда-то, а теперь спрятанной в коллекторе. Память об этой речке, как и о более известной Неглинке, сохранилась в названии улиц – к проектируемой территории ведут 1-я, 2-я и 3-я Рыбинская улицы.

Крупный масштаб четырех высотных корпусов компенсируется их узкими и вытянутыми пропорциями и большими просветами между ними в ракурсах Север – Юг, и сложным, ступенчатым силуэтом в ракурсах Восток – Запад. Разделение фасадов на три яруса помогает этим гигантам пространственно «работать» и в масштабе городских перспектив, и в масштабе жителя одновременно.
 
Максимальная транспортная и пешеходная связаннность с городом решается подключением территории проекта к реконструируемой улично-дорожной сети через продолжение 3-й Рыбинской улицы и примыкания к улицам Лобачика и Шумкина, которая становится городской магистралью районного значения. Благодаря созданию внутренних линейных парков и внеуличного перехода через железную дорогу, возникают новые пешеходные связи между Русаковской улицей и станцией МЦД «Митьково» с парком Сокольники, Алексеевским монастырем и ТРЦ «Тройка», а строящаяся станция МЦД-3 непосредственным образом подключает этот район к быстро растущей пассажирской транспортной сети Москвы.
 

Описание 1 очереди строительства от архитекторов: 

Многофункциональный жилой комплекс состоит их двух жилых корпусов, объединенных общей подземной двухуровневой автостоянкой. Объемы этих корпусов скомпонованы из разновысотных секций разной этажности – от 6 до 39 этажей. Высота корпусов и их посадка на генплане обусловлены как общим замыслом всей застройки, так и требованиями нормативной инсоляции и видовым потенциалом квартир в башнях. 
Секции корпусов, обращённые к югу, каскадом приквартирных террас спускаются в сторону общеквартального парка. Эти «ступени» являются основой обьемного решения всей застройки и позволяют создать гармоничную, сомасштабную человеку среду, несмотря на сравнительно высокую плотность и этажность. 

Первые этажи корпусов включают: нежилые помещения коммерческого использования, места общего пользования, нежилые помещения общественного назначения, нежилые помещения обслуживающего назначения, автомобильную рампу. 

В двух подземных этажах размещена автостоянка, ёмкость которой рассчитана с учетом размещения в ней мест постоянного и временного хранения автомобилей, включая гостевые и приобъектные машиноместа. На кровле стилобата размещены благоустроенные приватные дворы, обращенные в общеквартальный парк.


Москомархитектура, 30.11.2025: 

Москомархитектура согласовала архитектурно-градостроительное решение жилого комплекса по адресу: улица Шумкина, корпуса 2/1 и 2/2. Первая очередь квартала будет отличаться террасированными объёмами, оригинальными формами балконов и декоративными элементами завершения кровли. Об этом сообщил главный архитектор Москвы, первый заместитель председателя Комитета по архитектуре и градостроительству Сергей Кузнецов.

«Жилой квартал наследует богатую историю района Сокольники и органично впишется в окружающий природный ландшафт. Выразительность комплексу придаст каскад террас, плавно спускающихся в сторону парка и формирующих объёмную ступенчатую композицию. Для отделки выбраны материалы с разной фактурой – стеклофибробетонные панели, клинкерная плитка и алюминиевые кассеты природных оттенков», – отметил Сергей Кузнецов.

Фасады корпусов будут обладать сложной, разнообразной пластикой за счёт использования объёмных элементов. Высотные здания выделят чередующиеся межэтажные пояса, выполненные в разных стилистических решениях, а вместо стандартных плоских кровель архитекторы предложили создать полупрозрачные навершия, визуально продолжающие верхние этажи. Один из корпусов получит выразительные округлые балконы.

Жилой квартал «КОД Сокольники» реализует компания «Новая Эра» (дочерняя структура «РЖД-Недвижимость») в шаговой доступности от парка «Сокольники» и одноимённой станции метро. Авторами проекта выступает архитектурное бюро «Остоженка». В рамках первой очереди планируется построить два жилых корпуса переменной этажности – от 6 до 39 этажей, объединённых двухуровневым подземным паркингом. На первых этажах разместятся коммерческие помещения для предприятий торговли и городских сервисов.

Проект благоустройства прилегающей территории предусматривает создание новых удобных пешеходных маршрутов между Русаковской улицей, станцией Митьково третьего Московского центрального диаметра, парком «Сокольники» и Алексеевским монастырём, что сделает перемещение горожан более комфортным.


Москомархитектура согласовала АГР первой очереди жилого комплекса «КОД Сокольники» – 30.11.2025:

Москомархитектура согласовала архитектурно-градостроительное решение первой очереди жилого комплекса «КОД Сокольники» на улице Шумкина.

В проекте, разработанном бюро «Остоженка», удалось создать единый ансамбль гармонично сочетающихся друг с другом и с окружением зданий, каждое из которых имеет уникальные и очень активные фасадные темы.


«Жилой квартал наследует богатую историю района Сокольники и впишется в окружающий природный ландшафт. Выразительность кварталу придаст каскад террас, которые будут плавно спускаться в сторону парка, создавая эффект объемной ступенчатой композиции. Для отделки выбраны материалы с разной фактурой. В частности, будут использованы стеклофибробетонные панели, клинкерная плитка и алюминиевые кассеты природных оттенков», – цитирует портал Архсовета главного архитектора Москвы Сергея Кузнецова.


ТГ девелопера «Новая Эра», 20.11.2025: 

Москомархитектура согласовала облик будущего жилого квартала КОД Сокольники
 
Семейный квартал будет строиться в три этапа. На первом – два жилых корпуса высотой от 6 до 39 этажей, 807 квартир и двухуровневый подземный паркинг.
 
Сердцем квартала станет двор-парк площадью 3 гектара – с прудом, хвойными деревьями, зелёными террасами и перголами. Общая площадь территории – 10,6 гектаров.
 
Для семей предусмотрена развитая социальная инфраструктура:
– детский сад на 350 мест;
– школа на 650 учеников;
– деловой кластер с бизнес-центром класса «А».
 
Архитектуру квартала разрабатывает бюро «Остоженка». (https://t.me/ostarch) Виды из окон будут открываться на парк «Сокольники», Останкинскую телебашню, исторический центр. Жители смогут наслаждаться невероятными рассветами, закатами.
 
Будущие резиденты оценят комфорт транспортной доступности. В нескольких минутах пешком станция метро «Сокольники» и платформа МЦД-3 «Митьково». Есть регулярные трамвайные и автобусные маршруты, удобный выезд на Русаковскую улицу и Третье транспортное кольцо. 
 
«Жилой квартал наследует богатую историю района Сокольники и впишется в окружающий природный ландшафт. Выразительность кварталу придаст каскад террас, которые будут плавно спускаться в сторону парка, создавая эффект объемной ступенчатой композиции», – отметил Сергей Кузнецов, главный архитектор Москвы.
 
«Философия заключается в переосмыслении традиционных стандартов жизни, общения и культурных ценностей. Наша цель – формировать пространства, где в центре внимания находится человек, его интересы, стремления и индивидуальность. Мы делаем упор на создание комфортной и вдохновляющей среды, способствующей развитию каждого резидента», – подчеркнула Анастасия Суханцева, коммерческий директор Новой Эры.
 
КОД Сокольники – первый проект масштабной программы редевелопмента бывших грузовых дворов в Москве, которую реализует компания Новая Эра.


Пресс-служба Мосстройнадзора Москвы, 12.2025: 

«В Сокольниках одобрено возведение двух корпусов высотой от шести до 39 этажей с единым двухуровневым паркингом. Общая площадь первой очереди комплекса составит 95,6 тысячи м²».
Фасады. Жилой многофункциональный комплекс «КОД Сокольники», проект
© АБ «Остоженка» / девелопер «Новая Эра»
Фасады. Жилой многофункциональный комплекс «КОД Сокольники», проект
© АБ «Остоженка» / девелопер «Новая Эра»
Фасады. Жилой многофункциональный комплекс «КОД Сокольники», проект
© АБ «Остоженка» / девелопер «Новая Эра»
Фасады. Жилой многофункциональный комплекс «КОД Сокольники», проект
© АБ «Остоженка» / девелопер «Новая Эра»
Фасады. Жилой многофункциональный комплекс «КОД Сокольники», проект
© АБ «Остоженка» / девелопер «Новая Эра»
Жилой многофункциональный комплекс «КОД Сокольники», проект
© АБ «Остоженка» / девелопер «Новая Эра»
Фасады. Жилой многофункциональный комплекс «КОД Сокольники», проект
© АБ «Остоженка» / девелопер «Новая Эра»
Жилой многофункциональный комплекс «Код Сокольники», проект
© АБ «Остоженка» / девелопер «Новая Эра»
Фасады. Жилой многофункциональный комплекс «КОД Сокольники», проект
© АБ «Остоженка» / девелопер «Новая Эра»
Фасады. Жилой многофункциональный комплекс «КОД Сокольники», проект
© АБ «Остоженка» / девелопер «Новая Эра»
Фасады. Жилой многофункциональный комплекс «КОД Сокольники», проект
© АБ «Остоженка» / девелопер «Новая Эра»
Фасады. Жилой многофункциональный комплекс «КОД Сокольники», проект
© АБ «Остоженка» / девелопер «Новая Эра»
Жилой многофункциональный комплекс «Код Сокольники», проект
© АБ «Остоженка» / девелопер «Новая Эра»
Фасады. Жилой многофункциональный комплекс «КОД Сокольники», проект
© АБ «Остоженка» / девелопер «Новая Эра»
Жилой многофункциональный комплекс «Код Сокольники», проект
© АБ «Остоженка» / девелопер «Новая Эра»
Жилой многофункциональный комплекс «Код Сокольники», проект
© АБ «Остоженка» / девелопер «Новая Эра»
Жилой многофункциональный комплекс «КОД Сокольники», проект
© АБ «Остоженка» / девелопер «Новая Эра»
Объемно-пространственная концепция. Жилой многофункциональный комплекс «КОД Сокольники», проект
© АБ «Остоженка» / девелопер «Новая Эра»
Схема межевания территории с наложением инженерных сетей. Жилой многофункциональный комплекс «КОД Сокольники», проект
© АБ «Остоженка» / девелопер «Новая Эра»
Схема планировочной организации земельного участка. Жилой многофункциональный комплекс «Код Сокольники», проект
© АБ «Остоженка» / девелопер «Новая Эра»
Схема генерального плана территории. Жилой многофункциональный комплекс «КОД Сокольники», проект
© АБ «Остоженка» / девелопер «Новая Эра»
Квартирография / аксонометрия. Жилой многофункциональный комплекс «КОД Сокольники», проект
© АБ «Остоженка» / девелопер «Новая Эра»
Квартирография / аксонометрия. Жилой многофункциональный комплекс «КОД Сокольники», проект
© АБ «Остоженка» / девелопер «Новая Эра»
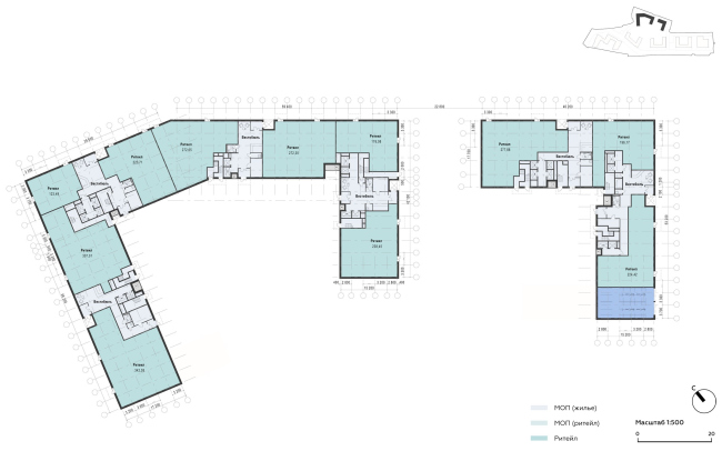
Схема плана 1 этажа. Участок 2. Корпуса 2.1, 2.2. Жилой многофункциональный комплекс «КОД Сокольники», проект
© АБ «Остоженка» / девелопер «Новая Эра»
Схема плана 3 этажа. Участок 2. Корпуса 2.1, 2.2. Жилой многофункциональный комплекс «КОД Сокольники», проект
© АБ «Остоженка» / девелопер «Новая Эра»
Интерьер Гранд-лобби. Жилой многофункциональный комплекс «Код Сокольники», проект
© 211 Studio / девелопер «Новая Эра»
Интерьер Гранд-лобби. Жилой многофункциональный комплекс «Код Сокольники», проект
© 211 Studio / девелопер «Новая Эра»
Интерьер Гранд-лобби. Жилой многофункциональный комплекс «Код Сокольники», проект
© 211 Studio / девелопер «Новая Эра»
Интерьер Гранд-лобби. Жилой многофункциональный комплекс «Код Сокольники», проект
© 211 Studio / девелопер «Новая Эра»
Интерьер Гранд-лобби. Жилой многофункциональный комплекс «Код Сокольники», проект
© 211 Studio / девелопер «Новая Эра»
Интерьер Гранд-лобби. Жилой многофункциональный комплекс «Код Сокольники», проект
© 211 Studio / девелопер «Новая Эра»
Интерьер Гранд-лобби. Жилой многофункциональный комплекс «Код Сокольники», проект
© 211 Studio / девелопер «Новая Эра»
Интерьер Гранд-лобби. Жилой многофункциональный комплекс «Код Сокольники», проект
© 211 Studio / девелопер «Новая Эра»
Интерьер Гранд-лобби. Жилой многофункциональный комплекс «Код Сокольники», проект
© 211 Studio / девелопер «Новая Эра»
Интерьер Гранд-лобби. Жилой многофункциональный комплекс «Код Сокольники», проект
© 211 Studio / девелопер «Новая Эра»
Интерьер Гранд-лобби. Жилой многофункциональный комплекс «Код Сокольники», проект
© 211 Studio / девелопер «Новая Эра»
Интерьер Гранд-лобби. Жилой многофункциональный комплекс «Код Сокольники», проект
© 211 Studio / девелопер «Новая Эра»
Интерьер Гранд-лобби. Жилой многофункциональный комплекс «Код Сокольники», проект
© 211 Studio / девелопер «Новая Эра»

Архитекторы – партнеры Архи.ру:

  • Никита Явейн
  • Евгений Зеленов
  • Григорий Мустафин
  • Дмитрий Остроумов
  • Полина Воеводина
  • Владислав Андреев
  • Александр Асадов
  • Валерий Каняшин
  • Вера Бутко
  • Татьяна Зульхарнеева
  • Михаил Давыдов
  • Андрей Гнездилов
  • Юлия Тряскина
  • Юлиана Княжевская
  • Виталий Лутц
  • Александр Самарин
  • Василий Крапивин
  • Антон Яр-Скрябин
  • Сергей Переслегин
  • Даниил Лоренц
  • Всеволод Медведев
  • Павел Андреев
  • Дмитрий Ликин
  • Александр Скокан
  • Игорь Шварцман
  • Ерлан Бекмухамедов
  • Андрей Романов
  • Борис Воскобойников
  • Николай Кикава
  • Иван Кожин
  • Сергей Никешкин
  • Алексей Орлов
  • Олег Мединский
  • Наталья Сидорова
  • Евгений Подгорнов
  • Олег Шапиро
  • Марина Егорова
  • Ростислав Цайзер
  • Владимир Плоткин
  • Сергей Скуратов
  • Сергей Труханов
  • Антон Надточий
  • Николай Переслегин
  • Сергей Чобан
  • Анастасия Абашева
  • Михаил Канунников
  • Мария Ахременкова
  • Степан Липгарт
  • Александр Котенков
  • Александра Кузьмина
  • Наталия Шилова
  • Юлия Солдатенкова
  • Энди Сноу
  • Юлий Борисов
  • Раис Баишев
  • Андрей Михайлов
  • Елена Пучкова
  • Дмитрий Буш
  • Георгий Трофимов
  • Илья Машков
  • Андрей Асадов
  • Евгений Новосадюк
  • Станислав Белых
  • Екатерина Кузнецова
  • Дмитрий Сухов
  • Григориос Гавалидис
  • Сергей Кузнецов
  • Зураб Басария
  • Игорь Членов
  • Константин Ходнев
  • Тимур Абдуллаев
  • Екатерина Абдуллаева
  • Маргарита Авдышева
  • Левон Айрапетов
  • Александр Аношкин
  • Алексей Афоничкин
  • Владислав Бек-Булатов
  • Антон Белов
  • Татьяна Бузулукова
  • Петр Васильев
  • Данило Вукосавлевич
  • Алина Георгиевская
  • Павел Гордеев
  • Илья Гринберг
  • Никита Демидов
  • Никита Дергунов
  • Наталья Жилкина
  • Алексей Зародов
  • Екатерина Зырина
  • Алексей Ильин
  • Дарья Ильина
  • Олег Карлсон
  • Алексей Кибкало
  • Денис Кувшинников
  • Анна Куликова
  • Алексей Курков
  • Данил Куров
  • Мария Кутай
  • Евгений Кутай
  • Иван Кычкин
  • Антон Ладыгин
  • Дмитрий Лапин
  • Борис Левянт
  • Илья Левянт
  • Катерина Левянт
  • Валерий Лукомский
  • Антон Лукомский
  • Екатерина Ляпунова
  • Иса Магомедов
  • Сергей Марков
  • Елена Мерцалова
  • Николай Миловидов
  • Станислав Михаловский
  • Сергей Мичурин
  • Олеся Могилевская
  • Филипп Никандров
  • Мария Николаева
  • Дмитрий Овчаров
  • Сергей Пергаев
  • Виктор Перов
  • Алексей Полищук
  • Роман Пономарёв
  • Валерия Преображенская
  • Виктория Раубо
  • Василий Рыбаков
  • Николай Рыбаков
  • Мария Салех
  • Александр Стариков
  • Илья Уткин
  • Елисей Чакан
  • Бориша Чорович
  • Олег Шурыгин
  • Дмитрий Шурыгин

Проект из каталога (случайный выбор)

Бизнес-центр «Kiroff»
Вадим Дражин, 2013 – 2014
Бизнес-центр «Kiroff»

Постройки и проекты (новые записи):

  • Детский сад на 200 мест в Жилино-1
  • Архитектурная концепция кластера Ломоносов-2
  • Клубный дом в 1-м Казачьем переулке
  • Частный дом в Ленинградской области
  • IT-кластер TravelLine в Йошкар-Оле
  • Гостиничный комплекс Cosmos Selection Derbent 5
  • Офис компании АльфаСтрахование
  • MIDITI
  • Офис компании Kept

Новости российской архитектуры:

Звенья одной цепи
30.04.2026

Звенья одной цепи

Александр Федотов, Глеб Кожевников, Бокейхан Камза, Евгений Волков
IAD Awards 2026
29.04.2026

IAD Awards 2026