Villa K в северной Италии
                Фотография © Mattia Caprara&Flavio Pescatori / предоставлена Alvisi Kirimoto
        Villa K в северной Италии
                Фотография © Marco Cappelletti / предоставлена Alvisi Kirimoto
        Villa K в северной Италии
                Фотография © Marco Cappelletti / предоставлена Alvisi Kirimoto
        Villa K в северной Италии
                Фотография © Marco Cappelletti / предоставлена Alvisi Kirimoto
        На территории площадью около 2 га размещаются два реконструированных строения, один новый объем и сразу несколько открытых и затененных зон отдыха, включая площадки для занятия спортом, террасы, солярий и даже небольшие огороды. Все видовые точки при этом точно просчитаны, вплоть до того, что открытый бассейн идеально подхватывает линию горизонта. Конечно, от него открывается самый выигрышный вид на всю долину. А соединяют все дорожки, вымощенные местным камнем.
Villa K в северной Италии
                Фотография © Marco Cappelletti / предоставлена Alvisi Kirimoto
        Villa K в северной Италии
                Фотография © Marco Cappelletti / предоставлена Alvisi Kirimoto
        Villa K в северной Италии
                Фотография © Marco Cappelletti / предоставлена Alvisi Kirimoto
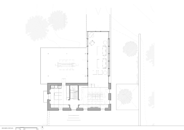
        Полностью сохранив структуру старых построек, их максимально открыли вовне, буквально стерев границу между внутренним и внешним. В главном объеме площадью порядка 450 м2 на первом этаже размещены кухня, столовая и большая гостиная. Газовый камин, выполненный из стали, помогает зонировать пространства. За счет деревянной пристройки это центральное общественное пространство в буквальном смысле выливается в уютное патио с большим столом из тиса и печью для пиццы. Двухскатный объем пристройки отделан натуральным кедром: ритм этих деревянных реек постепенно становится все более редким, органично переходя в эффектную перголу.
Villa K в северной Италии
                Фотография © Marco Cappelletti / предоставлена Alvisi Kirimoto
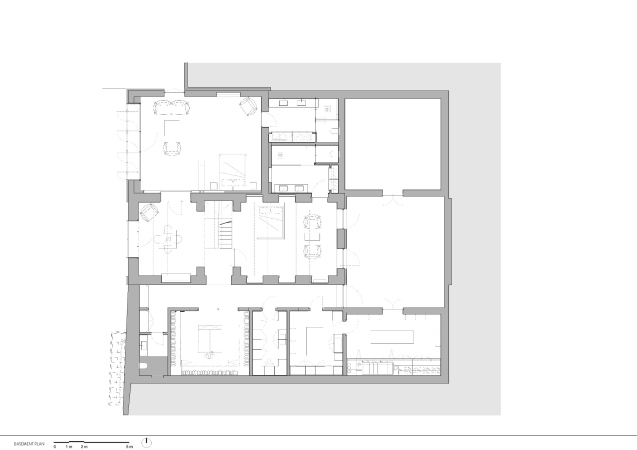
        В верхней части основного здания расположена главная спальня с отдельным гардеробом и ванной, в нее также можно попасть и с улицы. А в цокольном этаже (еще около 320 м2) разместился скрытый от посторонних глаз гараж и внушительный винный погреб, в котором хранится солидная коллекция хозяев дома – более 3000 бутылок. Здесь же нашлось место еще для двух отдельных жилых пространств, открытых вовне за счет перепада рельефа. Второе, гораздо меньшее строение, занято еще тремя апартаментами, каждый со своей гостиной и отдельным входом. Их общая площадь около 130 м2.
Villa K в северной Италии
                Фотография © Mattia Caprara&Flavio Pescatori / предоставлена Alvisi Kirimoto
        Простые и ясные формы, свободная планировка не перегруженных деталями пространств, большие площади панорамного остекления, сохраненные кирпичные арки и своды, светлые цвета, при этом благородные материалы в отделке (например, натуральный дуб на полу) и редкие акценты мебели, в том числе и авторской, в конечном итоге и позволили архитекторам добиться поразительного равновесия между старым и новым, а также между природным и рукотворным.
Информация предоставлена агентством MINT LIST
Villa K в северной Италии
                Фотография © Marco Cappelletti / предоставлена Alvisi Kirimoto
        Villa K в северной Италии
                Фотография © Marco Cappelletti / предоставлена Alvisi Kirimoto
        Villa K в северной Италии
                Фотография © Marco Cappelletti / предоставлена Alvisi Kirimoto
        Villa K в северной Италии
                © Alvisi Kirimoto
        Villa K в сiеверной Италии
                © Alvisi Kirimoto
        
 
                         
            
            
         
                            
 
                             
                             
                             
                                         
                                         
                                         
                                         
                                         
                             
                             
                             
                                         
                                         
                                         
                                         
                                         
                                         
                             
                                         
                                         
                                         
                                         
                                         
                             
                                         
                                         
                                         
                             
                             
                             
                                         
                                         
                                         
                             
                                         
                                         
                                         
                             
                     
                                                                        
                                                                     
                                                                        
                                                                     
                                                                        
                                                                     
                                                                        
                                                                     
                                                                        
                                                                     
                                                                        
                                                                     
                                                                        
                                                                     
                                                                        
                                                                     
                                                                        
                                                                     
                                                                        
                                                                     
                                                                        
                                                                     
                                                                        
                                                                     
                                                                        
                                                                     
                                                                        
                                                                     
                                                                        
                                                                     
                                                                        
                                                                     
                                                                        
                                                                     
                                                                        
                                                                     
                                                                        
                                                                     
                                                                        
                                                                     
                                                                        
                                                                     
                                                                        
                                                                     
                                                                        
                                                                     
                                                                        
                                                                     
                                                                        
                                                                     
                                                                        
                                                                     
                                                                        
                                                                     
                                                                        
                                                                     
                                                                        
                                                                     
                                                                        
                                                                     
                                                                        
                                                                     
                                                                        
                                                                     
                                                                        
                                                                     
                                                                        
                                                                     
                                                                        
                                                                     
                                                                        
                                                                     
                                                                        
                                                                     
                                                                        
                                                                     
                                                                        
                                                                     
                                                                        
                                                                     
                                                                        
                                                                     
                                                                        
                                                                     
                                                                        
                                                                     
                                                                        
                                                                     
                                                                        
                                                                     
                                                                        
                                                                     
                                                                        
                                                                     
                                                                        
                                                                     
                                                                        
                                                                     
                                                                        
                                                                     
                                                                        
                                                                     
                                                                        
                                                                     
                                                                        
                                                                     
                                                                        
                                                                     
                                                                        
                                                                     
                                                                        
                                                                     
                                                                        
                                                                     
                                                                        
                                                                     
                                                                        
                                                                     
                                                                        
                                                                     
                                                                        
                                                                     
                                                                        
                                                                     
                                                                        
                                                                     
                                                                        
                                                                     
                                                                        
                                                                     
                                                                        
                                                                     
                                                                        
                                                                     
                                                                        
                                                                     
                                                                        
                                                                     
                                                                        
                                                                     
                                                                        
                                                                     
                                                                        
                                                                     
                                                                        
                                                                     
                                                                        
                                                                     
                                                                        
                                                                     
                                        