Культурный центр The Yard
Фото © DONG
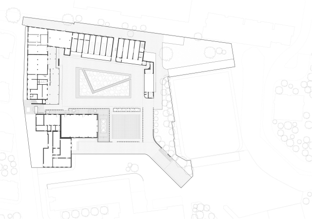
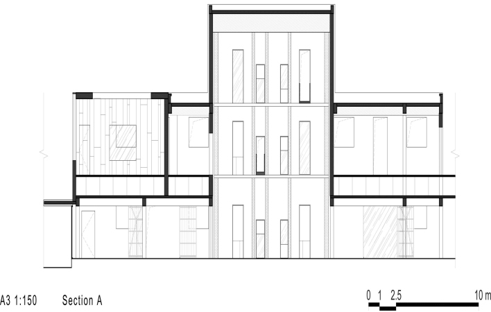
Шанхайское бюро Neri&Hu, работая над проектом реконструкции, столкнулась с проблемой – здания различались по высоте и площади, причем самым заметным было 5-этажное общежитие с деревянными воротами автомастерских на уровне земли. Большое пространство посередине пустовало – его использовали как парковку.
Культурный центр The Yard
Фото © DONG
Чтобы придать новому центру с художественными галереями, кафе и магазинами, гостиницей, кино- и театральными залами, а также офисами (которые разместились в бывшем общежитии) единство, архитекторы использовали сталь кортен, которая уместна как индустриальный материал для бывшей промзоны, а также меняет свой цвет с течением времени, что тоже вдохновляло авторов проекта. По их замыслу, реконструкция в том числе сохраняет память об уголке города, который иначе бы скоро исчез и оказался полностью забыт.
Целевая аудитория проекта – студенты и местные жители. Для них у входа размещена небольшая публичная библиотека.
Культурный центр The Yard
Фото © DONG
Помимо фасадов, навесов и ограждений из кортена, здесь применен старый кирпич. Из него выложена «рама» для брутального «сада камней», занявшего место парковки, выполнено мощение общественных пространств. Изначальные оштукатуренные фасады соседствуют с новыми.
Культурный центр The Yard
Фото © DONG
Культурный центр The Yard
Фото © Runzi Zhu
Культурный центр The Yard
Фото © Runzi Zhu
Культурный центр The Yard
Фото © DONG
Культурный центр The Yard
© Neri&Hu
