Медицинский центр в Шарлевале
Фото © Javier Callejas
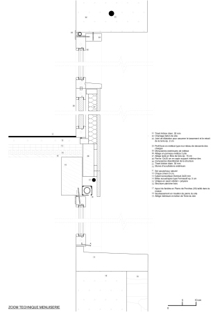
Архитекторы Combas нашли выход из положения в ресурсоэффективном подходе. Они выбрали материалом грунт самого Шарлеваля, что сразу создало как минимум колористическую связь между новым зданием и окружением. Кроме того, они применили традиционные для этой местности въездные арки для гужевого транспорта. Здесь они превратились в окна-витрины первого этажа, в то время прямоугольные проемы второго типичны для жилой застройки. Кроме грунта, в проекте использован местный камень: из него сложен низкий цоколь.
Медицинский центр в Шарлевале
Фото © Javier Callejas
К работе привлекли специалистов по земляному строительству Filiater. Грунт для возведения здания извлекли прямо на стройплощадке, что свело затраты любых ресурсов и углеродный след к минимуму. Несущие поперечные стены отделяют помещение каждой врачебной практики от соседних по модульному принципу: у всех них одинаковая площадь. Ненесущие фасады сложены из земляных блоков. В интерьере широко применено дерево, что довело объем «захваченного» углерода до максимума. В то же время, количество использованного металла здесь в 10 раз меньше, чем у типичного проекта такого же размера.
Большие окна обеспечивают интерьер солнечным светом, большой вынос кровли защищает здание от перегрева. Общественные пространства вокруг озеленены растениями, не требующими полива, а мощение сделано проницаемым, чтобы пропускать дождевую воду в грунт и снижать таким образом нагрузку на водосточную систему.
Медицинский центр в Шарлевале
Фото © Javier Callejas
Полезная площадь здания – 725 м2 (включая многофункциональное помещение и две служебные квартиры), открытые пространства занимают 1500 м2. Бюджет проекта – 1,93 млн евро.
Медицинский центр в Шарлевале
Фото © Javier Callejas
Медицинский центр в Шарлевале
Фото © Javier Callejas
Медицинский центр в Шарлевале
Фото © Javier Callejas
Медицинский центр в Шарлевале
Фото © Javier Callejas

