Напомним, финалистов и, соответственно, проектов было 14, 7 вышло в полуфинал и обсуждалось на градсовете, потом отобрали 4, потом, по результатам народного голосования, победил проект бюро ХВОЯ.
Проект dot.bureau – из тех, кто не дошел до полуфинала, впрочем, это мало что значит, поскольку почти все проекты этого конкурса были интересными, конкурс получился амбициозным, дал целый набор решений разного масштаба, смелости и реализуемости.
Аэропорт Омск-Фёдоровка. Следуя за Омским течением. Вид на здание аэропорта из парка
© dot.bureau, saccade.team, VLSKV
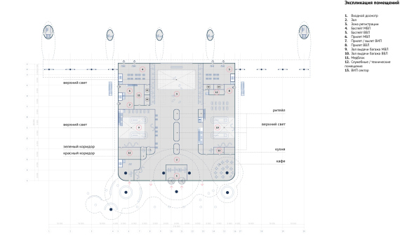
Авторы взяли за основу планировки самый распространенный вариант – прямоугольник сдержанных пропорций, и «скрестили» его с набором кругов, которые должны были бы быть видны с подлетающих самолетов как гипертрофированные «круги на воде». «Капли» образовали группу крупных грибовидных зонтиков перед входом: центральный, поставленный по оси, прикрывает зимний сад, вывешенный в уровне второго яруса. Перед ним выступает полукруглый балкон, под ним – уступ полукруглой площади, прикрытый козырьком этого балкона.
Перед главным фасадом капли-грибы группируются асимметрично и образуют гибкую линию, которая, по словам авторов проекта, вдохновлена изгибами реки Иртыш, но приведена к циркульно-геометрическому порядку через круглую букву «О». Где-то шляпки доходят до верха, где-то круги сливаются в объемы-блины с фасадами из моллированного стекла.
Собственно расходящиеся, как от капель, круги тут нарисованы с нижней стороны, как часть потолка. Пофантазировав, можно представить себя рыбой, которая наблюдает капли дождя из-под воды – но рыбка должна быть небольшой, так как круги даны в очень большом масштабе.
Важно, что паттерн заходит внутрь – круги продолжаются и там.
Аэропорт Омск-Фёдоровка. Следуя за Омским течением
© dot.bureau, saccade.team, VLSKV
Пожелание видеть самолеты от входа – визуальной проницаемости насквозь – здесь тоже выполнено.
Аэропорт Омск-Фёдоровка. Следуя за Омским течением. Лёд. Зона регистрации
© dot.bureau, saccade.team, VLSKV
Но вернемся наружу. Тут авторы, как и некоторые их коллеги, предлагают устроить перед аэропортом парк, и у него есть две особенности. Во-первых, он трактован как «миниатюрная модель Омской области с уникальными ландшафтными особенностями и разнообразием растительного мира», «от северных таежных лесов и болот до южных степей, через лесостепную зону» – на виде сверху привлекают внимание озерца и красноватый оттенок растительности. Во-вторых, в отличие от коллег, среди которых две команды смело спрятали парковку под землю, у dot. парковка осталась плоскостной, но парк вынесен вперед, расположен перед ней и довольно протяжен.
В переходах привлекают внимание V-образные опоры.
Внутри трехэтажного здания терминала авторы, по их словам, напоминают пассажирам о разных состояниях воды, от льда до пара, предлагая посредством этого намека расслабиться и отдохнуть от дорожной суеты.
Здесь, в интерьерах, проявляет себя и другая грань идентичности: для оформления зоны выдачи багажа dot. используют местные орнаменты и панели цвета дерева. Мы как будто «выныриваем» из водной стихии в нечто теплое и деревянное, в этакую избу, при том что в других залах абстрактная образность круглящих фигур удерживает пассажира в рамках водной метафоры – ну или просто современной стилистики без прямых отсылок к идентичности.
Надо сказать, что когда в конкурсе 14 участников – несложно перебрать все возможные темы для мотивации проектных решений. К примеру, в острогу обратились минимум два участника: KPLN и ЦЛП, к воде ГОРА и рассматриваемый здесь проект dot.bureau, а отчасти, в форме льда, еще и NEFA. тем не менее – даже любопытно наблюдать, как это происходит – при одинаковой контекстной мотивации пластические решения получаются разными. Что позволяет задуматься на тему связи идейных объяснений и архитектурных предложений. Она, определенно, не линейная.
В заключение пожелаем, чтобы два проекта, оставшиеся от четырнадцати, тоже нашлись...
