Реконструкция книжного магазина Shanghai Book City
                Фотография © CreatAR Images / предоставлена Wutopia Lab
        Реконструкция книжного магазина Shanghai Book City
                Фотография © CreatAR Images / предоставлена Wutopia Lab
        Команда Юй Тина была жестко ограничена в своих действиях: требовалось расширить имеющиеся эвакуационные выходы и добавить новые, установить спринклеры и огнезащитные шторы, при этом ни сократить, ни увеличить общую площадь (чуть менее 12 000 м2) было нельзя. Лишь 10 % несущих конструкций могли подвергнуться изменениям, основные очертания фасада тоже необходимо было сохранить. Кроме того, здание полностью лишилось подвала, в котором ранее располагалось книгохранилище, и ему необходимо было найти новое место. В довершении всего проблемой стала острая нехватка естественного освещения в интерьере.
Реконструкция книжного магазина Shanghai Book City
                Фотография © CreatAR Images / предоставлена Wutopia Lab
        Реконструкция книжного магазина Shanghai Book City
                Фотография © CreatAR Images / предоставлена Wutopia Lab
        В Китае такие большие магазины, по сути выполняющие функции районной библиотеки, сегодня становятся скорее культурными центрами. Поэтому с взаимодействия с городским пространством Юй Тин и начал выстраивать свой проект. Перед углубленным стеклянным фасадом первого этажа он создал общественную зону. Сам первый этаж практически полностью был освобожден, и Юй использовал уже имеющийся перепад высот для формирования уступчатого возвышения, которое назвал «книжная гора». Это свободная, абсолютно открытая зона, тесно связанная с улицей. Здесь можно устраивать чтения, проводить презентации, выставки, просто бродить, даже петь. Благодаря красному цвету и сплошному остеклению происходящее внутри хорошо видно прохожим – на довольно темной улице со сдержанной по цвету и мало примечательной архитектурой возник яркий, манящий акцент.
Реконструкция книжного магазина Shanghai Book City
                Фотография © CreatAR Images / предоставлена Wutopia Lab
        Реконструкция книжного магазина Shanghai Book City
                Фотография © CreatAR Images / предоставлена Wutopia Lab
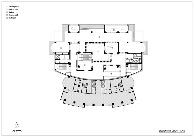
        «Гора» стала основанием, на котором Юй Тин возвел свой город – Шанхай в миниатюре. Но смелых цветовых пятен больше нет нигде. Центральную часть основных шести этажей занимают три двухэтажных атриума, сдвинутых друг относительно друга и соединенные эскалаторами. Перекрытия этих атриумов остеклены, что, вместе с панорамными окнами на фасаде, позволяет впустить внутрь естественный свет. В атриумах расположены общественные центры: театр, аудитория и площадь.
Реконструкция книжного магазина Shanghai Book City
                Фотография © CreatAR Images / предоставлена Wutopia Lab
        Реконструкция книжного магазина Shanghai Book City
                Фотография © CreatAR Images / предоставлена Wutopia Lab
        Реконструкция книжного магазина Shanghai Book City
                Фотография © CreatAR Images / предоставлена Wutopia Lab
        Фасады этого города образованы книжными стеллажами, общая длина которых достигает 10 км. На них удалось разместить около 470 тысяч томов. Сплошные ряды полок отлично просматриваются с улицы, а за ними, в отдельных «домиках» (всего их 16), спрятаны административные помещения, студии для писателей, аудитории, комнаты отдыха и так далее. Нашлось место и другим магазинам с кафе. Тин отдельно отмечает, что не видит никакого противоречия в подобном смешении функций, если коммерческие объекты готовы играть по правилам его «города», как это обычно и происходит в реальности.
Реконструкция книжного магазина Shanghai Book City
                Фотография © CreatAR Images / предоставлена Wutopia Lab
        Созданное пространство с переходами, прострелами, отражениями, игрой масштабов оказывается чрезвычайно сложно организовано, так что гулять по нему можно практически бесконечно. Но еще нужна историческая составляющая. За нее в проекте отвечают фрагменты отделки старого фасада, перемещенные в зону за «горой», а также аккуратно сохраненный и даже взятый в рамку фрагмент старой мраморной отделки на площадке одной из эвакуационных лестниц, в котором рисунок прожилок камня складывается в подобие человеческой фигуры.
Реконструкция книжного магазина Shanghai Book City
                Фотография © CreatAR Images / предоставлена Wutopia Lab
        Реконструкция книжного магазина Shanghai Book City
                Фотография © CreatAR Images / предоставлена Wutopia Lab
        Реконструкция книжного магазина Shanghai Book City
                Фотография © CreatAR Images / предоставлена Wutopia Lab
        Реконструкция книжного магазина Shanghai Book City
                Фотография © CreatAR Images / предоставлена Wutopia Lab
        Весь «город» получил внешнюю оболочку из перфорированного алюминия, за которой частично спрятано новое оборудование. Узкие вертикальные панели установлены под разным углом и сами напоминают корешки книг, а подсветка за ними визуализирует образ «города тысячи огней». В кажущемся абстрактным рисунке перфорации архитектор зашифровал прошлое и будущее Шанхая. Фасад можно «читать», ведь только такая – почти в буквальном смысле читаемая – архитектура и может существовать во время интернета, уверен Юй Тин.
Реконструкция книжного магазина Shanghai Book City
                © Wutopia Lab
        Реконструкция книжного магазина Shanghai Book City
                © Wutopia Lab
        Реконструкция книжного магазина Shanghai Book City
                © Wutopia Lab
        
                        
            
            
        
                            