Арт-центр Sun River в Ваньнине
Фотография © Liu Guowei / предоставлена Wutopia Lab
Арт-центр Sun River в Ваньнине
Фотография © Liu Guowei / предоставлена Wutopia Lab
Арт-центр Sun River в Ваньнине
Фотография © Liu Guowei / предоставлена Wutopia Lab
Судьба проекта также была не слишком проста, так как предыдущий архитектор не смог предложить заказчику достаточно смелый вариант, оставив после себя лишь фундаменты трех зданий. Их Юй Тин решил превратить в три пика – один основной (выставочные пространства и кафе) и два «вспомогательных» (офисы и вестибюль со стойкой администратора) – соединенных переходами. А перед ними создать образ моря, которое хоть и окружает остров, но от арт-центра его не видно.
Арт-центр Sun River в Ваньнине
Фотография © Liu Guowei / предоставлена Wutopia Lab
Чтобы попасть к главному входу, нужно пройти по мосткам, проложенным через искусственный водоем, частично «затекающий» и в просторный, напоминающий пещеру вестибюль. А дальше, как и на настоящую гору, взобраться на вершину здания можно разными маршрутами. Все они соединяют интерьерные, полуоткрытые и открытые пространства и в конечном итоге ведут на смотровую платформу в верхней части сооружения и на террасу.
Арт-центр Sun River в Ваньнине
Фотография © Liu Guowei / предоставлена Wutopia Lab
Арт-центр Sun River в Ваньнине
Фотография © Liu Guowei / предоставлена Wutopia Lab
Арт-центр Sun River в Ваньнине
Фотография © Liu Guowei / предоставлена Wutopia Lab
Круглые проемы, возникающие в разных местах, дополняют этот «горный» ландшафт имитацией солнечного или лунного дисков. В результате возникает множество смысловых параллелей: море/водоем, пещера/вестибюль, лестница/тропа, площадка/скала и так далее. Юй Тин называет такой подход интертекстуальным, предлагая посетителям добавлять собственные воспоминания, мифы, символы, литературные аналогии, переживания.
Арт-центр Sun River в Ваньнине
Фотография © Liu Guowei / предоставлена Wutopia Lab
Арт-центр Sun River в Ваньнине
Фотография © Liu Guowei / предоставлена Wutopia Lab
Все три объема сверху накрыты полупрозрачной белой мембраной, которая создает еще одну «кожу», формируя важную для Юй Тина категорию визуальной границы, отличной от границы функциональной, то есть климатической. Наличие переходного, «серого» пространства между ними архитектор считает традиционным для китайских построек и исследует эту тему. Был использован легкий материал марки Serge Ferrari с перфорацией трех типов, различающихся по плотности, так что в верхней части он становится почти прозрачным. На солнце возникает эффект мерцания или трепетания – загадочный и манящий. Благодаря ему небольшие объемы арт-центра выделяются на фоне рядовой застройки, которая их окружает.
Арт-центр Sun River в Ваньнине
Фотография © Liu Guowei / предоставлена Wutopia Lab
Арт-центр Sun River в Ваньнине
Фотография © Liu Guowei / предоставлена Wutopia Lab
Белый цвет, преобладающий и во внешних, и во внутренних решениях, создает впечатление возвышенности и определенной условности. Чтобы развить дальше сложную систему образов и смыслов, добавить в противовес возвышенности материальность, была разработана яркая заливная подсветка, воскрешающая в памяти работы Марка Ротко.
Арт-центр Sun River в Ваньнине
Фотография © Liu Guowei / предоставлена Wutopia Lab
Подобную медиа-архитектуру Юй Тин в духе своих обычных философских упражнений предлагает считать супертекстом, соединяющим память, легенды и мифы, историю, ограничения и неуверенность постпандемии, неудачи и препятствия, надежду, ожидания и амбиции, а также формальные и неявные знания.
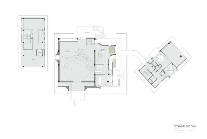
Арт-центр Sun River в Ваньнине
© Wutopia Lab
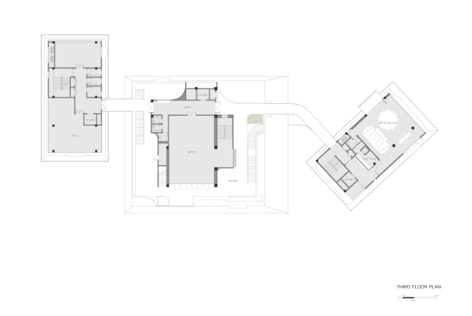
Арт-центр Sun River в Ваньнине
© Wutopia Lab
Арт-центр Sun River в Ваньнине
© Wutopia Lab
