Мост через реку Цзянсихэ (Исихэ)
Фото © Arch-Exist
Так как в Китае город может включать в себя не только урбанизированные зоны, но и сельскую местность и природные территории, Тяньфу, хотя официально находится в Чэнду, отделен от собственно города невысокой горной грядой и окружен полями и лугами. Поэтому 295-метровый мост расположен среди идиллических речных заводей. Он перекинут через реку Цзянсихэ (Исихэ), приток Тоцзяна, в свою очередь впадающего в Янцзы.
Мост через реку Цзянсихэ (Исихэ)
Фото © Arch-Exist
В таком контексте было важным сохранить эту атмосферу. Эта задача состояла из двух частей. Первая, формальная, требовала от авторов проекта (ZHA и конструкторов из Buro Happold) вписать мост в окружение: несмотря на контрастный белый цвет, сооружение с плавным, органическим силуэтом двух арок 30-метровой высоты не кажется чуждым природе.
Мост через реку Цзянсихэ (Исихэ)
Фото © Arch-Exist
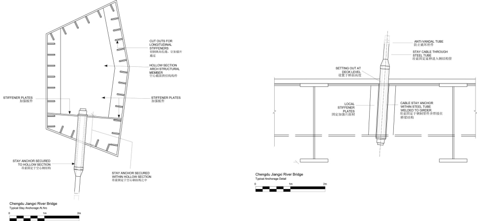
Второй задачей было сократить масштаб и время строительства. У моста с центральным пролетом в 185 м нет пилонов в русле реки, он опирается лишь на ее берега (там расположены 55-метровые боковые пролеты). Только сваи фундамента и береговые устои выполнены из монолитного бетона, а остальные части моста – сборные (стальные или бетонные).
Соединенные в верхней части арки вместе с коробчатыми продольными (идущими по краям пролетного строения) и поперечными балками придают постройке достаточную прочность, чтобы выдержать ураган силой «раз в 200 лет».
Мост через реку Цзянсихэ (Исихэ)
Фото © Liang Xue
Мост через реку Цзянсихэ (Исихэ)
Фото © Liang Xue
Мост через реку Цзянсихэ (Исихэ)
Фото © Arch-Exist
Мост через реку Цзянсихэ (Исихэ)
Фото © Arch-Exist
Мост через реку Цзянсихэ (Исихэ)
Фото © Liang Xue
