Столичный международный центр выставок и конгрессов (CIECC)
Фото © Virgile Simon Bertrand
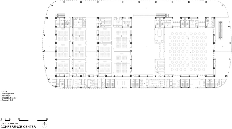
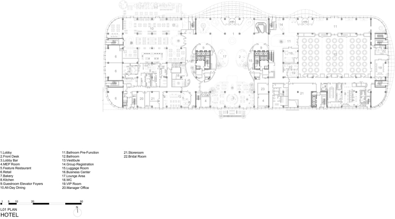
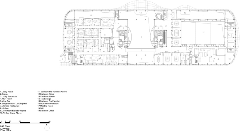
Комплекс от ZHA, который был спроектирован и построен в районе Шуньи за 4 года, с 2021 по 2025, добавил в это число 210 тыс. м2 крытых и 50 тыс. м2 открытых выставочных пространств, а также конгресс-центр размером 50 тыс. м2, включая зону для проведения конференций на 9000 участников (15 тыс. м2). В программу также входит отель на 410 номеров.
Столичный международный центр выставок и конгрессов (CIECC)
Фото © Virgile Simon Bertrand
Девять выставочных павильонов (около 23 тыс. м2 каждый) и три вестибюля расположены симметрично вдоль оси север-юг. Отель и конгресс-центр возведены к северу, где формируют площадь.
Столичный международный центр выставок и конгрессов (CIECC)
Фото © Virgile Simon Bertrand
Модульная структура позволила упростить и ускорить строительство. Модульными являются также и складчатые кровли плавных очертаний: вместе с надземными переходами-лентами они визуально собирают огромное сооружение в единое целое. Играет роль и одинаковая трактовка оконных проемов: они помещены в рамы-ниши.
Столичный международный центр выставок и конгрессов (CIECC)
Фото © Virgile Simon Bertrand
Цвет здания архитекторы определяют как темно-медный. В помещениях работает вентиляция гибридного типа, на кровлях установлена система сбора дождевой воды и солнечные батареи.
Столичный международный центр выставок и конгрессов (CIECC)
Фото © Virgile Simon Bertrand
Столичный международный центр выставок и конгрессов (CIECC)
Фото © Virgile Simon Bertrand
Столичный международный центр выставок и конгрессов (CIECC)
Фото © Virgile Simon Bertrand
Столичный международный центр выставок и конгрессов (CIECC)
Фото © Virgile Simon Bertrand
Столичный международный центр выставок и конгрессов (CIECC)
Фото © Virgile Simon Bertrand
Столичный международный центр выставок и конгрессов (CIECC)
Фото © Virgile Simon Bertrand
