Начальная школа Les Violettes («Фиалки») в Марей-Марли
Фотография © Nicolas Da Silva / предоставлена FE Consulting
Начальная школа Les Violettes («Фиалки») в Марей-Марли
Фотография © Nicolas Da Silva / предоставлена FE Consulting
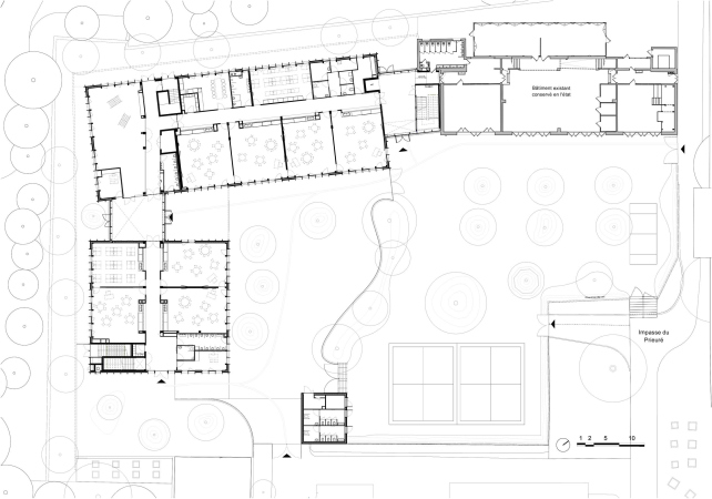
Начальная школа Les Violettes, то есть «Фиалки», находится недалеко от Парижа, в самом центре городка Марей-Марли. Комплекс, состоящий из нескольких построек разного времени, расположен на возвышенности, откуда хорошо видны небоскребы района Дефанс, и окружен деревьями. По заказу муниципалитета архитекторы реорганизовали территорию и добавили новые корпуса, включая детский сад, дополнительные классы для начальной школы и центр отдыха. Проект обошелся в 7,3 млн евро. Интересно, что сама школа на время работ не закрывалась.
Начальная школа Les Violettes («Фиалки») в Марей-Марли
Фотография © Sergio Grazia / предоставлена FE Consulting
Два новых объема разместили в дальнем западном углу участка, соединив их между собой и со старым зданием школы двухуровневыми остекленными переходами. По просьбе сотрудников учебные помещения детского сада расположены на первом этаже и имеют прямой выход в зеленый обустроенный двор.
Начальная школа Les Violettes («Фиалки») в Марей-Марли
Фотография © Sergio Grazia / предоставлена FE Consulting
Начальная школа Les Violettes («Фиалки») в Марей-Марли
Фотография © Sergio Grazia / предоставлена FE Consulting
Для отделки нижнего из двух уровней выбрали выращенную во Франции дугласову пихту, причем поверхность вертикальных планок была сразу специально состарена, чтобы внешний вид здания уже не менялся. Верхний ярус, по контрасту с демонстративно материальным и темным низом, сделан легким и даже малозаметным: стекло и зеркальные панели из алюминия отражают окружающую зелень и почти растворяются в ней. Еще больше усложняет образ небольшой изгиб крыш, приподнятых по краям в случае обоих новых объемов.
Начальная школа Les Violettes («Фиалки») в Марей-Марли
Фотография © Sergio Grazia / предоставлена FE Consulting
Начальная школа Les Violettes («Фиалки») в Марей-Марли
Фотография © Sergio Grazia / предоставлена FE Consulting
Начальная школа Les Violettes («Фиалки») в Марей-Марли
Фотография © Sergio Grazia / предоставлена FE Consulting
Местное дерево в целом стало основным материалом, что позволило удешевить и ускорить строительство. И во внутреннем решении деревянный каркас оставлен открытым, так же как и фрагменты бетонных стен, добавленных для большей устойчивости. Для улучшения акустики используется древесное волокно, а для теплоизоляции – так называемая древесная шерсть. Оба новых корпуса устроены одинаково – с учебными классами по сторонам центрального коридора. Такая организация потребовала дополнительных внутренних проемов, чтобы глубже пустить естественный свет.
Начальная школа Les Violettes («Фиалки») в Марей-Марли
© HEMAA Architectes / предосталено FE Consulting
Начальная школа Les Violettes («Фиалки») в Марей-Марли
© HEMAA Architectes / предосталено FE Consulting
Начальная школа Les Violettes («Фиалки») в Марей-Марли
© HEMAA Architectes / предосталено FE Consulting
