RSS
Начальная школа Les Violettes («Фиалки») в Марей-Марли
Фотография © Nicolas Da Silva / предоставлена FE Consulting

Начальная школа Les Violettes («Фиалки»)


/ School Complex Les Violettes

информация:

HEMAA
HEMAA Architectes / Франция
Hesters-Oyon Architectes / Франция
Начальная школа Les Violettes («Фиалки») в Марей-Марли
Фотография © Nicolas Da Silva / предоставлена FE Consulting

Архи.ру об этом объекте:

21.02.2025

Анна Старостина. Фиалки каждый день

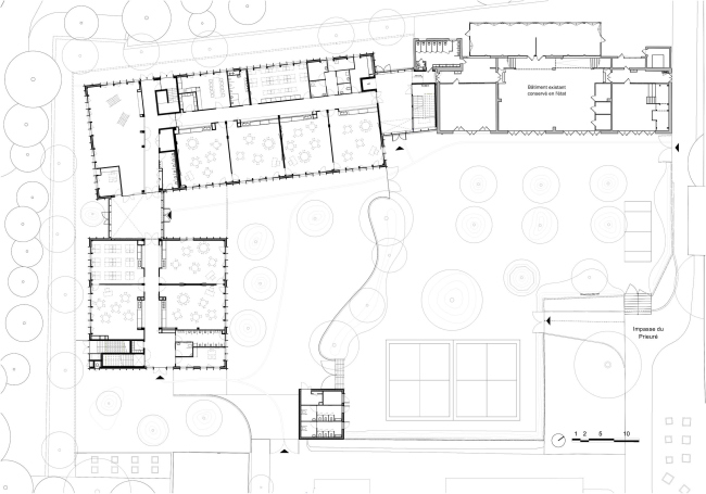
Архитекторы HEMAA расширили комплекс начальной школы Les Violettes в парижском предместье Марей-Марли, соединив в своем проекте состаренную древесину, зеркальные алюминиевые панели и прозрачное стекло.

читать дальше
Начальная школа Les Violettes («Фиалки») в Марей-Марли
Фотография © Nicolas Da Silva / предоставлена FE Consulting
Начальная школа Les Violettes («Фиалки») в Марей-Марли
Фотография © Nicolas Da Silva / предоставлена FE Consulting
Начальная школа Les Violettes («Фиалки») в Марей-Марли
Фотография © Nicolas Da Silva / предоставлена FE Consulting
Начальная школа Les Violettes («Фиалки») в Марей-Марли
Фотография © Nicolas Da Silva / предоставлена FE Consulting
Начальная школа Les Violettes («Фиалки») в Марей-Марли
Фотография © Nicolas Da Silva / предоставлена FE Consulting
Начальная школа Les Violettes («Фиалки») в Марей-Марли
Фотография © Nicolas Da Silva / предоставлена FE Consulting
Начальная школа Les Violettes («Фиалки») в Марей-Марли
Фотография © Nicolas Da Silva / предоставлена FE Consulting
Начальная школа Les Violettes («Фиалки») в Марей-Марли
Фотография © Nicolas Da Silva / предоставлена FE Consulting
Начальная школа Les Violettes («Фиалки») в Марей-Марли
Фотография © Nicolas Da Silva / предоставлена FE Consulting
Начальная школа Les Violettes («Фиалки») в Марей-Марли
Фотография © Sergio Grazia / предоставлена FE Consulting
Начальная школа Les Violettes («Фиалки») в Марей-Марли
Фотография © Sergio Grazia / предоставлена FE Consulting
Начальная школа Les Violettes («Фиалки») в Марей-Марли
Фотография © Sergio Grazia / предоставлена FE Consulting
Начальная школа Les Violettes («Фиалки») в Марей-Марли
Фотография © Sergio Grazia / предоставлена FE Consulting
Начальная школа Les Violettes («Фиалки») в Марей-Марли
Фотография © Sergio Grazia / предоставлена FE Consulting
Начальная школа Les Violettes («Фиалки») в Марей-Марли
Фотография © Sergio Grazia / предоставлена FE Consulting
Начальная школа Les Violettes («Фиалки») в Марей-Марли
Фотография © Sergio Grazia / предоставлена FE Consulting
Начальная школа Les Violettes («Фиалки») в Марей-Марли
Фотография © Sergio Grazia / предоставлена FE Consulting
Начальная школа Les Violettes («Фиалки») в Марей-Марли
Фотография © Nicolas Da Silva / предоставлена FE Consulting
Начальная школа Les Violettes («Фиалки») в Марей-Марли
Фотография © Sergio Grazia / предоставлена FE Consulting
Начальная школа Les Violettes («Фиалки») в Марей-Марли
Фотография © Nicolas Da Silva / предоставлена FE Consulting
Начальная школа Les Violettes («Фиалки») в Марей-Марли
Фотография © Sergio Grazia / предоставлена FE Consulting
Начальная школа Les Violettes («Фиалки») в Марей-Марли
Фотография © Sergio Grazia / предоставлена FE Consulting
Начальная школа Les Violettes («Фиалки») в Марей-Марли
Фотография © Sergio Grazia / предоставлена FE Consulting
Начальная школа Les Violettes («Фиалки») в Марей-Марли
© HEMAA Architectes / предосталено FE Consulting
Начальная школа Les Violettes («Фиалки») в Марей-Марли
© HEMAA Architectes / предосталено FE Consulting
Начальная школа Les Violettes («Фиалки») в Марей-Марли
© HEMAA Architectes / предосталено FE Consulting
Начальная школа Les Violettes («Фиалки») в Марей-Марли
© HEMAA Architectes / предосталено FE Consulting
Начальная школа Les Violettes («Фиалки») в Марей-Марли
© HEMAA Architectes / предосталено FE Consulting
Начальная школа Les Violettes («Фиалки») в Марей-Марли
© HEMAA Architectes / предосталено FE Consulting
Начальная школа Les Violettes («Фиалки») в Марей-Марли
© HEMAA Architectes / предосталено FE Consulting
Начальная школа Les Violettes («Фиалки») в Марей-Марли
© HEMAA Architectes / предосталено FE Consulting

Избранные архитекторы:

  • Рафаэль Монео
  • Даниэль Либескинд
  • Дэвид Аджайе
  • Одиль Декк
  • Ричард Роджерс
  • Заха Хадид
  • Оскар Нимейер
  • Алехандро Аравена
  • Стивен Холл

Проект из каталога (случайный выбор)

Избранные постройки:

  • Оперный театр в Гуанчжоу
  • Мемориал Холокоста в Лондоне
  • Центр изобразительных искусств Сейнсбери
  • Парк Галицкого в Краснодаре
  • Башня Samsung Jongno
  • Мосты «Арфа», «Цитра» и «Лютня»
  • Романтический парк «Тучков буян»
  • Развлекательный центр «Хан Шатыр»
  • Башня 30 St Mary Axe

Зарубежные новости

Симулятор «зеленой» жизни
05.03.2026

Симулятор «зеленой» жизни

Томас Хезервик
От пещеры до звезды
04.03.2026

От пещеры до звезды

Станислав Субботин
Дарья Кириллова
Горный страж
03.03.2026

Горный страж

Артем Агекян