Жилой комплекс 18T Mansion
Фото © Kris Provoost
Жилой комплекс 18T Mansion
Фото © Kris Provoost
Полуобщественные открытые зоны расположены на озелененной кровле подиума и во дворах. Жильцы могут общаться и отдыхать от суеты среди «устойчивого» озеленения и водоемов, которые помогают охладить воздух и очистить его от загрязнения. Над схемой благоустройства работали ландшафтные архитекторы JTL Studio.
Жилой комплекс 18T Mansion
Фото © Kris Provoost
Жилой комплекс 18T Mansion
Фото © Kris Provoost
Помимо беговой дорожки на крыше подиума, физическое здоровье обитатели ЖК смогут поддержать в открытом круглосуточно «ультрафитнес-центре», спортивных сооружениях, включая открытые подогреваемые и закрытые бассейны. Предусмотрены также детские игровые комнаты, тематические центры развлечений, художественные галереи, медицинский пункт, банкетные залы и т. д. Инфраструктура для жильцов сосредоточена на верхнем этаже подиума, на нижних этажах рядом с вестибюлями, в двухсветных зимних садах на разных ярусах. В жилом комплексе есть целых 10 клубных корпусов, включая крупнейший в Китае среди сооружений такого типа.
Жилой комплекс 18T Mansion
Фото © Kris Provoost
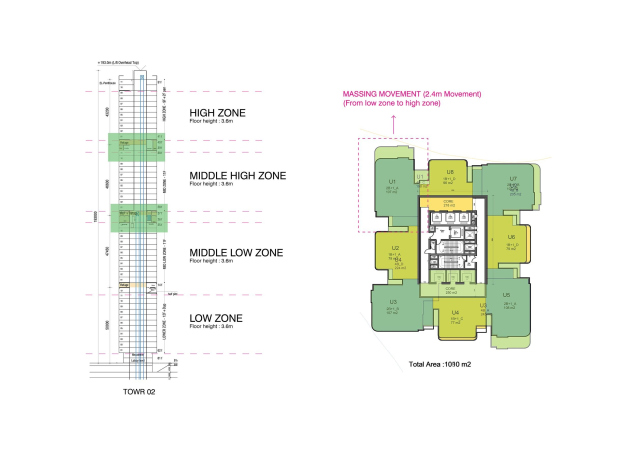
В квартирах устроено панорамное остекление, высота потолков достигает 3,3 или 3,6 м. Чтобы разместить в башнях 1046 квартир 84 типов (площадью от 83 до 1200 м2), рассчитанных на самые разные размеры семей и стили жизни, архитекторы использовали постепенное изменение формы башен по мере нарастания их высоты, максимальный сдвиг при этом составил 2,4 м. Наибольшая площадь – у пентхаусов с видами на реку Янцзы и горы.
Жилой комплекс 18T Mansion
Фото © Kris Provoost
Жилой комплекс 18T Mansion
Фото © Kris Provoost
Жилой комплекс 18T Mansion
Фото © Kris Provoost
Жилой комплекс 18T Mansion
Фото © Kris Provoost
Жилой комплекс 18T Mansion
Фото © Kris Provoost
