Офисное здание Premier Office
Фото © Triệu Chiến
Но главное назначение этого фасада все же не брендинг, а защита от солнца. Ажурные кирпичные панели скрывают за собой второй слой оболочки, из стекла и алюминия, но в хорошую погоду стеклянные окна (и двери первого этажа) можно раздвинуть. В совсем комфортных условиях можно раскрыть и кирпичные «ставни» (они поворачиваются под углом 45 градусов).
Офисное здание Premier Office
Фото © Triệu Chiến
Такое динамичное решение позволяет защищать интерьер от солнечного жара и одновременно обеспечивать естественные освещение и вентиляцию. Архитекторы считают, что более тесная, чем в полностью зависящих от кондиционеров офисах, связь помещений с природой, включая высаженные на лоджиях растения и даже дождь, повышают настроение сотрудников, а с ним и их работоспособность.
Офисное здание Premier Office
Фото © Triệu Chiến
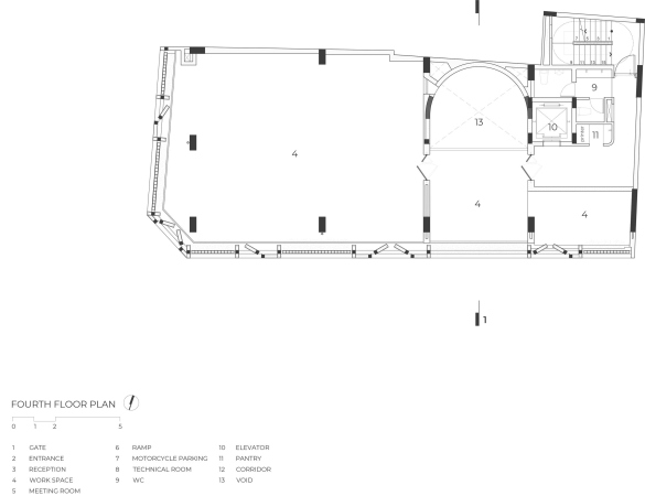
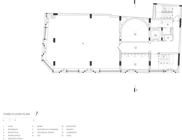
Эту цель преследует и общее оформление интерьеров. У здания бетонный каркас с кирпичным заполнением, причем кладка разных типов играет одновременно роль декора. Наиболее эффектно выглядит атриум со стойкой администратора (тоже кирпичной с орнаментом) на первом этаже. Он отделяет собственно офисную часть от лестнично-лифтового узла с туалетами и подсобками. Атриум не только помогает осветить прилегающие помещения, но и – как свободное, «нефункциональное» пространство – создает ощущение «люфта» и большего комфорта.
Офисное здание Premier Office
Фото © Triệu Chiến
Офисное здание Premier Office
Фото © Triệu Chiến
Офисное здание Premier Office
© Tropical Space
