RSS
Офисное здание Premier Office
Фото © Triệu Chiến

Офисное здание Premier Office


/ Premier Office

информация:

Tropical Space / Вьетнам
Офисное здание Premier Office
Фото © Triệu Chiến

Архи.ру об этом объекте:

15.10.2024

Нина Фролова. Кирпич в динамике

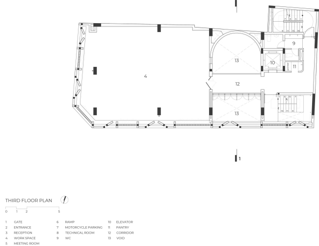
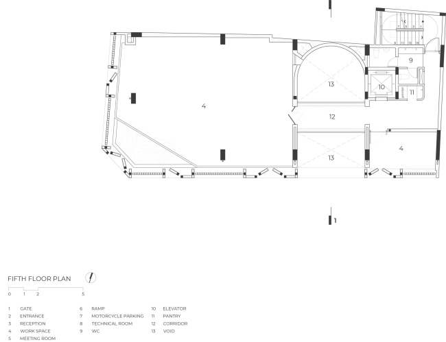
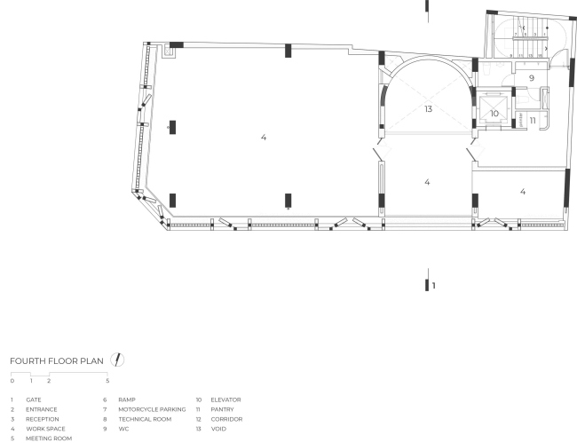
Ажурный фасад из кирпича защищает офисное здание в Хошимине по проекту местного бюро Tropical Space от солнца; часть его панелей можно раскрывать как ставни.

читать дальше
Офисное здание Premier Office
Фото © Triệu Chiến
Офисное здание Premier Office
Фото © Triệu Chiến
Офисное здание Premier Office
Фото © Triệu Chiến
Офисное здание Premier Office
Фото © Triệu Chiến
Офисное здание Premier Office
Фото © Triệu Chiến
Офисное здание Premier Office
Фото © Triệu Chiến
Офисное здание Premier Office
Фото © Triệu Chiến
Офисное здание Premier Office
Фото © Triệu Chiến
Офисное здание Premier Office
Фото © Triệu Chiến
Офисное здание Premier Office
Фото © Triệu Chiến
Офисное здание Premier Office
Фото © Triệu Chiến
Офисное здание Premier Office
Фото © Triệu Chiến
Офисное здание Premier Office
© Tropical Space
Офисное здание Premier Office
© Tropical Space
Офисное здание Premier Office
© Tropical Space
Офисное здание Premier Office
© Tropical Space
Офисное здание Premier Office
© Tropical Space
Офисное здание Premier Office
© Tropical Space
Офисное здание Premier Office
© Tropical Space
Офисное здание Premier Office
© Tropical Space
Офисное здание Premier Office
© Tropical Space
Офисное здание Premier Office
© Tropical Space
Офисное здание Premier Office
© Tropical Space

Избранные архитекторы:

  • Кэнго Кума
  • Дэвид Чипперфильд
  • Массимилиано Фуксас
  • Оскар Нимейер
  • Питер Айзенман
  • Рафаэль Виньоли
  • Джон Поусон
  • Стивен Холл
  • Петер Цумтор

Проект из каталога (случайный выбор)

Избранные постройки:

  • Алезия – музейный и археологический парк
  • Здание Гамбургской филармонии Elbphilarmonie
  • Библиотека Университета штата Северная Каролина
  • Новый кампус Google
  • Музей современного искусства Броуд LACMA
  • Центр исполнительских искусств
  • Национальный стадион Японии
  • Национальная библиотека Казахстана
  • Многофункциональный центр The Orange Cube

Зарубежные новости

Симулятор «зеленой» жизни
05.03.2026

Симулятор «зеленой» жизни

Томас Хезервик
От пещеры до звезды
04.03.2026

От пещеры до звезды

Станислав Субботин
Дарья Кириллова
Горный страж
03.03.2026

Горный страж

Артем Агекян