I-Renovation. Устойчивая система реновации жилья в России. Вид сверху на квартал
                © Игорь Соловьев, Наталия Николаева
        В то же время, по словам архитекторов, предложенный подход может быть использован и для других районов пятиэтажной застройки. Его суть – в сохранении основы домов. Основу надстраивают двумя этажами, первый ярус отдают под общественные функции разного рода, от магазинов до коворкингов, подвалы очищают и приспосабливают для техпомещений и кладовок. После укрепления конструктива возможна встройка лифтов. На кровлях планируются солнечные панели.
I-Renovation. Устойчивая система реновации жилья в России
                © Игорь Соловьев, Наталия Николаева
        В идее сохранения и реконструкции проект созвучен другим предложениям по обновлению пятиэтажек, как редким российским, так и европейским. Только в европейских проектах время от времени шла речь не о надстройке, а наоборот, о разборке верхних этажей, когда из пяти получалось, к примеру, три.
Другая особенность концепции – авторы предлагают расширить объемы на 2 метра, увеличив площадь квартир, соорудив перед старым каркасом деревянные фасады. Первые этажи оказываются полностью стеклянными или галерейными, выше деревянные фасады «шагают вперед».
I-Renovation. Устойчивая система реновации жилья в России. Каркас
                © Игорь Соловьев, Наталия Николаева
        I-Renovation. Устойчивая система реновации жилья в России. Тип фасадов «1а»
                © Игорь Соловьев, Наталия Николаева
        I-Renovation. Устойчивая система реновации жилья в России. Тип фасадов «1б»
                © Игорь Соловьев, Наталия Николаева
        В этом проект созвучен с идеей Тотана Кузембаева, который в 2018 году предлагал на территории квартала «Камушки», где сейчас планируется Сити II, среднеэтажную застройку из дерева – в качестве концептуального инициативного предложения, совместного с компанией Сегежа Груп. Именно в составе проекта Тотана впервые, кажется, на русской почве было предложено сохранение каркаса части пятиэтажек с сооружением вокруг них деревянной оболочки. Хотя и проект 2018 года также имел прообраз – финский проект Wood town 1997 года, нацеленный на популяризацию строительства из CLT-панелей.
Между тем нормативное одобрение среднеэтажного строительства из дерева в РФ, которого с нетерпением ждали в 2018 году, и в 2022 все еще пребывает в законотворческих коридорах, деревянные фасады надо признать самой слабой стороной проекта в части его нацеленности на реализацию. Авторов законодательная нерешительность, между тем, не пугает – даже напротив, они уверены в том, что их проект должен послужить продвижению деревянного строительства и его скорейшему включению в нормативы.
Игорь Соловьев
        Применение дерева для реализации фасадов потребует разработки специальных технических условий и проведения соответствующих испытаний. Социально значимый статус и выгодность проекта могут ускорить этот процесс и послужить основой для внесения изменений в общие строительные нормы, которые откроют новые возможности для строительного сектора России.
Внедрение деревянных конструкций позволяет не только экономически эффективно и качественно реконструировать панельные здания советской эпохи, но и разработать технологии и готовые строительные продукты для деревянных фасадов, которые имеют потенциал быть востребованными для разных секторов строительства.
Внедрение деревянных конструкций позволяет не только экономически эффективно и качественно реконструировать панельные здания советской эпохи, но и разработать технологии и готовые строительные продукты для деревянных фасадов, которые имеют потенциал быть востребованными для разных секторов строительства.
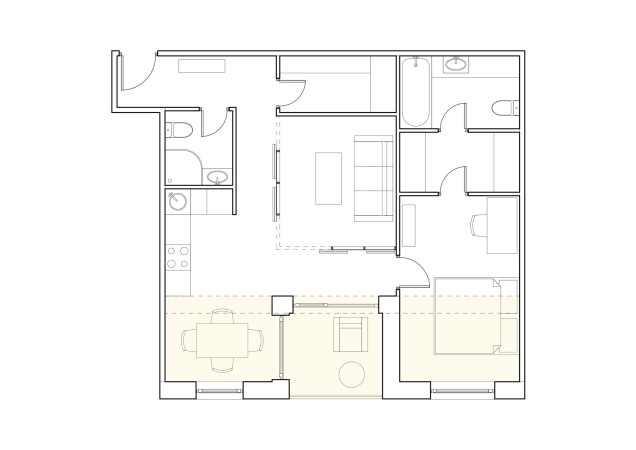
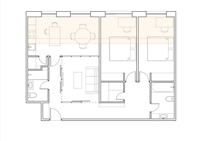
Относительно расширения объемов на 2 метра авторы оговариваются – это будет сделано только там, где возможно: не все фасады шагают вперед. Но там, где возможно, Игорь Соловьев и Наталия Николаева предлагают варианты улучшения планировок квартир, увеличения гостиных и спален. В верхних этажах – в надстройках – предусмотрены двухуровневые квартиры.
Поскольку проект предназначен для центра города – подчеркивают авторы – акцент сделан на общественном и велосипедном транспорте, плоскостные парковки отнесены на внешний контур и сокращены количественно, оставлен лишь внутренний проезд для техтранспорта, за счет всего этого выиграно больше места для озеленения внутренней территории.
Не исключено, что центральное расположение простимулировало архитекторов предложить скатный силуэт кровель, наделенный, как известно, признаками очарования традиционного города. Для оживления образа одинаковых в анамнезе зданий архитекторы используют разнообразное положение коньков кровли, вариативное решение фасадов части секций, так же как и выемки-лоджии, они начинаются с третьего этажа, располагаются асимметрично и соседствуют с высокими прорезями на 2-3 яруса.
I-Renovation. Устойчивая система реновации жилья в России
                © Игорь Соловьев, Наталия Николаева
        Хотя проект пока не реализуется, его только обсуждают с администрацией, архитекторы предложили и схему его функционирования с точки зрения экономики – на основе государственно-частного партнерства. Осталось только дождаться разрешения на использование современных технологичных видов дерева в среднеэтажном строительстве.
Подробнее о проекте здесь.
I-Renovation. Устойчивая система реновации жилья в России
                © Игорь Соловьев, Наталия Николаева
        
            
            
        
                                                                                
                                                                                
                            