Первый дом ОКО заказал Владислав Копица – основатель проекта Open Village, выставки загородной недвижимости, которая затем превращается в жилой поселок. Задачей было спроектировать дом, который потом можно тиражировать.
Азат Хасанов, Архитектурная группа аЗОН, Студия частных домов РЯДОМ
Готовые дома ОКО мы разработали после нескольких лет практики для людей, которым нужен хороший дизайн, но бюджет не позволяет приглашать архитекторов. Стандартные коттеджные поселки, которые во многом формируют рынок загородной недвижимости, на 80% состоят из таких же стандартных участков, схожим по своим параметрам: прямоугольник, узкой стороной выходящий на уличный проезд с тремя соседями. Зачем придумывать каждый раз новый проект? Мы провели несколько круглых столов с участием коллег, девелоперов и строителей и, уточнив данные, предложили проект, который хорошо обыгрывает контекст коттеджных поселков. Его концепция – стильный и практичный дизайн для полноценного отдыха за городом. «Обнимите близких, а не газонокосилку или швабру» – это подход в проектных решениях позволит семьям проводить больше времени друг с другом, а не врозь на стрижке газона или уборке помещений.
Образ дома во многом определил участок, граничащий одной стороной с лесом. Лес был принят за основную ценность, поэтому к нему дом развернут «передом» – самым большим по площади фасадом с двойным рядом окон и просторной террасой – дополнительной «комнатой», стенами в которой являются деревья, ну а крыша – небо голубое. Позже для террасы придумали перголу, которая продолжает фасадную тему дома и закрывает террасу от соседей, заменяя деревья в том случае, если на участке их нет.
Торцы дома практически глухие, а со стороны улицы хозяев встречает неброский фасад и распахнутое козырьком крыльцо, за входом просматривается главная цель путешествия – терраса в тени деревьев. Дом, таким образом, – своеобразный портал, с помощью которого совершается переход практически от мирского к сакральному: от обычной коттеджной улицы с парковкой, газоном и скважиной – к лесу со всеми его явными и скрытыми сокровищами.
Фасады обшиты наструганными досками, уложенными в диагональный рисунок, намекающий на переплетения ветвей. Козырьки, защищающие стекла от грязи, стали современной интерпретацией наличников.
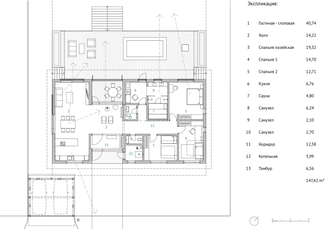
Предполагается, что в хорошую погоду терраса – главное место, помимо обычных кресел и столов здесь даже можно установить чашу бассейна. Сам же дом делится на две равные части: «тихую» с тремя спальнями и «шумную» – с кухней и просторной столовой-гостиной, дополненными антресолью – укромным пространством, ориентированным прежде всего на детей, у которых свои посиделки. Границей этих территорий служит каминный холл – визуальный коридор, который позволяет увидеть террасу и лес уже в тот момент, когда хозяин только подходит к дому.
ОКО стал первым «типовым готовым» домом студии РЯДОМ, позднее его доработали в нескольких размерах и в двух технологиях строительства – деревянном каркасе и газобетонном блоке. Площадь самого маленького ОКО внушительная – 94 м2, а стоит он чуть меньше 4 млн рублей. Рассмотреть дом во всех подробностях и узнать о нем из уст создателя можно здесь. В прошедшем 2020 году дом вошел в лонг-лист премии АрхиWOOD.
