Описание предоставлено архитекторами:
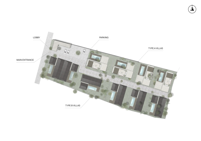
В нескольких минутах пешком от культового пляжа Бингин расположен Lyvin Bingin Villas – камерный комплекс из десяти двух- и трёхэтажных вилл с тремя спальнями и собственными бассейнами. Проект тонко встроен в природный рельеф южного Бали, где холмы и зрелые тиковые деревья формируют характер местности. Архитектура не конкурирует с природой, а взаимодействует с ней, подчеркивая естественный ритм Бингина, его тишину и серферскую энергию побережья.
Отель Lyvin Bingin Villas
Фотография © Alex Grabchilev, Ricki Adrian / предоставлена Lyvin Properties
Отель Lyvin Bingin Villas
Фотография © Alex Grabchilev, Ricki Adrian / предоставлена Lyvin Properties
В основе проектного замысла лежит принцип сохранения: многолетние тиковые деревья на участке не вырубили, а интегрировали в планировочную модель. Перепады высот от 3 до 5 метров задали выразительную геометрию застройки, а инженерные решения позволили сохранить большую часть зелёных насаждений, превратив ландшафт в живой элемент архитектуры.
Ключевую роль в образе комплекса играет местный известняк: он используется в облицовке фасадов и формировании ограждающих стен, благодаря чему архитектура словно вырастает из почвы, перекликаясь с прибрежными утёсами Бингина. Деревянные ламели на фасадах фильтруют тропический свет и создают мягкую динамику светотени, обеспечивая приватность без ощущения замкнутости.
Отель Lyvin Bingin Villas
Фотография © Alex Grabchilev, Ricki Adrian / предоставлена Lyvin Properties
Отель Lyvin Bingin Villas
Фотография © Alex Grabchilev, Ricki Adrian / предоставлена Lyvin Properties
Принцип уважения к природному контексту продолжается и в интерьерах. При входе гостей встречает скульптурная лестница – выразительный акцент, задающий тон всему пространству. Первый этаж объединяет кухню, столовую и гостиную в единое объёмное пространство: высокие потолки и большие раздвижные порталы усиливают ощущение открытости, а подвесные светильники на кожаных ремнях выступают как оригинальные декоративные элементы.
Фактура интерьеров выстроена вокруг тактильного опыта: стены повторяют слоистую структуру известняка и отсылают к геологии побережья. Контраст гладких и шероховатых поверхностей делает пространство живым и меняющимся в зависимости от освещения. Главная спальня имеет прямой выход к бассейну, благодаря чему граница между домом и садом стирается.
На втором уровне расположены две гостевые спальни с видом на кроны тиковых деревьев. В некоторых виллах предусмотрена приватная терраса на крыше с площадкой для йоги, встреч с друзьями или камерного барбекю. Это пространство работает как личное убежище среди зелени и дополнительно раскрывает вертикальный потенциал участка.
Вся мебель изготовлена на заказ из выращенного на Яве тика – материала, сочетающего долговечность и благородную фактуру. Террасы у бассейнов выполнены из местного железного дерева, связывающего виллы с природным окружением через текстуру и оттенки.
