Условия, в которых он появился, и все обходные маневры, которыми воспользовались авторы проекта для их преодоления ради того, чтобы умастить большой дом н небольшом участке, демонстрируют настоящую любовь к сложностям ради прекрасной панорамы, а может быть, отчасти даже ради самих сложностей.
«Дом в Ромашково». Вид на дом с северной стороны с террасы-лужайки
Фотография © Даниил Анненков / предоставлена Норвекс НЛК
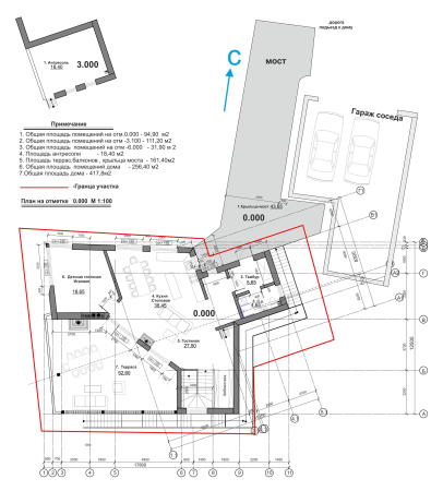
Склон – 40°, до реки – 70 метров, перепад высот на участке около 10 м, сам участок площадью меньше 3 соток. При этом площадь дома – 420 м2. Представим себе привычные 6 соток – как редко там можно построить большой дом в пейзажном окружении. Здесь, конечно, участок занят целиком, но живописное расположение помогло авторам, хотя и задало им немалое число головоломок. Дом – прямо-таки идеал выживания в непростых условиях.
«Дом в Ромашково». Вид с птичьего полета
Фотография © Даниил Анненков / предоставлена Норвекс НЛК
Ромашково расположено в 2 км от МКАД, к западу от Москвы, рядом с Немчиновкой и новым парком имени Малевича. Дом стоит недалеко от Никольской церкви, на склоне пруда, устроенного на реке Чаченке. К югу от дома начинается слаломная гора, здесь перепад высот удобен для спортсменов, а дом стоит на границе незастроенной местности. Виды очень хороши, окна и терраса смотрят на закаты. Хотя вдали можно различить силуэты типовой застройки недавних лет в Одинцово, до нее далеко.
«Дом в Ромашково».Вид на дом и панораму ландшафта с моста
Фотография © Даниил Анненков / предоставлена Норвекс НЛК
Итак, авторам пришлось решать много задач. Дом не просто выстроен на склоне, к нему даже было сложно организовать подход с верхней стороны – так появился мост шириной 4 метра, который начинается в северной части.
«Дом в Ромашково». Вид сверху
Фотография © Даниил Анненков / предоставлена Норвекс НЛК
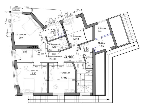
Собственно дом также непростой конфигурации, не вполне прямоугольной: где-то, в третьем уровне, но на нулевой отметке, появляется выемка террасы, и план теплого контура приобретает очертания, скорее, трифолия. Стены отклоняются под углом, внутренний коридор во 2 ярусе поворачивает: все гибко следует необходимости, подстраивается под рельеф, функцию и лучшие панорамы. Один из самых простых прямых путей – по пешеходному мосту попасть в гостиную и оттуда на простоную террасу – представляется главным: гость (или хозяин) приходит, в сущности, сразу на смотровую площадку, и в этом, кратчайшем, пути, в возможности зависнуть над простором, проявляется основная ценность и особенность всего проекта.
«Дом в Ромашково». Вид с верхней террасы
Фотография © Даниил Анненков / предоставлена Норвекс НЛК
Помимо внутреннего коридора во 2 этаже (-3000 м), ведущего к западному торцу, к видам над склоном, здесь имеется еще один, поперечный внутренний проход, на уровне -6000 м, ведущий на альтернативную северную террасу в нижем уровне – с нее, впрочем, можно спуститься по лестнице. Так возникает акцентируемая авторами в описании множественность обходов дома: как снаружи по лестницам, так и изнутри, по внутренним проходам и коридорам в разных уровнях.
Особенно хорошо дом смотрится, конечно, в профиль – со всеми лестницами и перепадами. Но надо заметить, что при сложной комплексной задаче: крутой склон, непростой подход, большая площадь дома, необходимость учитывать лучшие панорамы – вместе они составляют целый букет – дом получился простым по форме, даже несколько брутальным, благодаря черному и серебристому цвету сосновых досок и лаконичной, местами тяжеловатой форме, которая как будто всячески хочет подчеркнуть, что она преданно следует функции и ограничениям. Если поворачивает, создавая нишу, то нехотя отклоняясь от курса. Эстетски чередуя, однако, доски разных оттенков серебристости с решетками разной частоты и плотности. Венчая слегка неповоротливый, но крепко вцепившийся в склон объем основной жилой части легкой перголой над мостом-переходом.
