Описание предоставлено архитекторами
Храм расположен немного в стороне от жилых домов, в живописном месте на высоком берегу Волги и удачно вписан в окружающий ландшафт – так традиционно строили церкви наши предки. Образ разработан с учетом местных архитектурных особенностей и традиций. Высокий четверик, завершенный восьмискатной щипцовой кровлей и увенчанный массивной главой, напоминает о храме Рождества Иоанна Предтечи в Ширково и других подобных древних памятниках Тверской области, не сохранившихся до наших дней.
Храм стоит на массивном бетонном основании – подклете. Подклет имеет своеобразные арочные ниши и отделан натуральным камнем. Это поднимает деревянную часть высоко над землей, защищая древесину от гниения и влаги. Визуально это придает зданию монументальность.
Деревянный храм в Тверской области
© ziarch
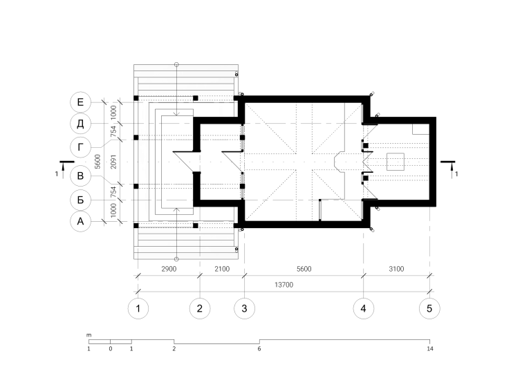
Размер четверика в осях – 5,6х5,6 м. К нему примыкают более низкие объемы (алтарная апсида и притвор), крыши которых повторяют угол наклона главной кровли, создавая гармоничную композицию. В нижней части скаты этих крыш выгибаются внутрь. Это отсылка к традиционной русской архитектурной форме, известной как «бочка», но выполненная в более строгих, современных пропорциях.
Деревянный храм в Тверской области
© ziarch
Деревянный храм в Тверской области
© ziarch
Несмотря на то, что храм имеет скромные размеры, он кажется большим. Этот эффект достигается не только за счет вытянутых пропорций постройки и высокого подклета, но и из-за большого количества окон. Они маленькие, квадратные и расположены на фасаде асимметрично. Это абсолютно современный архитектурный прием.
Деревянный храм в Тверской области
© ziarch
Стены храма сложены из бруса, утеплены и обшиты деревом. В отличие от традиционных бревенчатых срубов «в обло», здесь углы гладкие и чистые. Это придает зданию современный, минималистичный вид.
Щипцовая кровля на четверике храма имеет острый угол наклона. Это не только эстетический прием, делающий храм похожим ель, но и сугубо практичное решение для северного климата – на такой крыше не задерживается снег. Крыши храма и его купол покрыты традиционной русской деревянной черепицей – лемехом. Это чешуйчатое покрытие со временем красиво серебрится на солнце и органично смотрится в лесу.
Деревянный храм в Тверской области
© ziarch
Интерьер четверика открыт на всю высоту. По такому же принципу сделан и примыкающий к четверику алтарь. Такое решение роднит данный проект с еще одним шедевром деревянного зодчества тверской земли – Тихвинской церковью в Торжке.
В проекте удалось создать образ, который одновременно кажется как древним и исконным (благодаря материалам и общему силуэту), так и абсолютно современным (благодаря чистоте линий, отказу от лишнего декора и расположению окон). Это архитектура, которая «разговаривает» с природой на одном языке.
Деревянный храм в Тверской области
© ziarch
