Описание предоставлено архитектором
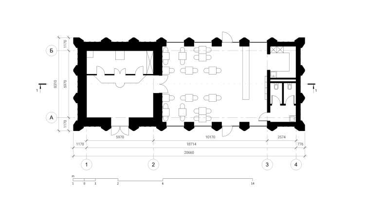
Храм для венчаний и крещений. Генеральный план
© ziarch
Типология подобной постройки не нова, известны исторические аналоги. Прежде всего, следует упомянуть отдельно стоящие трапезные со встроенными алтарями в селе Саунино и селе Поле Архангельской области, которые, к сожалению, не сохранились. Это были сугубо светские сооружения, отражающие «оцерковление» их интерьера путем устройства в помещении для пиров и сходов встроенного алтаря. Как аналог следует упомянуть и церковь преподобного Сергия с Трапезной палатой в Свято-Троицкой Сергиевой Лавре.
На подобном подходе основана и идея данного проекта: в здание со светской функцией добавить церковный элемент. И сделать это так, чтобы подобное совмещение функций ясно читалось на фасадах сооружения.
Храм для венчаний и крещений. Западный фасад
© ziarch
Храм для венчаний и крещений. Северо-западный фасад
© ziarch
Здание кафе, напоминающее старые торговые ряды, служит «футляром» для тела храма. Отделка также подчеркивает эту разницу: лаконичные белокаменные стены трапезной контрастируют со сложной кирпичной кладкой фасадов храма. Следует упомянуть, что выбор отделочных материалов в проекте не случаен – фасады существующего старинного храма выполнены в этих же материалах (кладка стен из красного кирпича и белокаменный декор).
Храм для венчаний и крещений
© ziarch
Храм для венчаний и крещений
© ziarch
Храм для венчаний и крещений
© ziarch
Интерьер трапезной выполнен в духе знаменитой уже кофейни «Антипа», что находится во дворе храма Антипы Пергамского на Колымажном дворе в Москве. В данном проекте удалось создать сакральное сооружение, рассчитанное на формирование постоянной прихрамовой социальной активности в течении года. Постройка хорошо заметна с улицы и легко доступна для людей, что повышает комфортность среды и желание приходить к храму, и тем самым оказываясь в сфере его притяжения.
Храм для венчаний и крещений. Интерьер кафе при храме
© ziarch
Проект предусмотривает несколько режимов функционирования помещений, в которые заложены возможности для универсального использования.
1. Режим приходского кафе или чайной не только даст возможность внутриприходского общения вне богослужения, но и будет привлекать гостей и местных жителей. Повышает миссионерскую значимость прихода. В теплое время года есть возможность сидеть за столиком на улице в тени деревьев.
2. Функционирование во время венчаний, крещений и других частных или заказных церковных треб – в данном режиме здание закрыто для общего посещения и функционирует только для ограниченного круга приглашенных людей. Во время таинства крещения или венчания, при большом скоплении гостей, также может использоваться помещение кафе. После совершения таинства для гостей может быть организована трапеза.
3. Функционирование во время праздников – в данном случае помещение кафе может оставаться как общедоступным, так и работать только для внутриприходской трапезы. Также помещение кафе может быть использовано, например, для раздачи святой воды на Крещение или проведения различных выставок.
Храм для венчаний и крещений. Юго-западный фасад
© ziarch
Храм для венчаний и крещений
© ziarch
Храм для венчаний и крещений
© ziarch
