RSS
Деревянный храм в Тверской области
© ziarch

Деревянный храм в Тверской области

информация:

  • статус
    проект
  • даты
    2024
  • region=Тверская область area=Конаковский район address= country_t=Россия city_t=
    место
    Тверская область Конаковский район
  • функция
    Культовый / Церковь
  • теги
    send.project
  • общая площадь
    50 м2
  • высота
    15,72
  • этажность
    1
  • строительный объем
    607,12 м3
Иван Земляков
Россия

авторский коллектив

Руководитель, архитектор - Иван  Земляков 


другие названия проекта
Проект разработан по инициативе священника, который служит в храме в соседнем селе.
Деревянный храм в Тверской области
© ziarch

Архи.ру об этом объекте:

08.04.2026

Еловый храм

Бюро Ивана Землякова ziarch для живописного участка на берегу Волги недалеко от Твери предложило храм, которые наследует традициям местного деревянного зодчества, но и развивает их. Четверик поднят на бетонный подклет, вытянутая восьмискатная щипцовая кровля покрыта лемехом, а украшением фасада служат маленькие оконца. Сочетание материалов, форм и приемов роднит храм с окружающим лесным пейзажем.

Описание предоставлено архитекторами Храм расположен немного в стороне от жилых домов, в живописном месте на высоком берегу Волги и удачно вписан в окружающий ландшафт – так традиционно строили церкви наши предки. Образ разработан с учетом местных а...   читать дальше
Деревянный храм в Тверской области
© ziarch

описание:

Щипцовая кровля на четверике храма имеет острый угол наклона. Это не только эстетический прием, делающий храм похожим ель, но и сугубо практичное решение для северного климата- на такой крыше не задерживается снег.

К четверику примыкают более низкие объемы (алтарная апсида и притвор), крыши которых повторяют угол наклона главной кровли, создавая гармоничную композицию. В нижней части скаты этих крыш выгибаются внутрь. Это отсылка к традиционной русской архитектурной форме, известной как «бочка», но выполненная в более строгих, современных пропорциях.

Храм стоит на массивном бетонном основании- подклете. Подклет имеет своеобразные арочные ниши и отделан натуральным камнем. Это поднимает деревянную часть высоко над землей, защищая древесину от гниения и влаги. Визуально это придает зданию монументальность.

Стены храма сложены из бруса, утеплены и обшиты деревом. В отличие от традиционных бревенчатых срубов «в обло», здесь углы гладкие и чистые. Это придает зданию современный, минималистичный вид.

Крыши храма и его купол покрыты традиционной русской деревянной черепицей- лемехом. Это чешуйчатое покрытие со временем красиво серебрится на солнце и очень органично смотрится в лесу.

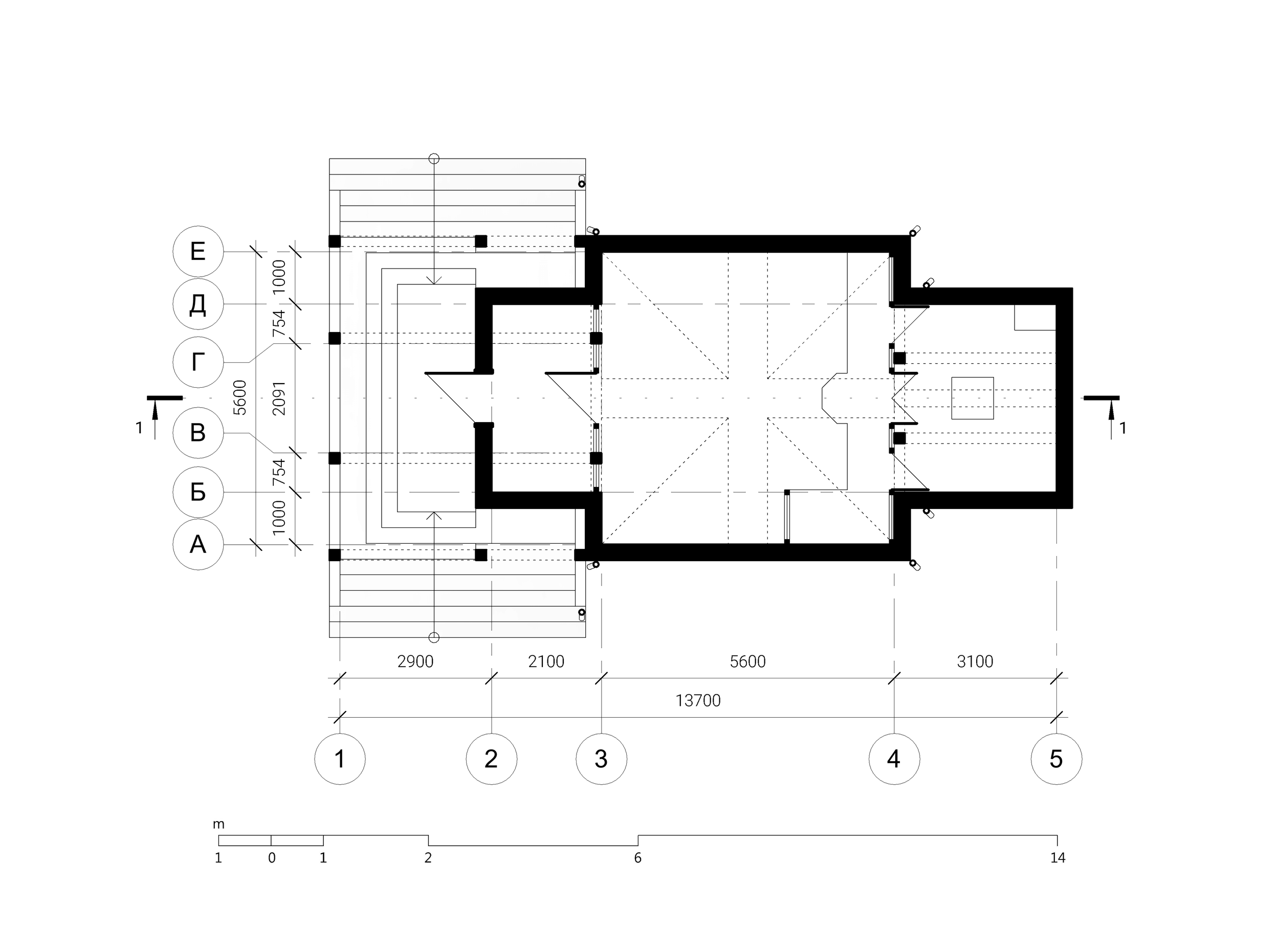
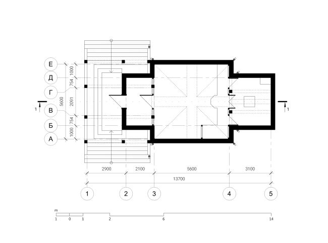
Несмотря на то, что храм имеет очень скромные размеры (размер четверика в осях 5,6х5,6 м), он кажется большим. Этот эффект достигается не только за счет вытянутых пропорций постройки и высокого подклета, но и из-за большого количества окон. Они маленькие, квадратные и расположены на фасаде асимметрично. Это абсолютно современный архитектурный прием.

Интерьер четверика открыт на всю высоту. По такому же принципу сделан и примыкающий к четверику алтарь.  Такое решение роднит данный проект с еще одним шедевром деревянного зодчества тверской земли- Тихвинской церковью в Торжке.
Проект расположен немного в стороне от жилых домов, в живописном месте на высоком берегу реки Волги и удачно вписан в окружающий ландшафт, что делает расположение храма на местности похожим на то, где традиционно строили церкви наши предки.
В проекте удалось создать образ, который одновременно кажется как древним и исконным (благодаря материалам и общему силуэту), так и абсолютно современным (благодаря чистоте линий, отказу от лишнего декора и расположению окон). Это архитектура, которая «разговаривает» с природой на одном языке.
Деревянный храм в Тверской области
© ziarch
Деревянный храм в Тверской области
© ziarch
Деревянный храм в Тверской области
© ziarch

Архитекторы – партнеры Архи.ру:

  • Сергей Никешкин
  • Борис Воскобойников
  • Анастасия Абашева
  • Константин Ходнев
  • Евгений Новосадюк
  • Полина Воеводина
  • Дмитрий Остроумов
  • Василий Крапивин
  • Даниил Лоренц
  • Григорий Мустафин
  • Валерий Каняшин
  • Зураб Басария
  • Игорь Членов
  • Наталия Шилова
  • Юлия Тряскина
  • Андрей Гнездилов
  • Григориос Гавалидис
  • Владимир Плоткин
  • Александр Скокан
  • Степан Липгарт
  • Дмитрий Сухов
  • Александр Самарин
  • Александра Кузьмина
  • Сергей Переслегин
  • Юлий Борисов
  • Игорь Шварцман
  • Сергей Труханов
  • Никита Явейн
  • Энди Сноу
  • Антон Надточий
  • Владислав Андреев
  • Александр Асадов
  • Сергей Скуратов
  • Дмитрий Ликин
  • Андрей Асадов
  • Михаил Канунников
  • Андрей Михайлов
  • Юлиана Княжевская
  • Наталья Сидорова
  • Павел Андреев
  • Екатерина Кузнецова
  • Антон Яр-Скрябин
  • Ростислав Цайзер
  • Андрей Романов
  • Олег Шапиро
  • Евгений Подгорнов
  • Мария Ахременкова
  • Сергей Чобан
  • Евгений Зеленов
  • Татьяна Зульхарнеева
  • Станислав Белых
  • Ерлан Бекмухамедов
  • Раис Баишев
  • Олег Мединский
  • Вера Бутко
  • Елена Пучкова
  • Николай Кикава
  • Всеволод Медведев
  • Георгий Трофимов
  • Иван Кожин
  • Марина Егорова
  • Дмитрий Буш
  • Михаил Давыдов
  • Виталий Лутц
  • Сергей Кузнецов
  • Николай Переслегин
  • Александр Котенков
  • Илья Машков
  • Алексей Орлов
  • Юлия Солдатенкова
  • Тимур Абдуллаев
  • Екатерина Абдуллаева
  • Маргарита Авдышева
  • Левон Айрапетов
  • Александр Аношкин
  • Алексей Афоничкин
  • Владислав Бек-Булатов
  • Антон Белов
  • Татьяна Бузулукова
  • Петр Васильев
  • Данило Вукосавлевич
  • Алина Георгиевская
  • Павел Гордеев
  • Илья Гринберг
  • Никита Демидов
  • Никита Дергунов
  • Наталья Жилкина
  • Алексей Зародов
  • Екатерина Зырина
  • Алексей Ильин
  • Дарья Ильина
  • Олег Карлсон
  • Алексей Кибкало
  • Денис Кувшинников
  • Анна Куликова
  • Алексей Курков
  • Данил Куров
  • Мария Кутай
  • Евгений Кутай
  • Иван Кычкин
  • Антон Ладыгин
  • Дмитрий Лапин
  • Илья Левянт
  • Катерина Левянт
  • Борис Левянт
  • Валерий Лукомский
  • Антон Лукомский
  • Екатерина Ляпунова
  • Иса Магомедов
  • Сергей Марков
  • Елена Мерцалова
  • Николай Миловидов
  • Станислав Михаловский
  • Сергей Мичурин
  • Олеся Могилевская
  • Мария Николаева
  • Дмитрий Овчаров
  • Сергей Пергаев
  • Виктор Перов
  • Алексей Полищук
  • Роман Пономарёв
  • Валерия Преображенская
  • Виктория Раубо
  • Василий Рыбаков
  • Николай Рыбаков
  • Мария Салех
  • Александр Стариков
  • Илья Уткин
  • Елисей Чакан
  • Бориша Чорович
  • Олег Шурыгин
  • Дмитрий Шурыгин

Проект из каталога (случайный выбор)

Постройки и проекты (новые записи):

  • Архитектурная концепция кластера Ломоносов-2
  • Клубный дом в 1-м Казачьем переулке
  • Частный дом в Ленинградской области
  • Гостиничный комплекс Cosmos Selection Derbent 5
  • Офис компании АльфаСтрахование
  • MIDITI
  • Офис компании Kept
  • Дом Спорта
  • ЖК Camelia

Новости российской архитектуры:

Высший уровень
24.04.2026

Высший уровень

Борис Воскобойников, Мария Ахременкова
Белые террасы в зеленом предгорье
24.04.2026

Белые террасы в зеленом предгорье

Маргарита Авдышева