Описание предоставлено архитекторами
Реконструкция здания ГБУК РА ГААНТА Нальмэс проводилась в рамках регионального проекта «Культурная среда» национального проекта «Культура». Первоначальный проект был разработан и осмечен в 2016 году. Далее от него отказались, поскольку он не имел никакой связи с историей здания и историей места. Бюро PXN Architects приступило к разработке нового проекта в январе 2023 году. Проектирование и реализация практически шли синхронно, так как сроки сдачи бюджетного объекта были четко фиксированы.
Реконструкция здания ГБУК РА ГААНТА Нальмэс
Фотография © Ринат Максутов предоставлена PXN Architects
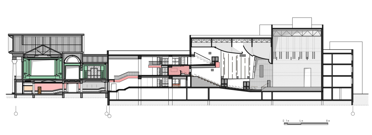
Трёхэтажное здание ГБУК РА ГААНТА «Нальмэс» расположено в центре Майкопа и состоит из двух блоков. Первый, камерный музыкальный театр, был построен в 1953 году как Дом культуры «Дружба» в стиле сталинского неоклассицизма. В 1987 году к нему пристроили второй блок – концертный зал «Нальмэс» на тысячу мест, выполненный в стиле советского конструктивизма. Зал получил своё название в честь Государственного ансамбля народного танца Республики Адыгея «Нальмэс» (в переводе с адыгского – «алмаз»).
Реконструкция затронула оба блока здания. Основными задачами стали замена устаревших конструкций кровли и кровельных материалов, обновление окон, витражей и дверей, сохранение и восстановление исторических элементов фасада, добавление декоративных деталей и рустовки по первому этажу, а также возвращение фонового исторического цвета и создание ночной архитектурной подсветки.
В интерьерах приоритетом было бережное сохранение и реставрация исторических деталей. Новые акценты вводились деликатно – через национальные мотивы и единый визуальный код, объединяющий два разновременных и разностилистических блока. Связующим элементом стал фирменный цвет ансамбля «Нальмэс» – красно-алый.
В классический образ исторической части органично интегрированы новые материалы: облицовка натуральным камнем (гранитом трёх пород и мрамором), колонны из мраморной крошки, литые чугунные балясины, двери из массива дуба и паркет из местных пород древесины. В оформление добавлены этнические мотивы: адыгский орнамент в каменной розетке на полу, а в холлах нового блока – композиции с изображением адыгского родового дуба, сакрального символа, связанного с культом священных рощ.
Концертный зал «Нальмэс» был реконструирован с изменением конфигурации пола и зрительских мест, что позволило повысить комфорт и улучшить видимость сцены. Новое цветовое решение с применением чёрного потолка и оформления сцены стирает границы помещения.
