RSS
Реконструкция здания ГБУК РА ГААНТА Нальмэс
Фотография © Ринат Максутов предоставлена PXN Architects

Реконструкция здания ГБУК РА ГААНТА Нальмэс

информация:

  • статус
    реализовано
  • даты
    20232024 / 20232025
  • region= area= address=ул. Краснооктябрьская, 61 country_t=Россия city_t=Майкоп
    место
    Майкоп ул. Краснооктябрьская, 61
  • координаты
    44.618323, 40.106255
  • функция
    Культурный / Театр
  • площадь участка
    0,97 га
  • площадь застройки
    4755 м2 м2
  • этажность
    3
  • Общая площадь 1 этажа, 1 блока: 1200 м2.  Общая площадь 1 этажа, 2 блока: 3300 м2.
    Высота 1 блока: 12,5 м. Высота 2 блока: 17,5 м.
    Строительный объем 1 блока: 17250 м3. Строительный объем 2 блока: 59063 м3
Анна Ирхина
Россия

авторский коллектив

Главный архитектор: Анна Ирхина 
Архитекторы: Екатерина Витченко, Фатима Карданова 

партнеры, заказчики, смежники

Заказчик: Государственное бюджетное учреждение культуры

другие названия проекта
Реконструкция здания ГБУК РА ГААНТА Нальмэс: концертного зала Нальмэс и камерного музыкального театра Адыгеи имени А.А. Ханаху

награды:

    НОПРИЗ. X Международный профессиональный конкурс на лучший проект 2023: Диплом II степени в номинации Лучший проект реставрации (реконструкции) объекта культурного наследия (реализованный)
Реконструкция здания ГБУК РА ГААНТА Нальмэс
Фотография © Ринат Максутов предоставлена PXN Architects

Архи.ру об этом объекте:

15.01.2026

Алмазная огранка

Реконструкция концертного зала Нальмэс и камерного музыкального театра Адыгеи имени А.А. Ханаху, выполненная по проекту PXN Architects, деликатно объединила три разных культурных кода – сталинского дома культуры, модернистской пристройки 1980-х и этнические мотивы, сделав связующим элементом фирменный цвет ансамбля – красно-алый.

Описание предоставлено архитекторами Реконструкция здания ГБУК РА ГААНТА Нальмэс проводилась в рамках регионального проекта Культурная среда национального проекта Культура . Первоначальный проект был разработан и осмечен в 2016 году. Далее от нег...   читать дальше
Реконструкция здания ГБУК РА ГААНТА Нальмэс
Фотография © Ринат Максутов предоставлена PXN Architects

история проекта:

Реконструкция проводилась в рамках регионального проекта «Культурная среда» национального проекта «Культура».

Первоначальный проект реконструкции здания «Нальмэс» был разработан и осмечен в 2016 году. Далее от проекта отказались, по-скольку он не имел никакой связи с историей здания и историей места. Бюро PXN Architects приступило к разработке нового проекта в январе 2023 году. Проектирование и реализация практически шли синхронно, так как сроки сдачи бюджетного объекта были четко фиксированы.

описание:

Трёхэтажное здание ГБУК РА ГААНТА «Нальмэс» расположено в центре Майкопа и состоит из двух блоков. Первый, камерный музыкальный театр, был построен в 1953 году как Дом культуры «Дружба» в стиле сталинского неоклассицизма. В 1987 году к нему пристроили второй блок – концертный зал «Нальмэс» на тысячу мест, выполненный в стиле советского конструктивизма. Зал получил своё название в честь Государственного ансамбля народного танца Республики Адыгея «Нальмэс» (в переводе с адыгского – «алмаз»).

Реконструкция затронула оба блока здания. Основными задачами стали замена устаревших конструкций кровли и кровельных материалов, обновление окон, витражей и дверей, сохранение и восстановление исторических элементов фасада, добавление декоративных деталей и рустовки по первому этажу, а также возвращение фонового исторического цвета и создание ночной архитектурной подсветки.

В интерьерах приоритетом было бережное сохранение и реставрация исторических деталей. Новые акценты вводились деликатно – через национальные мотивы и единый визуальный код, объединяющий два разновременных и разностилистических блока. Связующим элементом стал фирменный цвет ансамбля «Нальмэс» – красно-алый.

В классический образ исторической части органично интегрированы новые материалы: облицовка натуральным камнем (гранитом трёх пород и мрамором), колонны из мраморной крошки, литые чугунные балясины, двери из массива дуба и паркет из местных пород древесины. В оформление добавлены этнические мотивы: адыгский орнамент в каменной розетке на полу, а в холлах нового блока – композиции с изображением адыгского родового дуба, сакрального символа, связанного с культом священных рощ.

Концертный зал «Нальмэс» был реконструирован с изменением конфигурации пола и зрительских мест, что позволило повысить комфорт и улучшить видимость сцены. Новое цветовое решение с применением чёрного потолка и оформления сцены стирает границы помещения, создавая эффект безграничного пространства и ощущения слияния с окружающим миром.
Реконструкция здания ГБУК РА ГААНТА Нальмэс
Фотография © Ринат Максутов предоставлена PXN Architects
Реконструкция здания ГБУК РА ГААНТА Нальмэс
Фотография © Ринат Максутов предоставлена PXN Architects
Реконструкция здания ГБУК РА ГААНТА Нальмэс. VIP-зал
Фотография © Ринат Максутов предоставлена PXN Architects
Реконструкция здания ГБУК РА ГААНТА Нальмэс
Фотография © Ринат Максутов предоставлена PXN Architects
Реконструкция здания ГБУК РА ГААНТА Нальмэс
Фотография © Ринат Максутов предоставлена PXN Architects
Реконструкция здания ГБУК РА ГААНТА Нальмэс
Фотография © Ринат Максутов предоставлена PXN Architects
Реконструкция здания ГБУК РА ГААНТА Нальмэс. Буфет 1 этажа
Фотография © Ринат Максутов предоставлена PXN Architects
Реконструкция здания ГБУК РА ГААНТА Нальмэс
Фотография © Ринат Максутов предоставлена PXN Architects
Реконструкция здания ГБУК РА ГААНТА Нальмэс. Музыкальный танцевальный зал
Фотография © Ринат Максутов предоставлена PXN Architects
Реконструкция здания ГБУК РА ГААНТА Нальмэс
Фотография © Ринат Максутов предоставлена PXN Architects
Реконструкция здания ГБУК РА ГААНТА Нальмэс
Фотография © Ринат Максутов предоставлена PXN Architects
Реконструкция здания ГБУК РА ГААНТА Нальмэс
Фотография © Ринат Максутов предоставлена PXN Architects
Реконструкция здания ГБУК РА ГААНТА Нальмэс
Фотография © Ринат Максутов предоставлена PXN Architects
Реконструкция здания ГБУК РА ГААНТА Нальмэс
Фотография © Ринат Максутов предоставлена PXN Architects
Реконструкция здания ГБУК РА ГААНТА Нальмэс
Фотография © Ринат Максутов предоставлена PXN Architects
Реконструкция здания ГБУК РА ГААНТА Нальмэс
Фотография © Ринат Максутов предоставлена PXN Architects
Реконструкция здания ГБУК РА ГААНТА Нальмэс
Фотография © Ринат Максутов предоставлена PXN Architects
Реконструкция здания ГБУК РА ГААНТА Нальмэс. Холл
Фотография © Ринат Максутов предоставлена PXN Architects
Реконструкция здания ГБУК РА ГААНТА Нальмэс
Фотография © Ринат Максутов предоставлена PXN Architects
Реконструкция здания ГБУК РА ГААНТА Нальмэс
Фотография © Ринат Максутов предоставлена PXN Architects
Реконструкция здания ГБУК РА ГААНТА Нальмэс
Фотография © Ринат Максутов предоставлена PXN Architects
Реконструкция здания ГБУК РА ГААНТА Нальмэс. Вид из зала
© PXN Architects
Реконструкция здания ГБУК РА ГААНТА Нальмэс. Правительственная ложа
© PXN Architects
Реконструкция здания ГБУК РА ГААНТА Нальмэс. Коридор, соединяющий лестницы и ведущий в новую часть здания Нальмэс
© PXN Architects
Реконструкция здания ГБУК РА ГААНТА Нальмэс. Буфет на 37 посадочных мест
© PXN Architects
Реконструкция здания ГБУК РА ГААНТА Нальмэс
© PXN Architects
Реконструкция здания ГБУК РА ГААНТА Нальмэс. Вид со 2 этажа в сторону двусветного холла и выходов из театра
© PXN Architects
Реконструкция здания ГБУК РА ГААНТА Нальмэс. Вид от сцены
© PXN Architects
Реконструкция здания ГБУК РА ГААНТА Нальмэс. Вид на балкон
© PXN Architects
Реконструкция здания ГБУК РА ГААНТА Нальмэс. Коридор перед залом театра
© PXN Architects
Реконструкция здания ГБУК РА ГААНТА Нальмэс
© PXN Architects
Реконструкция здания ГБУК РА ГААНТА Нальмэс. Коридор между КЗ Нальмэс и буфетом
© PXN Architects
Реконструкция здания ГБУК РА ГААНТА Нальмэс. Лестничные марши между 2 и 3 этажами
© PXN Architects
Реконструкция здания ГБУК РА ГААНТА Нальмэс. Вид при выходе из последнего холла 1 этажа театра
© PXN Architects
Реконструкция здания ГБУК РА ГААНТА Нальмэс. Зал на 171 посадочное место с зоной для оркестра. Вид из зала
© PXN Architects
Реконструкция здания ГБУК РА ГААНТА Нальмэс. 1 холл при входе
© PXN Architects
Реконструкция здания ГБУК РА ГААНТА Нальмэс. Из холла 2 этажа также возможен проход в новую часть здания Нальмэс
© PXN Architects
Реконструкция здания ГБУК РА ГААНТА Нальмэс. Ситуационный план. Располагается в центре города, рядом с ж/д и авто вокзалами
© PXN Architects
Реконструкция здания ГБУК РА ГААНТА Нальмэс. Разрез. Совмещенный разрез 2 частей
© PXN Architects
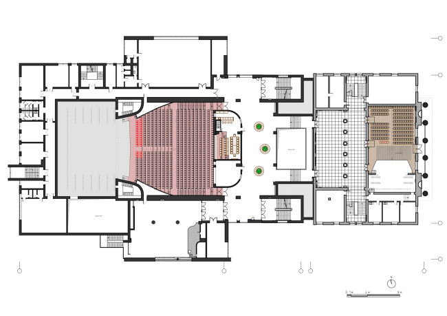
Реконструкция здания ГБУК РА ГААНТА Нальмэс. План 1 этажа. Совмещенный план 2 частей (Концертный зал «Нальмэс» и камерный музыкальный театр Республики Адыгея имени А.А. Ханаху)
© PXN Architects
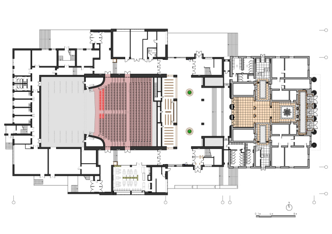
Реконструкция здания ГБУК РА ГААНТА Нальмэс. План 2 этажа. Совмещенный план 2 частей
© PXN Architects
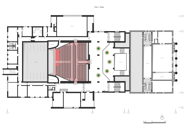
Реконструкция здания ГБУК РА ГААНТА Нальмэс. План 3 этажа. Совмещенный план 2 частей
© PXN Architects

Архитекторы – партнеры Архи.ру:

  • Олег Мединский
  • Елена Пучкова
  • Николай Переслегин
  • Александр Самарин
  • Юлия Солдатенкова
  • Екатерина Кузнецова
  • Марина Егорова
  • Дмитрий Ликин
  • Даниил Лоренц
  • Ростислав Цайзер
  • Александр Котенков
  • Станислав Белых
  • Полина Воеводина
  • Наталья Сидорова
  • Евгений Подгорнов
  • Евгений Новосадюк
  • Игорь Членов
  • Наталия Шилова
  • Владислав Андреев
  • Георгий Трофимов
  • Григорий Мустафин
  • Ерлан Бекмухамедов
  • Зураб Басария
  • Владимир Плоткин
  • Иван Кожин
  • Андрей Гнездилов
  • Игорь Шварцман
  • Сергей Кузнецов
  • Виталий Лутц
  • Александра Кузьмина
  • Михаил Канунников
  • Александр Скокан
  • Сергей Скуратов
  • Юлий Борисов
  • Александр Асадов
  • Дмитрий Сухов
  • Василий Крапивин
  • Григориос Гавалидис
  • Олег Шапиро
  • Алексей Гинзбург
  • Алексей Орлов
  • Никита Явейн
  • Сергей Переслегин
  • Сергей Никешкин
  • Татьяна Зульхарнеева
  • Вера Бутко
  • Андрей Михайлов
  • Юлия Тряскина
  • Дмитрий Буш
  • Андрей Чуйков
  • Раис Баишев
  • Юлиана Княжевская
  • Роман Леонидов
  • Николай Кикава
  • Антон Яр-Скрябин
  • Константин Ходнев
  • Андрей Романов
  • Анна Иванова
  • Антон Надточий
  • Сергей Труханов
  • Дмитрий Остроумов
  • Андрей Асадов
  • Всеволод Медведев
  • Павел Андреев
  • Валерий Каняшин
  • Илья Машков
  • Михаил Давыдов
  • Энди Сноу
  • Евгений Зеленов
  • Анастасия Абашева
  • Степан Липгарт
  • Сергей Чобан
  • Тимур Абдуллаев
  • Екатерина Абдуллаева
  • Маргарита Авдышева
  • Левон Айрапетов
  • Александр Аношкин
  • Алексей Афоничкин
  • Владислав Бек-Булатов
  • Антон Белов
  • Татьяна Бузулукова
  • Петр Васильев
  • Алина Георгиевская
  • Павел Гордеев
  • Илья Гринберг
  • Никита Демидов
  • Никита Дергунов
  • Наталья Жилкина
  • Алексей Зародов
  • Екатерина Зырина
  • Алексей Ильин
  • Дарья Ильина
  • Олег Карлсон
  • Алексей Кибкало
  • Денис Кувшинников
  • Анна Куликова
  • Алексей Курков
  • Алексей Курков
  • Данил Куров
  • Евгений Кутай
  • Мария Кутай
  • Антон Ладыгин
  • Антон Ладыгин
  • Дмитрий Лапин
  • Борис Левянт
  • Катерина Левянт
  • Илья Левянт
  • Антон Лукомский
  • Валерий Лукомский
  • Екатерина Ляпунова
  • Сергей Марков
  • Николай Миловидов
  • Станислав Михаловский
  • Олеся Могилевская
  • Мария Николаева
  • Виктор Перов
  • Алексей Полищук
  • Роман Пономарёв
  • Валерия Преображенская
  • Виктория Раубо
  • Василий Рыбаков
  • Мария Салех
  • Александр Стариков
  • Илья Уткин
  • Дмитрий Шурыгин
  • Олег Шурыгин

Проект из каталога (случайный выбор)

Постройки и проекты (новые записи):

  • Проект общественно-делового комплекса у станции метро «Ботанический Сад» / Genpro
  • Проект общественно-делового комплекса у станции метро «Ботанический Сад» / UNK
  • БЦ в Раменках
  • Бизнес-центр (на месте ТЦ «Старт»)
  • DELO HOUSE 3.2 с флигелем
  • Ледовый дворец Navka Arena
  • Благоустройство территории ЖК Holms Residence
  • Игровое пространство у театра им. Г.К. Камала
  • Вторая ось

Новости российской архитектуры:

Потенциальные примечательности. Обзор проектов 16–22 февраля 2026
22.02.2026

Потенциальные примечательности. Обзор проектов 16–22 февраля 2026

Евгений Зеленов, Юлий Борисов, Амир Идиатулин, Николай Гордюшин, Александр Аношкин, Мария Салех, Никита Дергунов
Визуальная чистота
20.02.2026

Визуальная чистота

Александр Жидков, Михаил Гуманков
Кирпичная вуаль
20.02.2026

Кирпичная вуаль

Айк Навасардян, Рубен Аракелян