Торжество во дворце

Проект дворца бракосочетания во Всеволожске, подготовленный мастерской «Головин & Шретер», стал победителем ежегодного конкурса «Концепций пространственного развития муниципальных образований Ленинградской области». Архитекторы предложили комплекс в духе дворцово-парковых ансамблей пригородов Санкт-Петербурга: с симметричной композицией и регулярным садом. А также позаботились о том, чтобы на памятные фотографии не попадали припаркованные автомобили.

mainImg
Архитектор:
Александр Шретер
Антон Головин
Мастерская:
Архитектурная мастерская Головин & Шретер
Проект:
Дворец бракосочетания во Всеволожске
Россия, Всеволожск

Авторский коллектив:
Антон Головин, Евгений Лазарев, Евангелина Кузовлева

2025

Заказчик: Комитет градостроительной политики Ленинградской области 

Описание предоставлено архитекторами

Торжественный комплекс задуман как традиционный для пригородов Санкт-Петербурга дворцово-парковый ансамбль с регулярной основой композиции и пейзажным парком для прогулок.

Дворец бракосочетания во Всеволожске
© Архитектурная мастерская Головин & Шретер / предоставлено Комитетом градостроительной политики Ленинградской области
Дворец бракосочетания во Всеволожске. Вид бокового фасада
© Архитектурная мастерская Головин & Шретер / предоставлено Комитетом градостроительной политики Ленинградской области

Основной въезд на территорию запланирован с транспортной магистрали Дорога жизни, второстепенный – со стороны жилого квартала. Подъезд к парадному входу освобожден от парковок. Парковки для гостей и служащих, в том числе для автобусов, расположены вдоль проезда к каждодневному входу в здание. Таким образом, автомобили не влияют на восприятие архитектуры комплекса и его фотопанорамы.
Дворец бракосочетания во Всеволожске. Генеральный план
© Архитектурная мастерская Головин & Шретер / предоставлено Комитетом градостроительной политики Ленинградской области
Дворец бракосочетания во Всеволожске. Аксонометрия
© Архитектурная мастерская Головин & Шретер / предоставлено Комитетом градостроительной политики Ленинградской области
Дворец бракосочетания во Всеволожске. Фотофиксация существующего состояния территории
© Архитектурная мастерская Головин & Шретер / предоставлено Комитетом градостроительной политики Ленинградской области

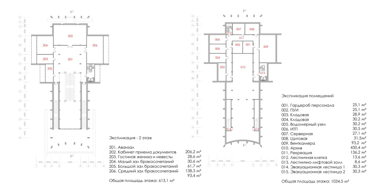
Композиция Дворца симметрична. Белоснежный периптер фланкируют с двух сторон стройные колоннады, распахивающие «объятия». Парадная лестница, освещенная позолоченными фонарями, встречает будущих молодоженов и ведет на второй этаж, где расположены залы для церемоний бракосочетания. На первом этаже спроектированы вспомогательные и административные помещения. В подвальном – архив и технические помещения.
Дворец бракосочетания во Всеволожске. Вид с аллеи молодоженов
© Архитектурная мастерская Головин & Шретер / предоставлено Комитетом градостроительной политики Ленинградской области
  • zooming
    Дворец бракосочетания во Всеволожске. Интерьер вестибюля
    © Архитектурная мастерская Головин & Шретер / предоставлено Комитетом градостроительной политики Ленинградской области
  • zooming
    Дворец бракосочетания во Всеволожске. Интерьер вестибюля
    © Архитектурная мастерская Головин & Шретер / предоставлено Комитетом градостроительной политики Ленинградской области
Дворец бракосочетания во Всеволожске. План 1 этажа
© Архитектурная мастерская Головин & Шретер / предоставлено Комитетом градостроительной политики Ленинградской области
Дворец бракосочетания во Всеволожске. План 2 этажа
© Архитектурная мастерская Головин & Шретер / предоставлено Комитетом градостроительной политики Ленинградской области

От парадного входа молодожены могут пройти по эспланаде к пруду. Архитектуру эспланады дополняют фонари и кашпо с вечнозелеными деревьями. Гости могут запечатлеть себя на фоне дворца и фонтана, на фоне скульптурной композиции «Обручальные кольца». Завершает классическую композицию эспланады спуск к воде. «Остров любви» – основная парковая точка притяжения и фотозона. Попасть на остров можно по двум изящным мостам. На острове расположена беседка-ротонда – символичное место для новобрачных. Для проведения торжеств в пейзажной части парка спроектирован павильон с банкетным залом. Панорамный витраж банкетного зала обращен в сторону портика дворца бракосочетания и ротонды.
Дворец бракосочетания во Всеволожске. Вечерний вид Дворца бракосочетания с аллеи молодоженов
© Архитектурная мастерская Головин & Шретер / предоставлено Комитетом градостроительной политики Ленинградской области
Дворец бракосочетания во Всеволожске. Вид с Острова любви на аллею молодоженов и Дворец бракосочетания
© Архитектурная мастерская Головин & Шретер / предоставлено Комитетом градостроительной политики Ленинградской области
Дворец бракосочетания во Всеволожске. Вид со стороны павильона на дворцовый ансамбль
© Архитектурная мастерская Головин & Шретер / предоставлено Комитетом градостроительной политики Ленинградской области
Дворец бракосочетания во Всеволожске. Вид из парка на Остров любви и павильон с банкетным залом
© Архитектурная мастерская Головин & Шретер / предоставлено Комитетом градостроительной политики Ленинградской области

Парадный фасад здания Дворца бракосочетания обращен на юго-запад. Вследствие этого он освещен солнечным светом на протяжении всего светового дня и является выразительным фоном для памятных снимков. Архитектура комплекса становится участником торжественных церемоний, блеск и дворцовая грация навсегда останутся в семейных альбомах.
Дворец бракосочетания во Всеволожске. Вид парадного портика
© Архитектурная мастерская Головин & Шретер / предоставлено Комитетом градостроительной политики Ленинградской области
Дворец бракосочетания во Всеволожске. Вид от колоннады
© Архитектурная мастерская Головин & Шретер / предоставлено Комитетом градостроительной политики Ленинградской области
Дворец бракосочетания во Всеволожске. Вид с парадного подъезда
© Архитектурная мастерская Головин & Шретер / предоставлено Комитетом градостроительной политики Ленинградской области
Дворец бракосочетания во Всеволожске. Вид на портик со входом для каждодневного посещения
© Архитектурная мастерская Головин & Шретер / предоставлено Комитетом градостроительной политики Ленинградской области
Дворец бракосочетания во Всеволожске. Вид на луг со стороны колоннады
© Архитектурная мастерская Головин & Шретер / предоставлено Комитетом градостроительной политики Ленинградской области
Дворец бракосочетания во Всеволожске. Вид со стороны колоннады на аллею молодоженов
© Архитектурная мастерская Головин & Шретер / предоставлено Комитетом градостроительной политики Ленинградской области
Архитектор:
Александр Шретер
Антон Головин
Мастерская:
Архитектурная мастерская Головин & Шретер
Проект:
Дворец бракосочетания во Всеволожске
Россия, Всеволожск

Авторский коллектив:
Антон Головин, Евгений Лазарев, Евангелина Кузовлева

2025

Заказчик: Комитет градостроительной политики Ленинградской области 

03 Сентября 2025

Похожие статьи
На воскресной электричке
Для поселка Ушково Курортного района Санкт-Петербурга архитектурная мастерская М119 подготовила проект гостиницы с отдельно стоящим физкультурно-оздоровительным центром. Ячейки номеров, деревянные рейки на фасадах, а также бетонные блоки, акцентирующие функциональные блоки, отсылают к наследию советских санаториев и детских лагерей.
Сплав мировых культур
Гостевой дом, построенный по проекту Osetskaya.Salov на окраине Переславля-Залесского, предлагает путешественнику насыщенное пространство, которое дополнит опыт пребывания в древнем городе. Внутри – пять номеров, отсылающих к славянской, африканской, индуистской, европейской и латиноамериканской культурам. Их расширяют общие пространства – терраса с коммунальным столом, эскуплуатируемая кровля с видом на город, укромный сад. Оболочка здания транслирует универсальное высказывание, вбирая в себя черты всех культур.
Идеалы модернизма
В Дубне благодаря инициативе руководства Объединенного института ядерных исследований (ОИЯИ) реконструировано модернистское здание. По проекту Orchestra Design в Доме международных совещаний открылся выставочный зал «Галерея ОИЯИ», чья деятельность будет проходить на стыке науки и искусства. И первой выставкой, иллюстрирующей этот принцип, стала экспозиция одного из самых известных художников современности, пионера российского кинетизма Франциско Инфантэ.
Консервация как комментарий
Для руинированной усадьбы Сумароковых-Миллеров, расположенной недалеко от Тарусы, бюро Рождественка предложило концепцию противоаварийных работ, которая помогает восстановить целостность объекта, не нарушая принципов охраны наследия. Временная мера не только стабилизирует памятник и защищает его от дальнейших разрушений, но также позволяет ему функционировать как общественный объект.
Лесные травы
Студия 40 создала интерьер ресторана FOREST в Екатеринбурге, руководствуясь необычным принципом – дизайн должен быть высококлассным и при этом ненавязчивым, чтобы все внимание посетителей было сосредоточено на кулинарных впечатлениях.
«Заря» над волнами
В проекте реконструкции муниципального пляжа «Заря» в Сочи от бюро V6 GROUP – террасирование, «текучий» бетон и открытый бассейн стали ответами на главные вызовы курорта: нехватку места, капризы моря и модернистскую айдентику местной инфраструктуры.
Баня по-царски
Бюро «Уникум» создало собственную версию идеального банного интерьера, отказавшись от расхожих трендов в пользу собственного уникального стиля – нео-русской готики, одновременно роскошной, интригующей и сказочной, что делает поход в эту баню настоящим побегом от серой реальности.
Типографика пространства
Консорциум ab Plombir и проект «ДАЛЬ» разработали комплексную концепцию развития исторического квартала «Нижполиграф» в Нижнем Новгороде. Бывшая типография превращается в креативный кластер и федеральный технопарк профессионального образования. Проект сохраняет промышленную идентичность места, деликатно работает с объектом культурного наследия и программирует 45 000 м2 как единую экосистему для встреч, коллабораций и городской жизни.
За холмами
Бюро Анастасии Томенко спроектировало для участка в районе Жигулевских гор загородный дом. Он одновременно подражает холмистому рельефу и заявляет о своем статусе выразительной скульптурной оболочкой, предлагает уединение и широкие виды, а также разные сценарии использования – от бутик-отеля до частной резиденции.
Звенья одной цепи
Бюро ulab разработало проект жилого комплекса, для которого выделен участок на границе с лесным массивом и экотропой «Уфимское ожерелье». Чтобы придать застройке индивидуальности, архитекторы использовали знакомые всем горожанам образы: башни силуэтом и материалом облицовки соотносятся со скальными массивами, а урбан-виллы – с яркими деревянными домиками. Не оставлено без внимания и соседство с советским кинотеатром «Салют» – доминанта комплекса подчеркивает его осевое расположение и использует паттерн фасада как основу для формообразования.
DELO’вой подход
Компания DELO успешно ведет дела во многих архитектурно-дизайнерских областях. Для того чтобы наилучшим образом представить все свои DELO’вые ипостаси, она создала специальное пространство, в котором торговая, маркетинговая и рабочая функции объединены в единый, очень органичный и привлекательный формат.
Северный ветер
Региональные бренды все чаще обзаводятся своими шоу-румами в лучших московских торговых центрах, и это дает возможность не только познакомиться с новыми именами в фэшн-дизайне, но и увидеть яркие произведения интерьерного дизайна от успешных бюро, достигших успеха в своих родных городах и уверенно завоевывающих столичный рынок.
Всматриваясь вдаль
Гордость за свой город и стремление передать его genius loci во всех своих проектах – вот настоящее кредо каждого питерского архитектора. И бюро ZIMA уверенно следует негласному принципу, без скидок на размеры и функцию, создавая интерьер небольшого магазина модной одежды LESEL так же, как если бы они делали парадную залу.
Школа со слониками
Девелопер «МетроПолис» выступил в несвойственной роли проектировщика при разработке для постконструктивистского детского сада со слониками в московском Щукино концепции реставрации и приспособления под современную школу. Историческое здание дополнит протяженный объем из легковозводимых деревоклееных конструкций. «Пристройку-забор»украсят панно с изображением памятников 1920-1930-х и зеленая кровля. Большим навесом, предназначенным для ожидающих родителей, смогут воспользоваться и посетители городского сквера «Юность».
Гипербола в кирпиче
Апарт-комплекс «Маки» – третья очередь комплекса «Инские холмы» в Новосибирске. Проектная артель 2ПБ создала в ней акцент за счет контраста материалов и форм: в кирпичном объеме, тяготеющем к кубу, сделаны два округлых стеклянных «выреза», в которых отражается город. Специально для проекта разработан кирпич особого цвета и формовки. Рельефная кладка в сочетании с фибробетоном, моллированным стеклом и гранитом делают архитектуру «осязаемой». Также пространство на уровне улицы усложнено рельефом.
Теплый берег
Проектная группа 8 и Институт развития городов и сел Башкортостана во взаимодействии с жителями района на окраине Уфы благоустроили территорию вокруг пруда. Зонировние учитывает интересы рыбаков, любителей наблюдать за птицами, владельцев собак и, конечно, детей и спортсменов. Малые архитектурные формы раскрывают природный потенциал территории, одновременно делая ее более безопасной.
Приближение таинства
Бюро Ивана Землякова ziarch спроектировало для Новой Москвы небольшой храм для венчаний и крещений, который также включает приходское кафе в духе «Антипы». Автор ясно разделяет мирскую и храмовую части, опираясь на аналоги из архангельских деревень. Постройка дополнит основной храм, перекликаясь с ним схожими материалами в отделке.
Жизнерадостный декаданс
Ресторан «Машенька», созданный бюро ARCHPOINT, представляет еще один взгляд на интерьерный дизайн, вдохновленный русскими традициями и народными промыслами. Правда, в нем не так много прямых цитат, а больше вольных фантазий в духе «Алисы в стране чудес», благодаря чему гости могут развлечься разгадыванием визуальных шарад.
Легкая степень брутализма
Особенные люди собираются в особенных местах. Например, в кофейне St.Riders Coffee, спроектированной бюро Marat Mazur interior design специально для сообщества райдеров и любителей экстрима, с использованием материалов и деталей, достаточно брутальных, чтобы будущие посетители почувствовали себя в своей стихии.
Текстильный подход
Бюро 5:00 am создало для фабрики «Крестецкая строчка» и бренда Alexandra Georgieva московский шоу-рум, продолжив эксперименты со стилизацией под классические жилые интерьеры XIX века, в которых благодаря переосмыслению культуры быта и прикладной эстетики актуальные тренды сочетаются с народными традициями, атмосферностью и тактильностью.
Еловый храм
Бюро Ивана Землякова ziarch для живописного участка на берегу Волги недалеко от Твери предложило храм, которые наследует традициям местного деревянного зодчества, но и развивает их. Четверик поднят на бетонный подклет, вытянутая восьмискатная щипцовая кровля покрыта лемехом, а украшением фасада служат маленькие оконца. Сочетание материалов, форм и приемов роднит храм с окружающим лесным пейзажем.
Сезонные настроения
Бюро «Уголок» разработало интерьер одного из филиалов ресторана «М2 Органик клуб», специализирующегося на экологически чистой продукции и органической кулинарии, проиллюстрировав при помощи дизайна каждое из четырех времен года.
Фахверк в формате барнхауса
В проекте загородного дома Frame Wood от AGE architects тектоника мощного фахверкового каркаса освобождена от стереотипов и заключена в лаконичный силуэт барнхауса. Конструкция по-прежнему – главное средство выразительности, но она становится более вариативной, а дом приобретает не характерную для фахверка легкость.
Цветы жизни
Архитектурная мастерская «Константин Щербин и партнеры» разработала мастер-план кампуса Университета имени Лесгафта, который, вероятно, расположится во Всеволожске. Планировочная структура с четким ядром и системой осей напоминает цветочную поляну, в центре которой – учебные корпуса, а ближе к периферии – жилой городок, спортивные объекты и медицинский кластер. В мастер-план заложен зеленый и водный каркас, а также транспортная схема, предполагающая приоритет пешеходов и велосипедистов.
«Призрак» в разноцветном доспехе
Новый формат ресторанов – «призрачная кухня», появившийся не так давно на волне все возрастающей с ковидных времен привычки заказывать ресторанную еду на дом, требовал не менее нового и эффектного дизайна. Именно такое неформальное и жизнерадостное дизайнерское лицо разработало бюро VEA Kollektiv для бренда Why Not Sushi.
Корочка льда
В рамках конкурса «Неочевидное. Арктика» петербургское бюро GRAD предложило для города-спутника Мурманска социальный хаб с видами на Кольский залив. Здание состоит из нескольких модулей, которые группируются вокруг атриума и соединяются мостами. У каждого модуля своя функциональная программа, что на фасаде проявлено различными типами облицовки из перфорированных металлических панелей. В проекте используются prefab-технологии
В ритме Неглинной
Citizenstudio бережно осовременили недостроенный трехэтажный корпус на Неглинной, принадлежащий МФЮА. Ограниченные логикой существующего объема, архитекторы, тем не менее, смогли реализовать достаточно тонкую игру со стилевыми реминисценциями самых разных исторических периодов и максимально деликатно вписаться в контекст центра Москвы.
Искушающая нежность
Бюро «Синица» умеет совершать большие и маленькие чудеса, создавая для магазинов не просто интерьеры, а целую философию. Магия дизайна привносит в пространство новую атмосферу и эстетику, а брендам – дает ключ к пониманию своей миссии.
Между сосен
Публикуем новый кампус Физмат школы Новосибирского государственного университета (НГУ), построенный по проекту AI Studio в Академгородке. Это весьма удачная попытка вписаться в глобальный контекст современного образования, перенеся центр тяжести с фасадов на качество обучающей среды.
Ячейка и кривуля
Детский сад, построенный по проекту BuroMoscow в столичном ЖК Грин парк, удачно балансирует между языком модернизма и эстетикой сделанного цветными карандашами рисунка. Кубический объем с регулярной фасадной сеткой отсылает к сортеру – развивающей игрушке, помогающей в числе прочего почувствовать форму. Роль объемных фигурок для сортировки играют залы, которые выбиваются из общей матрицы и делают элегантные фасады чуть менее серьезными. Яркий цвет этих залов сообщает нежный рефлекс помещениям холлов и групповых комнат, преимущественно белых. Среди других находок: отсутствие забора, встроенные в фасад скамейки и кадки для цветов, деревянные створки на панорамных окнах.
Технологии и материалы
Мегалиты на перспективу
В MIT разработали коллекцию бетонных элементов – они совмещают функции мебели и ограждающих конструкций. Объекты – несмотря на размеры и массу – можно легко перемещать и поворачивать, адаптируя пространство под меняющиеся потребности домовладельцев. Срок службы каждого из девяти предметов серии – 1000 лет.
Материализация образа
Технические новации иногда появляются благодаря воображению архитектора-визионера. Примером может служить интерьер Медиацентра в парке «Зарядье», в котором главным элементом стала фантастическая подвесная конструкция из уникального полимера. Об истории проекта Медиацентра мы поговорили с его автором Тимуром Башкаевым (АБТБ) и участником проекта, светодизайнером Софьей Кудряковой, директором по развитию QPRO.
Моллирование от Modern Glass: гибкость без ограничений
Технологии компании Modern Glass позволяют производить не просто гнутое стекло, а готовые стеклопакеты со сложной геометрией: сверхмалые радиусы, моллирование в двух плоскостях, длина дуги до 7 м – всё это стало возможно выполнить на одном производстве. Максимальная высота моллированных изделий достигает 18 м, благодаря чему можно создавать цельные фасадные поверхности высотой в несколько этажей без горизонтальных стыковочных швов, а также реализовывать сложные комбинированные решения в рамках одного проекта.
Cool Colours: цвет в структуре
Благодаря технологии коэкструзии, используемой в системах Melke Cool Colours, насыщенный цвет оконного профиля перестал вызывать опасения в долговечности конструкции. Работать с темными и фактурными оттенками можно без риска термической деформации и отслаивания.
Быстро, дешево и многоэтажно
Техасский ICON – производитель промышленных 3D-принтеров и компаньон бюро BIG – выпустил на рынок новую печатную систему. Она предназначена для строительных компаний, а не для частных пользователей. Подразумевается, что на установке Titan будут печатать быстровозводимые, качественные и относительно дешевые дома. А рядовые покупатели, пусть и не знакомые с аддитивными технологиями, смогут обзавестись доступным инновационным жильем.
Фальцевая кровля Rooflong как инженерная система
Современная архитектура предъявляет к кровельным системам значительно более высокие требования, чем это было еще несколько лет назад. Речь идет не только о защите здания от внешних воздействий, но и о сложной геометрии, долговечности, интеграции инженерных элементов и точной реализации архитектурной идеи. Так, фальцевая кровля все чаще рассматривается не как отдельный материал, а как часть комплексной оболочки здания.
Эффективные фасады из полимеров
К современным фасадам предъявляются множество требований: они должны быть одновременно легкими и прочными, гибкими и удобными в монтаже, эстетичными и пригодными для повторного использования. Полимерные композитные системы успешно справляются со всеми этими задачами, выходя далеко за рамки традиционной светотехники и стандартных форм. Эффективность выражается в снижении нагрузки на каркас, в простоте монтажа, в возможности создавать сложнейшие скульптурные оболочки. Разберем, как это работает на практике.
По второму кругу
​В Осаке разбирают «Большое кольцо» – гигантскую деревянную конструкцию, построенную по проекту Со Фудзимото для ЭКСПО-2025. Когда демонтаж завершится, древесину от «Кольца» передадут новым владельцам. Стройматериалы пойдут на восстановление домов, пострадавших от стихийных бедствий, и на строительство новых сооружений.
Архитектура потоков: узкие места в проектах логистических...
Проектирование логистических объектов – это не столько про объём, сколько про систему управляемых переходов между зонами. Значительное время работы техники теряется на ожидания, причём основные потери концентрируются не в стеллажном хранении, а в проёмах, стыках температурных контуров и зонах пересечения потоков. Разбираемся, почему реальная производительность склада определяется не характеристиками автоматизации, а временем открытия проёма, и как этот параметр закладывается в проект.
Стекло AIG в проекте Центрального телеграфа
В отреставрированном Центральном телеграфе на Тверской использованы три типа остекления AIG: для исторического фасада, кровли атриума и внутренних ограждений. Основные требования – нейтральность цветопередачи, солнцезащита без затемнения и сохранение визуальной легкости исторического объема.
Три цвета MODFORMAT на фасаде
Жилой комплекс «ЦЕНТР» в Бресте – первый в портфеле «Полесьежилстрой» проект, где фасады полностью выполнены из клинкера удлиненного формата. Квартал из пяти корпусов распродан почти на 100%, строительство продолжается. Разбираемся, что именно сработало: архитектурное решение, выбор материала или их удачное сочетание.
От модерниста – экологисту
Швейцарский архитектор Барбара Бузер получила премию Джейн Дрю 2026 года. Ежегодную премию представительницам слабого пола вручает журнал Architects′ Journal – за профессиональные достижения и «укрепление женского авторитета в профессии».
Зеленые полимеры: эволюция фасадной теплоизоляции
Современная «зеленая архитектура» – это не только про озеленение крыш и солнечные батареи. В первую очередь, это про технологии, снижающие углеродный след здания. Ключевую роль здесь играют теплоизоляционные материалы (ТИМ), позволяющие радикально сократить потребление энергии. Пенополистирол, PIR и другие материалы, которые принято называть «зелеными полимерами» за их вклад в энергоэффективность, сегодня превратились в стандарт индустрии.
Пищевые производства: логистика и температура
Будучи одними из самых сложных объектов с точки зрения внутренней организации, пищевые производства требуют не просто размещения холодильных камер и цехов, а создания системы «климатических островов» внутри здания. Главная сложность возникает в зонах проемов в условиях интенсивного движения техники и персонала. Разбираем инженерные нюансы подбора оборудования, позволяющие обеспечить герметичность без потери энергоэффективности и удобства логистики.
Тепло и форма
Энергоэффективность сегодня – не враг архитектурной выразительности. Полимерные утеплители – ЭППС, ПИР, ППУ – берут на себя нагрузку, усадку и влагу, освобождая фасад от массивных наслоений. Какой материал выбрать для фундамента, фасада и кровли, чтобы сохранить и тепло, и чистоту линий – разбираем в обзоре.
Угольная пыль вместо цемента
Ученые Пермского Политеха и УрФУ создали экологичный бетон с повышенной водостойкостью. В составе материала – тонкомолотые горелые породы, отравляющие экологию угледобывающих регионов.
Материал с характером
За последние годы продажи металлических фасадных кассет в России выросли почти на 40 % – в сегментах бизнес и премиум всё активнее спрос на материалы, которые дают архитектору свободу работать с выразительной формой, не в ущерб безопасности и сроку службы фасада. Металлокассеты стали одним из главных ответов на этот запрос. Смотрим актуальные приёмы их применения на реализованных объектах от компании «Алкотек».
Архитектура воздухообмена
В зданиях большого объема – от спортивных комплексов до производственных корпусов – формирование комфортного микроклимата связано с особыми инженерными задачами. Одной из ключевых становится организация циркуляции воздуха, позволяющая устранить температурное расслоение и обеспечить равномерные условия по всей высоте пространства.
Инновационное остекление для идеального микроклимата:...
В современной архитектуре стеклопакет приобрел множество полезных функций, став полноценным инструментом управления микроклиматом здания. Так, энергосберегающие стеклопакеты эффективно удерживают тепло в помещении, солнцезащитные – предотвращают перегрев, а электрообогреваемые сами становятся источником тепла. Разбираемся в многообразии современных стеклоизделий на примере продукции Российской Стекольной Компании.
Опоры из грибницы
В США придумали новую альтернатива бетону – живой материал на основе мицелия и бактерий. Такой материал способен самовосстанавливаться и годится для применения в конструктивных компонентах зданий.
Сейчас на главной
На глубине 101
Концептуальный прокт Arch(e)type – 250-метровая башня, композиционным центром которой является вертикальный бассейн – вдохновлен рекордом Натальи Молчановой, покорившей глубину 100 метров на задержке дыхания. Комплекс в случае реализации станет мировым центром фридайвинга, а также гидролабораторией для тренировки космонавтов. Сейчас самый глубокий бассейн – 60-метровый Deep Dive Dubai.
Грустный аттракцион
Привлекательная составляющая выставки сербских средневековых памятников в московском Музее архитектуры – AR, дополненная реальность, которая «поднимает» планы виртуальными моделями храмов и позволяет на несколько минут окунуться в обстановку их внутренних пространств. Памятники первоклассные – Грачаны, Дечаны; а объединяет их принадлежность к списку ЮНЕСКО «под угрозой». Сходство с кладбищем в дизайне экспозиции, надо думать, вовсе не случайное.
Каменный имплант
Бюро CQFD Architecture возвело в 17-м округе Парижа комплекс социального жилья Pension de famille со сдержанным, но пластически активным фасадом из натурального светлого известняка, добытого в знаменитых карьерах Вассен.
Светящаяся загадка
Коллекция питерских ресторанов пополнилась в прошлом году еще одним интересным для эстетов и гурманов местом – рестораном Self Edge Chinois от бюро SEEU. Вдохновляясь китайской культурой и искусством, которыми так легко очароваться, но так трудно понять их до конца, архитекторы сделали ставку на творческую интерпретацию наиболее ярких образов, ассоциирующихся с далекой Поднебесной.
Сфера интересов
27 мая открывается 31-я «Арх Москва», на которой по традиции будут представлены несколько авторских павильонов. Публикуем манифест и проектные материалы одного из них. Архитектуру павильона придумал Алексей Ильин, руководитель собственной мастерской, работающий в оригинальной художественной манере, генеалогия которой восходит еще к т.н. планетарному (Space Age) стилю в дизайне, а также архитектуре монреальского ЭКСПО 1967 года, в значительной степени вдохновленной космосом.
Афинская школа в сочинском парке
Дети – не маленькие взрослые. Школа – не офис для детей. Сочи – это юг. Это три утверждения, с которых BuroMoscow начали работу над концепцией лицея «Сириус», – и три архитектурных решения, из которых сложился проект.
Развитие и поддержка
По проекту бюро ulab рядом с храмом Андрея Рублева в Раменках строится центр дополнительного образования для молодых людей, оказавшихся в трудной жизненной ситуации. На форму здания повлияло желание соединить зеленый внутренний двор, активную зону у главного входа, а также атриум как главное общественное пространство.
Скрытый источник
Концептуальный проект купели близ пещерного монастыря Качи-Кальон – собственная инициатива архитектора Артема Зайцева. Формы здания основаны на гармонии золотого сечения, вторят окружающему скальному ландшафту и отсылают к раннехристианскому зодчеству.
В поисках вопросов
На острове Хайнань открылось новое здание музея науки по проекту MAD. Все его выставочные зоны выстроены в единый маршрут, развивающийся по спирали.
Между fair и tale, или как поймать «рынок» за хвост
На ВДНХ открылась выставка «Иномарка», исследующая культовую тему романтического капитализма 1990-х. Ее экспозиционный дизайн построен на эксперименте: его поручили трем авторам; а эффект знакомый – острого натурализма, призванного погрузить посетителя в ностальгическую атмосферу.
Казанские перформансы
В последние дни мая в Казани в шестой раз пройдет независимый фестиваль медиаискусства НУР, объединяющий медиахудожников, музыкантов и перформеров со всего мира. Организаторы фестиваля стремятся показать знаковые архитектурные объекты Казани с другого ракурса, открыть скрытые исторические части города и погрузить зрителей в новую реальность. Особое место в программе занимают музыкально-световые инсталляции. Рассказываем, что ждет гостей в этом году.
Друзья по крыше
В честь 270-летия Александринского театра на крыше Новой сцены откроется общественное пространство. Варианты архитектурной концепции летней многофункциональнй площадки с лекторием и камерной сценой будут создавать студенты петербургских вузов в рамках творческой лаборатории под руководством «Студии 44». Лучшее решение ждет реализация! Рассказываем об этой инициативе и ждем открытия театральной крыши.
На воскресной электричке
Для поселка Ушково Курортного района Санкт-Петербурга архитектурная мастерская М119 подготовила проект гостиницы с отдельно стоящим физкультурно-оздоровительным центром. Ячейки номеров, деревянные рейки на фасадах, а также бетонные блоки, акцентирующие функциональные блоки, отсылают к наследию советских санаториев и детских лагерей.
Наука на курорте
Здание для центра научно-промышленных исследований Чжэцзянского университета на острове Хайнань извлекает максимум из мягкого климата и видов на море. Авторы проекта – UAD, архитектурный институт в составе того же вуза.
Идеалы модернизма
В Дубне благодаря инициативе руководства Объединенного института ядерных исследований (ОИЯИ) реконструировано модернистское здание. По проекту Orchestra Design в Доме международных совещаний открылся выставочный зал «Галерея ОИЯИ», чья деятельность будет проходить на стыке науки и искусства. И первой выставкой, иллюстрирующей этот принцип, стала экспозиция одного из самых известных художников современности, пионера российского кинетизма Франциско Инфантэ.
Мембрана для мысли: IND
Бюро IND предложило для ФИЦ биомедицинских технологий проект, вдохновлённый устройством нейронной сети: многогранные полупрозрачные объёмы, сдвинутые относительно друг друга, образуют «живую структуру» – с «синапсами» общих дворов, где случайный разговор в атриуме может превратиться в научную коллаборацию.
Сплав мировых культур
Гостевой дом, построенный по проекту Osetskaya.Salov на окраине Переславля-Залесского, предлагает путешественнику насыщенное пространство, которое дополнит опыт пребывания в древнем городе. Внутри – пять номеров, отсылающих к славянской, африканской, индуистской, европейской и латиноамериканской культурам. Их расширяют общие пространства – терраса с коммунальным столом, эскуплуатируемая кровля с видом на город, укромный сад. Оболочка здания транслирует универсальное высказывание, вбирая в себя черты всех культур.
«Шартрез д’Эма»: монастырь под Флоренцией как архетип...
Петр Завадовский рассматривает влияние картезианского монастыря в тосканском Галлуццо на формирование концептуальных основ жилищной архитектуры Ле Корбюзье, а также на его проект «дома вилл» – Immeuble-villas.
КиноГолограмма
Не так давно московскими властями был одобрен проект нового комплекса Дома Кино от архитекторов Kleinewelt. Старое здание 1968 года сохранить не удалось – зато авторы сберегли витражи, металлические рельефы, а также объемные параметры здания, в котором разместится Союз кинематографистов и кинозалы. А главным акцентом станет жилая башня. Изучаем ее пластику и аллюзии в московском контексте.
Форма как метод: ТПО «Резерв»
В основе концепции Владимира Плоткина и ТПО «Резерв» – нетривиальная морфология, работающая на решение функциональных задач помимо чисто формальных. Хотя больше всего, конечно, на выразительность и создание редкостного – как можно предположить, рассматривая ключевые решения проекта, пространственно-эмоционального опыта. Изучили, оно того стоит. Наша версия – в таком проекте работает не стиль и даже не метафора, а метод.
Консервация как комментарий
Для руинированной усадьбы Сумароковых-Миллеров, расположенной недалеко от Тарусы, бюро Рождественка предложило концепцию противоаварийных работ, которая помогает восстановить целостность объекта, не нарушая принципов охраны наследия. Временная мера не только стабилизирует памятник и защищает его от дальнейших разрушений, но также позволяет ему функционировать как общественный объект.
Хроника Шуховской башни
Над шаболовской башней сгущается, теперь уже всерьез. Ее собираются построить в новом металле – копию в натуральную величину. Сейчас, вероятно, мы находимся в последней точке невозврата. Айрат Багаутдинов, основатель проекта «Москва глазами инженера», собрал впечатляющую подборку сведений по новейшей истории башни: попытки реконструкции, изменения предмета охраны и общественный резонанс. Публикуем. Сопровождаем фотографиями современного состояния.
Лесные травы
Студия 40 создала интерьер ресторана FOREST в Екатеринбурге, руководствуясь необычным принципом – дизайн должен быть высококлассным и при этом ненавязчивым, чтобы все внимание посетителей было сосредоточено на кулинарных впечатлениях.
Земельные отношения
Экоферма Цзаохэ в предместье Пекина восстанавливает отношения между человеком, землей и пищей. Fon Studio в своем проекте предсказуемо обратилось к традициям и легендам.
Курган памяти
Конкурсный проект мемориального комплекса на Пулковских высотах от «Студии 44» не будет реализован, но мы хотим о нем рассказать – это интересный пример того, как с помощью архитектуры можно символизировать травматичные события и тем самым способствовать их переработке и интеграции в опыт человека. Кроме того, авторам удается совместить мемориальную функцию с рекреационной, не уходя ни в драматизацию, ни в упрощение. Проект развивает идеи двух других конкурсных работ, ушедших в стол, – Музея блокады и парка «Тучков буян». А еще – отсылает к холму-кургану, который Александр Никольский воплотил в облике уже утраченного стадиона на Крестовском острове.
Между цирком и рынком
Манеж для представлений по проекту K architectures на конном заводе в Бретани соединяет ресурсоэффективность с традициями французской архитектуры.
Баня по-царски
Бюро «Уникум» создало собственную версию идеального банного интерьера, отказавшись от расхожих трендов в пользу собственного уникального стиля – нео-русской готики, одновременно роскошной, интригующей и сказочной, что делает поход в эту баню настоящим побегом от серой реальности.
«Заря» над волнами
В проекте реконструкции муниципального пляжа «Заря» в Сочи от бюро V6 GROUP – террасирование, «текучий» бетон и открытый бассейн стали ответами на главные вызовы курорта: нехватку места, капризы моря и модернистскую айдентику местной инфраструктуры.
Белый конгломерат: AI-Architects
Белые цилиндры «слипаются», расширяются кверху и подсвечиваются изнутри, как гигантские лабораторные колбы. Внутри – атриум-амфитеатр, где наука становится зрелищем. Мы продолжаем публиковать конкурсные проекты ФИЦ оригинальных и перспективных биомедицинских и фармацевтических технологий и показываем концепцию от консорциума «АИ-АРХИТЕКТС+ТОЛК+ZLT+АрТех Лаб».