Описание предоставлено архитекторами
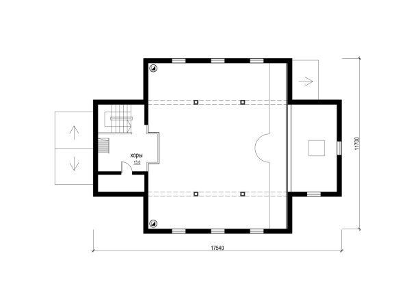
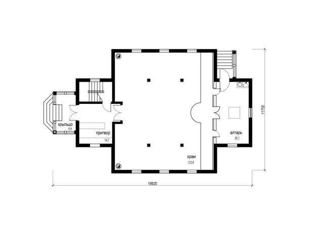
Церковь построена в поселке Гвардейское недалеко от Выборга, у места слияния озер Кунье и Соколиное. Основанием для нее служит сохранившийся фундамент деревянного финского дома, не дошедшего до наших дней. Одноглавый четырехстолпный храм с колокольней, хорами и алтарной частью рассчитан на сто прихожан.
Храм Вознесения Господня. Вид с озера Кунье
                Фотография © Алексей Боголепов / предоставлена Архитектурная мастерская Головин & Шретер
        Храм Вознесения Господня. Вид со стороны апсиды
                Фотография © Алексей Боголепов / предоставлена Архитектурная мастерская Головин & Шретер
        Архитектура связана с традициями строительства православных храмов на юге Финляндии. Цвет стен определен событием, которому храм посвящен. В деталях отделки использованы мотивы, подсмотренные на старых фотографиях усадьбы.
Храм Вознесения Господня. Северный фасад
                Фотография © Алексей Боголепов / предоставлена Архитектурная мастерская Головин & Шретер
        Храм Вознесения Господня. Западный фасад
                Фотография © Алексей Боголепов / предоставлена Архитектурная мастерская Головин & Шретер
        Средняя часть храма трехнефная с разновеликой высотой: семиметровым центральным нефом и четырехметровыми боковыми приделами. Двухрядный иконостас написан уральскими художниками – иконы являются единственными яркими пятнами в убранстве храма. В отделке аналоя и панихидного столика использованы гранитные плиты местного карьера. Скамьи напоминают те, что находились в здании вокзала станции Гвардейское, построенного финнами на рубеже XIX-XX веков и попавшего в советский кинороман о Шерлоке Холмсе. Для отопления используются печи-шведки в эмалированных кожухах.
В притворе размещен свечной киоск, а над ним располагаются хоры, куда ведет металлическая лестница. Средний уровень колокольни служит кабинетом священника. Алтарная часть имеет отдельный вход с улицы.
Конструктивная схема здания – деревянный каркас. Наружная и внутренняя отделка, а также детали выполнены из хвойных пород дерева. Кровля – стальная фальцевая. Алтарное окно обрамлено наличником, чудесным образом сохранившимся от финской постройки.

 
            
            
         
                                                                                 
                            
 
                             
                             
                             
                                         
                                         
                                         
                                         
                                         
                                         
                                         
                                         
                                         
                                         
                                         
                                         
                                                                                 
                                                                        
                                                                     
                                                                        
                                                                     
                                                                        
                                                                     
                                                                        
                                                                     
                                                                        
                                                                     
                                                                        
                                                                     
                                                                        
                                                                     
                                                                        
                                                                     
                                                                        
                                                                     
                                                                        
                                                                     
                                                                        
                                                                     
                                                                        
                                                                     
                                                                        
                                                                     
                                                                        
                                                                     
                                                                        
                                                                     
                                                                        
                                                                     
                                                                        
                                                                     
                                                                        
                                                                     
                                                                        
                                                                     
                                                                        
                                                                     
                                                                        
                                                                     
                                                                        
                                                                     
                                                                        
                                                                     
                                                                        
                                                                     
                                                                        
                                                                     
                                                                        
                                                                     
                                                                        
                                                                     
                                                                        
                                                                     
                                                                        
                                                                     
                                                                        
                                                                     
                                                                        
                                                                     
                                                                        
                                                                     
                                                                        
                                                                     
                                                                        
                                                                     
                                                                        
                                                                     
                                                                        
                                                                     
                                                                        
                                                                     
                                                                        
                                                                     
                                                                        
                                                                     
                                                                        
                                                                     
                                                                        
                                                                     
                                                                        
                                                                     
                                                                        
                                                                     
                                                                        
                                                                     
                                                                        
                                                                     
                                                                        
                                                                     
                                                                        
                                                                     
                                                                        
                                                                     
                                                                        
                                                                     
                                                                        
                                                                     
                                                                        
                                                                     
                                                                        
                                                                     
                                                                        
                                                                     
                                                                        
                                                                     
                                                                        
                                                                     
                                                                        
                                                                     
                                                                        
                                                                     
                                                                        
                                                                     
                                                                        
                                                                     
                                                                        
                                                                     
                                                                        
                                                                     
                                                                        
                                                                     
                                                                        
                                                                     
                                                                        
                                                                     
                                                                        
                                                                     
                                                                        
                                                                     
                                                                        
                                                                     
                                                                        
                                                                     
                                                                        
                                                                     
                                                                        
                                                                     
                                                                        
                                                                     
                                                                        
                                                                     
                                        