|
Проект дворца бракосочетания во Всеволожске, подготовленный мастерской «Головин & Шретер», стал победителем ежегодного конкурса «Концепций пространственного развития муниципальных образований Ленинградской области». Архитекторы предложили комплекс в духе дворцово-парковых ансамблей пригородов Санкт-Петербурга: с симметричной композицией и регулярным садом. А также позаботились о том, чтобы на памятные фотографии не попадали припаркованные автомобили.
Описание предоставлено архитекторами Торжественный комплекс задуман как традиционный для пригородов Санкт-Петербурга дворцово-парковый ансамбль с регулярной основой композиции и пейзажным парком для прогулок.
  Основной въезд на территорию запланирован с транспортной магистрали Дорога жизни, второстепенный – со стороны жилого квартала. Подъезд к парадному входу освобожден от парковок. Парковки для гостей и служащих, в том числе для автобусов, расположены вдоль проезда к каждодневному входу в здание. Таким образом, автомобили не влияют на восприятие архитектуры комплекса и его фотопанорамы.
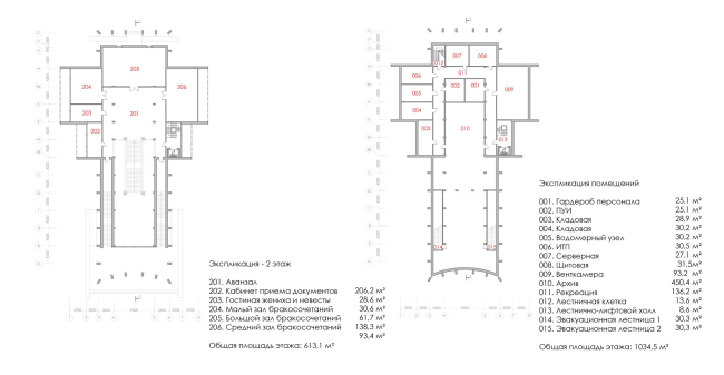
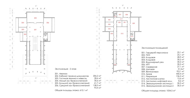
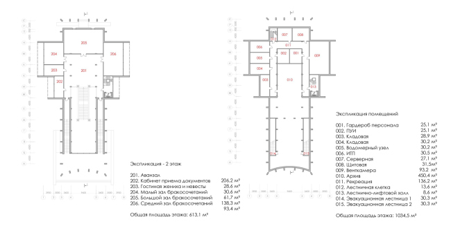
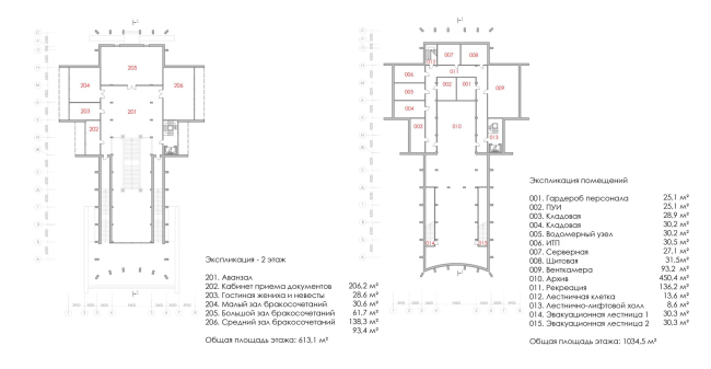
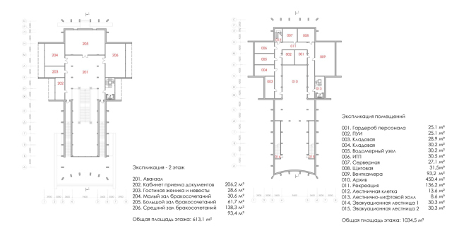
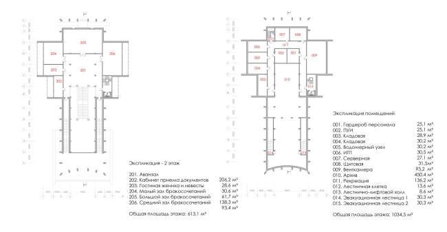
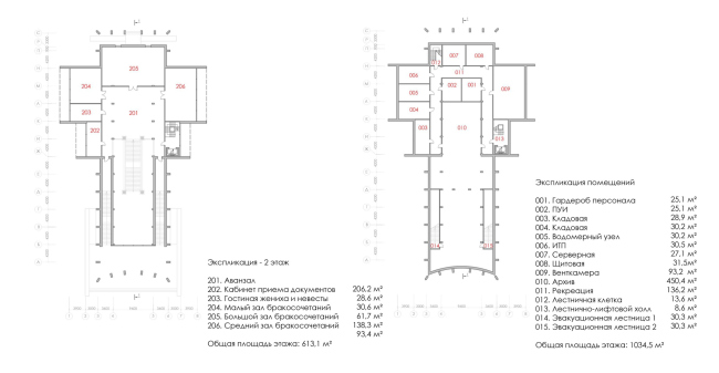
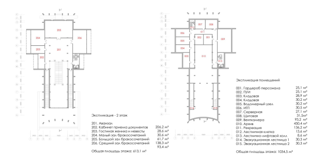
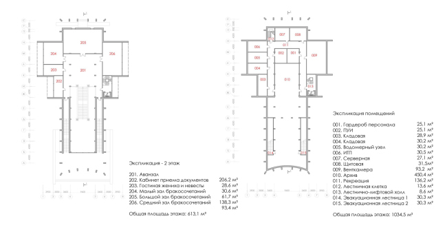
   Композиция Дворца симметрична. Белоснежный периптер фланкируют с двух сторон стройные колоннады, распахивающие «объятия». Парадная лестница, освещенная позолоченными фонарями, встречает будущих молодоженов и ведет на второй этаж, где расположены залы для церемоний бракосочетания. На первом этаже спроектированы вспомогательные и административные помещения. В подвальном – архив и технические помещения.
    От парадного входа молодожены могут пройти по эспланаде к пруду. Архитектуру эспланады дополняют фонари и кашпо с вечнозелеными деревьями. Гости могут запечатлеть себя на фоне дворца и фонтана, на фоне скульптурной композиции «Обручальные кольца». Завершает классическую композицию эспланады спуск к воде. «Остров любви» – основная парковая точка притяжения и фотозона. Попасть на остров можно по двум изящным мостам. На острове расположена беседка-ротонда – символичное место для новобрачных. Для проведения торжеств в пейзажной части парка спроектирован павильон с банкетным залом. Панорамный витраж банкетного зала обращен в сторону портика дворца бракосочетания и ротонды.
    Парадный фасад здания Дворца бракосочетания обращен на юго-запад. Вследствие этого он освещен солнечным светом на протяжении всего светового дня и является выразительным фоном для памятных снимков. Архитектура комплекса становится участником торжественных церемоний, блеск и дворцовая грация навсегда останутся в семейных альбомах.
  Дворец бракосочетания во Всеволожске© Архитектурная мастерская Головин & Шретер / предоставлено Комитетом градостроительной политики Ленинградской области
Дворец бракосочетания во Всеволожске. Вид бокового фасада© Архитектурная мастерская Головин & Шретер / предоставлено Комитетом градостроительной политики Ленинградской области
Дворец бракосочетания во Всеволожске. Генеральный план© Архитектурная мастерская Головин & Шретер / предоставлено Комитетом градостроительной политики Ленинградской области
Дворец бракосочетания во Всеволожске. Аксонометрия© Архитектурная мастерская Головин & Шретер / предоставлено Комитетом градостроительной политики Ленинградской области
Дворец бракосочетания во Всеволожске. Фотофиксация существующего состояния территории© Архитектурная мастерская Головин & Шретер / предоставлено Комитетом градостроительной политики Ленинградской области
Дворец бракосочетания во Всеволожске. Вид с аллеи молодоженов© Архитектурная мастерская Головин & Шретер / предоставлено Комитетом градостроительной политики Ленинградской области
Дворец бракосочетания во Всеволожске. Интерьер
вестибюля© Архитектурная мастерская Головин & Шретер / предоставлено Комитетом градостроительной политики Ленинградской областиДворец бракосочетания во Всеволожске. Интерьер
вестибюля© Архитектурная мастерская Головин & Шретер / предоставлено Комитетом градостроительной политики Ленинградской областиДворец бракосочетания во Всеволожске. План 1 этажа© Архитектурная мастерская Головин & Шретер / предоставлено Комитетом градостроительной политики Ленинградской области
Дворец бракосочетания во Всеволожске. План 2 этажа© Архитектурная мастерская Головин & Шретер / предоставлено Комитетом градостроительной политики Ленинградской области
Дворец бракосочетания во Всеволожске. Вечерний вид Дворца бракосочетания с аллеи молодоженов© Архитектурная мастерская Головин & Шретер / предоставлено Комитетом градостроительной политики Ленинградской области
Дворец бракосочетания во Всеволожске. Вид с Острова любви на аллею молодоженов и Дворец бракосочетания© Архитектурная мастерская Головин & Шретер / предоставлено Комитетом градостроительной политики Ленинградской области
Дворец бракосочетания во Всеволожске. Вид со стороны павильона на дворцовый ансамбль© Архитектурная мастерская Головин & Шретер / предоставлено Комитетом градостроительной политики Ленинградской области
Дворец бракосочетания во Всеволожске. Вид из парка на Остров любви и павильон с банкетным залом© Архитектурная мастерская Головин & Шретер / предоставлено Комитетом градостроительной политики Ленинградской области
Дворец бракосочетания во Всеволожске. Вид парадного портика© Архитектурная мастерская Головин & Шретер / предоставлено Комитетом градостроительной политики Ленинградской области
Дворец бракосочетания во Всеволожске. Вид от колоннады© Архитектурная мастерская Головин & Шретер / предоставлено Комитетом градостроительной политики Ленинградской области
Дворец бракосочетания во Всеволожске. Вид с парадного подъезда© Архитектурная мастерская Головин & Шретер / предоставлено Комитетом градостроительной политики Ленинградской области
Дворец бракосочетания во Всеволожске. Вид на портик со входом для каждодневного посещения© Архитектурная мастерская Головин & Шретер / предоставлено Комитетом градостроительной политики Ленинградской области
Дворец бракосочетания во Всеволожске. Вид на луг со стороны колоннады© Архитектурная мастерская Головин & Шретер / предоставлено Комитетом градостроительной политики Ленинградской области
Дворец бракосочетания во Всеволожске. Вид со стороны колоннады на аллею молодоженов© Архитектурная мастерская Головин & Шретер / предоставлено Комитетом градостроительной политики Ленинградской области
|