Инклюзивный образовательный центр
Фото © Marco Cappelletti. Предоставлено Enrico Molteni Architecture
Университет получил ясли и детский сад для малышей от нуля до шести лет: это государственное учреждение, но в первую очередь оно предназначено для семей тех, кто преподает или учится в этом вузе. Это обусловило расположение постройки в кампусе-парке точных и естественных наук, между поросшими деревьями берегами речки Чингио, учебными корпусами и спортивными площадками.
Инклюзивный образовательный центр
Фото © Marco Cappelletti. Предоставлено Enrico Molteni Architecture
Половина, принадлежащая фонду, вмещает центр социального и культурного развития для детей 10–14 лет, которые принадлежат к группе риска из-за социальной и семейной ситуации, в которой находятся, или же из-за своих физических и психических особенностей. Эта половина примыкает к спортивным объектам того же фонда, а детский сад – к берегу реки.
Инклюзивный образовательный центр
Фото © Marco Cappelletti. Предоставлено Enrico Molteni Architecture
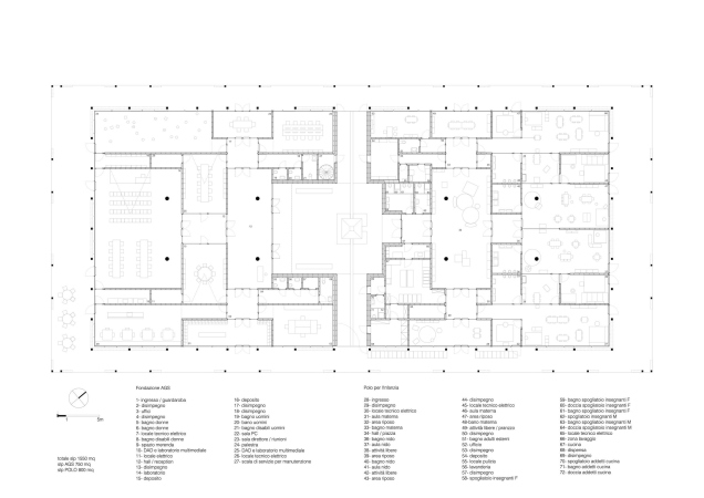
Снаружи здание окружено галерей на косых деревянных опорах, которая скрывает за собой остекленные фасады, также с деревянными опорами по периметру. В интерьере опор, напротив, всего по четыре в каждой половине: это мощные круглые столбы. Такое решение позволило сделать планировку максимально гибкой, хотя существующий вариант тщательно продуман. Так, использован модуль 3,6х3,6х3,6 м и его производные. Несмотря на то, что в детском саду в несколько раз больше помещений, чем в центре развития, между ними созданы сквозные анфилады: когда все двери по этим линиям открыты, то возникает перспектива поперек или вдоль здания, в последнем случае – длиной в 70 м.
Инклюзивный образовательный центр
Фото © Marco Cappelletti. Предоставлено Enrico Molteni Architecture
Опоры и балки выполнены из ламинированного дерева, полы и перекрытия – из панелей из поперечно-клееной древесины. Панели ДВП использованы в качестве акустических, полы и стены до высоты 0,75 м покрыты ПВХ. Общая площадь здания – 2450 м2, бюджет составил 5 млн евро.
Инклюзивный образовательный центр
Фото © Accademia dei Giorni Straordinari. Предоставлено Enrico Molteni Architecture
Инклюзивный образовательный центр
Фото © Marco Cappelletti. Предоставлено Enrico Molteni Architecture
Инклюзивный образовательный центр
Фото © Marco Cappelletti. Предоставлено Enrico Molteni Architecture
Инклюзивный образовательный центр
Фото © Marco Cappelletti. Предоставлено Enrico Molteni Architecture
