Центр исполнительских искусств района Баоань
                Фотография © Zhang Chao Studio / предоставлена RDA
        Центр исполнительских искусств района Баоань
                Фотография © Zhang Chao Studio / предоставлена RDA
        Центр исполнительских искусств района Баоань
                Фотография © Zhang Chao Studio / предоставлена RDA
        Все три здания, общая площадь которых составляет около 110 000 м2, в основе представляют собой правильные геометрические объемы, но каждый претерпел какие-то неожиданные изменения. Активно эксплуатируется тема волны, морского ветра; для театра, например, архитекторы озвучили прямую, но несколько натянутую аналогию с развивающимся на ветру занавесом. Наклоненная на 15 градусов башня, связанная со зданием театра подвесными переходами, задумана как главный, хорошо читающийся с воды ориентир и задает ось всего квартала. Она же собрала все эффектные смотровые точки.
Центр исполнительских искусств района Баоань
                Фотография © Zhang Chao Studio / предоставлена RDA
        Центр исполнительских искусств района Баоань
                Фотография © Zhang Chao Studio / предоставлена RDA
        Центр исполнительских искусств района Баоань
                Фотография © Zhang Chao Studio / предоставлена RDA
        Центр исполнительских искусств района Баоань
                Фотография © Zhang Chao Studio / предоставлена RDA
        Сетчатая оболочка всех фасадов напоминает о популярном в этих местах древнем искусстве резьбы по дереву и кости, одновременно прекрасно защищая внутренние пространства от перегрева и назойливого солнца. Она также дает возможность легко регулировать уровень визуальной открытости помещений в зависимости от их назначения: общественные зоны, например, трехуровневый вестибюль, остаются проницаемыми для света и взглядов, а зрительные залы и репетиционные студии оказываются полностью скрыты. Так авторы хотели продемонстрировать единение традиции и современных технологических решений.
Центр исполнительских искусств района Баоань
                Фотография © Zhang Chao Studio / предоставлена RDA
        Центр исполнительских искусств района Баоань
                Фотография © Zhang Chao Studio / предоставлена RDA
        Главный зал предназначен в основном для крупноформатных оперных и балетных спектаклей, а также для концертов симфонической музыки. Он оборудован шестью специальными подъемниками и подвижной оркестровой ямой, которую можно установить вровень со сценой: все это дает постановщикам дополнительную свободу. Органической формы деревянные панели отвечают за акустику. Второй зал, рассчитанный на 600 зрителей, имеет более гибкую организацию и прекрасно приспособлен для экспериментальных постановок, включая все виды иммерсивного театра. В нем, например, при необходимости можно установить подиум или окружить сцену креслами со всех четырех сторон.
Центр исполнительских искусств района Баоань
                Фотография © Zhang Chao Studio / предоставлена RDA
        Центр исполнительских искусств района Баоань
                Фотография © Zhang Chao Studio / предоставлена RDA
        Кроме двух залов архитекторы предусмотрели различные репетиционные пространства, административную часть, ресторан, торговую зону. Как и во внешних решениях, внутри архитекторы организуют пространство при помощи сложных, прихотливо взаимодействующих друг с другом объемов и плавных линий. В оформлении как общественных зон, так и самих залов активно использованы деревянные панели, перекликающиеся с решением фасадов.
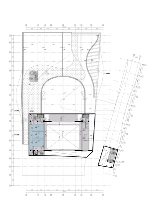
Центр исполнительских искусств района Баоань
                © Rocco Design Architects
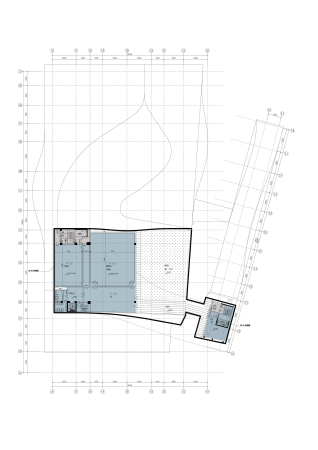
        Центр исполнительских искусств района Баоань
                © Rocco Design Architects
        Центр исполнительских искусств района Баоань
                © Rocco Design Architects
        Центр исполнительских искусств района Баоань
                © Rocco Design Architects
        Центр исполнительских искусств района Баоань
                © Rocco Design Architects
        
                        
            
            
        
                            