Только такое дерево – по-настоящему ресурсоэффективно и «устойчиво» как строительный материал. Чтобы отличить его от любого другого, был предложен сертификат FSC – Лесного попечительского совета (Forest Stewardship Council). Однако сертифицированная древесина пока составляет далеко не 100% от заготовляемой в целом на нашей планете, поэтому была создана Программа поддержки сертификации леса (Programme for Endorsement of Forest Certification, PEFC). Именно в сотрудничестве с ней и основана «деревянная» премия Всемирного фестиваля архитектуры – WAF Certified Timber Prize – чтобы привлечь внимание к успехам современного строительства из сертифицированного дерева в разных странах мира.
Публикуем список финалистов.
Студенческое общежитие Adohi Hall
Университет Арканзаса, ФейетвиллLeers Weinzapfel Associates, Modus Studio и Mackey Mitchell Architects
Общежитие на 708 студентов построено из перекрестно-клеенной древесины: это крупнейшая постройка из CLT в США (18 766 м2). Название взято из языка чироки: оно означает «лес» и напоминает, что в 1830-е годы рядом проходила Дорога слёз – маршрут насильственного переселения индейцев.
Центр гимнастики Ариакэ
ТокиоNikken Sekkei и Shimizu Corporation
Построенное к Олимпиаде спортивное сооружение стоит на берегу Токийского залива. У него стальной каркас, однако почти все остальное выполнено из дерева, что позволило уменьшить массу здания: это было особенно важным в условиях сложных приморских грунтов.
Микро-библиотека Варак-Кайу
Семаранг, ИндонезияSHAU
Это уже пятая микро-библиотека из серии, созданной совместно частным (благотворительным) капиталом, властями и местными жителями. Как основа проекта был выбран традиционный дом на сваях. Если библиотека предназначена в первую очередь для детей, пространство на уровне земли может действовать как районный общественный центр.
Центр черепах Мон-Рипос
Мон-Рипос, Квинсленд, АвстралияKIRK
Возведенный из клееного бруса центр рассказывает посетителям о морских черепахах и угрожающем им исчезновении: он находится в месте их «гнездования», на территории природного заповедника.
Daramu House
СиднейTzannes
Офисное здание в центре Сиднея получило каркас из клееного бруса с модулем 9 х 9 м, причем пролет в вестибюле достигает 18 м благодаря использованию деревянных ферм.
Киоск в гавани
ГонконгLAAB Architects
Торговый павильон на проспекте Кинозвезд – Avenue of Stars – на морском берегу напоминает о движущемся киноизображении, приливах и отливах с помощью кинетического деревянного фасада. 49 робото-рук днем превращают деревянные ламели в подобие навеса, а вечером складывают их в прежнюю компактную форму. Проект также вдохновлен традиционными гонконгскими ларьками с уличной едой, где деревянные рейки играют ту же роль уже без помощи роботов.
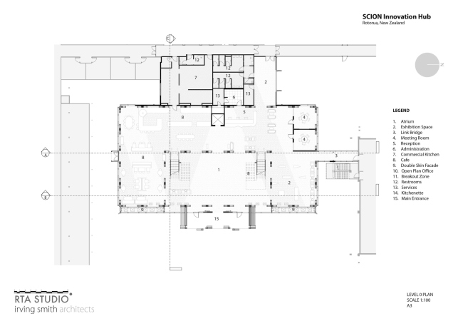
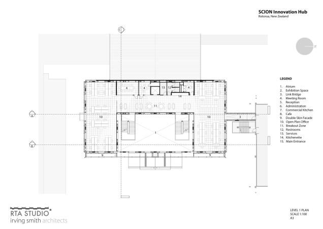
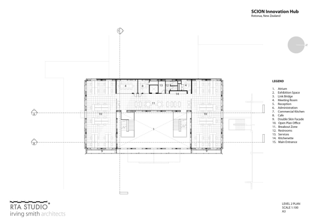
Центр инноваций Scion (Te Whare Nui o Tuteata)
Роторуа, Новая ЗеландияRTA Studio и Irving Smith Architects
Это штаб-квартира Scion – государственной организации по развитию лесного хозяйства. Каркас представляет собой диагональную решетку, обеспечивающую высокую устойчивость при меньших по сравнению с более традиционными решениями затратах материалов. Использовано несколько видов инженерного дерева, причем из этого материала выполнена даже шахта лифта. Трехэтажное здание (2000 м2) пожаробезопасно, сейсмоустойчиво, а также «захватило» 418 тонн СО2 (столько выпустили бы в атмосферу использованные при строительстве деревья, если бы их оставили завершить свой жизненный цикл и сгнить). При этом затраченные 454 м3 древесины будут восстановлены в новозеландских лесах из сосны лучистой всего за 35 минут.
Climatorium
Лемвиг, Дания3XN
Исследовательский и образовательный центр, посвященный проблеме глобального изменения климата, привлекает внимание своей обшитой деревом нишей-скамьей на фасаде. Верхняя часть здания обшита деревянными ламелями. Изнутри ниша-волна выглядит как корпус корабля, что напоминает о датских судостроительных традициях.
* * *
Победитель будет определен на Всемирном фестивале архитектуры, который пройдет в Лиссабоне 1–3 декабря 2021 года.

 
                         
            
            
         
                                        
 
                                         
                                         
                                         
                                         
                                         
                                         
                                         
                                         
                                         
                                         
                                         
                                         
                                         
                                         
                                         
                                         
                                         
                                         
                                         
                                         
                                         
                                         
                                         
                                         
                                         
                                         
                                         
                                         
                                         
                                         
                                         
                                         
                                         
                                         
                                         
                                         
                                         
                                         
                                         
                                         
                                         
                                         
                                         
                                         
                                         
                                         
                                         
                                         
                                         
                                         
                                         
                                         
                                         
                                         
                                         
                                         
                                         
                                         
                                         
                                         
                                         
                                         
                                         
                                         
                                         
                                         
                                         
                                         
                                         
                                         
                                         
                                         
                                         
                                         
                                         
                                         
                                         
                                         
                                         
                                         
                                         
                                         
                                         
                                         
                                         
                     
                                                                        
                                                                     
                                                                        
                                                                     
                                                                        
                                                                     
                                                                        
                                                                     
                                                                        
                                                                     
                                                                        
                                                                     
                                                                        
                                                                     
                                                                        
                                                                     
                                                                        
                                                                     
                                                                        
                                                                     
                                                                        
                                                                     
                                                                        
                                                                     
                                                                        
                                                                     
                                                                        
                                                                     
                                                                        
                                                                     
                                                                        
                                                                     
                                                                        
                                                                     
                                                                        
                                                                     
                                                                        
                                                                     
                                                                        
                                                                     
                                                                        
                                                                     
                                                                        
                                                                     
                                                                        
                                                                     
                                                                        
                                                                     
                                                                        
                                                                     
                                                                        
                                                                     
                                                                        
                                                                     
                                                                        
                                                                     
                                                                        
                                                                     
                                                                        
                                                                     
                                                                        
                                                                     
                                                                        
                                                                     
                                                                        
                                                                     
                                                                        
                                                                     
                                                                        
                                                                     
                                                                        
                                                                     
                                                                        
                                                                     
                                                                        
                                                                     
                                                                        
                                                                     
                                                                        
                                                                     
                                                                        
                                                                     
                                                                        
                                                                     
                                                                        
                                                                     
                                                                        
                                                                     
                                                                        
                                                                     
                                                                        
                                                                     
                                                                        
                                                                     
                                                                        
                                                                     
                                                                        
                                                                     
                                                                        
                                                                     
                                                                        
                                                                     
                                                                        
                                                                     
                                                                        
                                                                     
                                                                        
                                                                     
                                                                        
                                                                     
                                                                        
                                                                     
                                                                        
                                                                     
                                                                        
                                                                     
                                                                        
                                                                     
                                                                        
                                                                     
                                                                        
                                                                     
                                                                        
                                                                     
                                                                        
                                                                     
                                                                        
                                                                     
                                                                        
                                                                     
                                                                        
                                                                     
                                                                        
                                                                     
                                                                        
                                                                     
                                                                        
                                                                     
                                                                        
                                                                     
                                                                        
                                                                     
                                         
                                                                        
                                                                     
                                                                        
                                                                    