RSS
Штаб-квартира Juzen Chemical Corporation в Тояме
Фотография © Shigeo Ogawa / предоставлена Key Operation Inc. / Architects

Штаб-квартира Juzen Chemical Corporation


/ Juzen Chemical Corporation Head Office Building

информация:

Akira Koyama + Key Operation Inc. / Architects / Япония
Штаб-квартира Juzen Chemical Corporation в Тояме
Фотография © Shigeo Ogawa / предоставлена Key Operation Inc. / Architects

Архи.ру об этом объекте:

07.02.2025

Анна Старостина. Точные объятия

Бюро Akira Koyama + Key Operation Inc. / Architects построило в японском городе Тояма офис для фармацевтической компании Juzen Chemical Corporation.

читать дальше
Штаб-квартира Juzen Chemical Corporation в Тояме
Фотография © Shigeo Ogawa / предоставлена Key Operation Inc. / Architects
Штаб-квартира Juzen Chemical Corporation в Тояме
Фотография © Shigeo Ogawa / предоставлена Key Operation Inc. / Architects
Штаб-квартира Juzen Chemical Corporation в Тояме
Фотография © Shigeo Ogawa / предоставлена Key Operation Inc. / Architects
Штаб-квартира Juzen Chemical Corporation в Тояме
Фотография © Shigeo Ogawa / предоставлена Key Operation Inc. / Architects
Штаб-квартира Juzen Chemical Corporation в Тояме
Фотография © Shigeo Ogawa / предоставлена Key Operation Inc. / Architects
Штаб-квартира Juzen Chemical Corporation в Тояме
Фотография © Shigeo Ogawa / предоставлена Key Operation Inc. / Architects
Штаб-квартира Juzen Chemical Corporation в Тояме
Фотография © Shigeo Ogawa / предоставлена Key Operation Inc. / Architects
Штаб-квартира Juzen Chemical Corporation в Тояме
Фотография © Shigeo Ogawa / предоставлена Key Operation Inc. / Architects
Штаб-квартира Juzen Chemical Corporation в Тояме
Фотография © Shigeo Ogawa / предоставлена Key Operation Inc. / Architects
Штаб-квартира Juzen Chemical Corporation в Тояме
Фотография © Shigeo Ogawa / предоставлена Key Operation Inc. / Architects
Штаб-квартира Juzen Chemical Corporation в Тояме
Фотография © Shigeo Ogawa / предоставлена Key Operation Inc. / Architects
Штаб-квартира Juzen Chemical Corporation в Тояме
Фотография © Shigeo Ogawa / предоставлена Key Operation Inc. / Architects
Штаб-квартира Juzen Chemical Corporation в Тояме
Фотография © Shigeo Ogawa / предоставлена Key Operation Inc. / Architects
Штаб-квартира Juzen Chemical Corporation в Тояме
Фотография © Shigeo Ogawa / предоставлена Key Operation Inc. / Architects
Штаб-квартира Juzen Chemical Corporation в Тояме
Фотография © Shigeo Ogawa / предоставлена Key Operation Inc. / Architects
Штаб-квартира Juzen Chemical Corporation в Тояме
Фотография © Shigeo Ogawa / предоставлена Key Operation Inc. / Architects
Штаб-квартира Juzen Chemical Corporation в Тояме
Фотография © Shigeo Ogawa / предоставлена Key Operation Inc. / Architects
Штаб-квартира Juzen Chemical Corporation в Тояме
Фотография © Shigeo Ogawa / предоставлена Key Operation Inc. / Architects
Штаб-квартира Juzen Chemical Corporation в Тояме
Фотография © Shigeo Ogawa / предоставлена Key Operation Inc. / Architects
Штаб-квартира Juzen Chemical Corporation в Тояме
Фотография © Shigeo Ogawa / предоставлена Key Operation Inc. / Architects
Штаб-квартира Juzen Chemical Corporation в Тояме
Фотография © Shigeo Ogawa / предоставлена Key Operation Inc. / Architects
Штаб-квартира Juzen Chemical Corporation в Тояме
Фотография © Shigeo Ogawa / предоставлена Key Operation Inc. / Architects
Штаб-квартира Juzen Chemical Corporation в Тояме
Фотография © Shigeo Ogawa / предоставлена Key Operation Inc. / Architects
Штаб-квартира Juzen Chemical Corporation в Тояме
Фотография © Shigeo Ogawa / предоставлена Key Operation Inc. / Architects
Штаб-квартира Juzen Chemical Corporation в Тояме
Фотография © Shigeo Ogawa / предоставлена Key Operation Inc. / Architects
Штаб-квартира Juzen Chemical Corporation в Тояме
Фотография © Shigeo Ogawa / предоставлена Key Operation Inc. / Architects
Штаб-квартира Juzen Chemical Corporation в Тояме
Фотография © Shigeo Ogawa / предоставлена Key Operation Inc. / Architects
Штаб-квартира Juzen Chemical Corporation в Тояме
Фотография © Shigeo Ogawa / предоставлена Key Operation Inc. / Architects
Штаб-квартира Juzen Chemical Corporation в Тояме
Фотография © Shigeo Ogawa / предоставлена Key Operation Inc. / Architects
Штаб-квартира Juzen Chemical Corporation в Тояме
Фотография © Shigeo Ogawa / предоставлена Key Operation Inc. / Architects
Штаб-квартира Juzen Chemical Corporation в Тояме
Фотография © Shigeo Ogawa / предоставлена Key Operation Inc. / Architects
Штаб-квартира Juzen Chemical Corporation в Тояме
Фотография © Shigeo Ogawa / предоставлена Key Operation Inc. / Architects
Штаб-квартира Juzen Chemical Corporation в Тояме
Фотография © Shigeo Ogawa / предоставлена Key Operation Inc. / Architects
Штаб-квартира Juzen Chemical Corporation в Тояме
Фотография © Shigeo Ogawa / предоставлена Key Operation Inc. / Architects
Штаб-квартира Juzen Chemical Corporation в Тояме
Фотография © Shigeo Ogawa / предоставлена Key Operation Inc. / Architects
Штаб-квартира Juzen Chemical Corporation в Тояме
Фотография © Shigeo Ogawa / предоставлена Key Operation Inc. / Architects
Штаб-квартира Juzen Chemical Corporation в Тояме
Фотография © Shigeo Ogawa / предоставлена Key Operation Inc. / Architects
Штаб-квартира Juzen Chemical Corporation в Тояме
Фотография © Shigeo Ogawa / предоставлена Key Operation Inc. / Architects
Штаб-квартира Juzen Chemical Corporation в Тояме
Фотография © Shigeo Ogawa / предоставлена Key Operation Inc. / Architects
Штаб-квартира Juzen Chemical Corporation в Тояме
Фотография © Shigeo Ogawa / предоставлена Key Operation Inc. / Architects
Штаб-квартира Juzen Chemical Corporation в Тояме
Фотография © Shigeo Ogawa / предоставлена Key Operation Inc. / Architects
Штаб-квартира Juzen Chemical Corporation в Тояме
Фотография © Shigeo Ogawa / предоставлена Key Operation Inc. / Architects
Штаб-квартира Juzen Chemical Corporation в Тояме
Фотография © Shigeo Ogawa / предоставлена Key Operation Inc. / Architects
Штаб-квартира Juzen Chemical Corporation в Тояме
Фотография © Shigeo Ogawa / предоставлена Key Operation Inc. / Architects
Штаб-квартира Juzen Chemical Corporation в Тояме
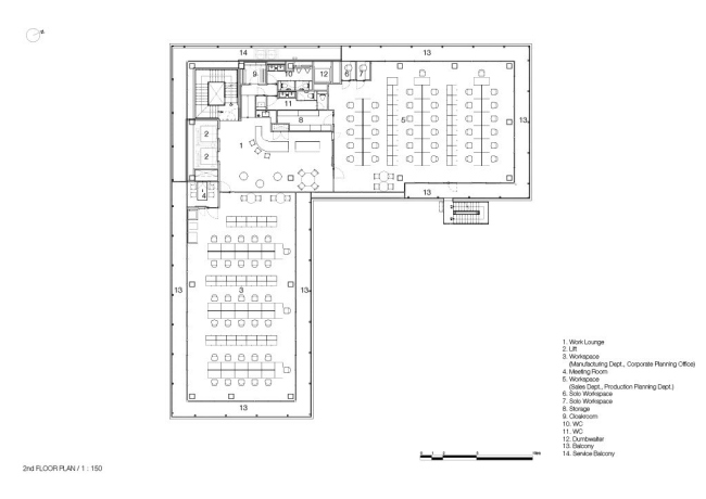
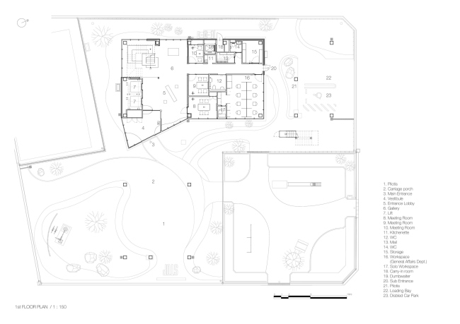
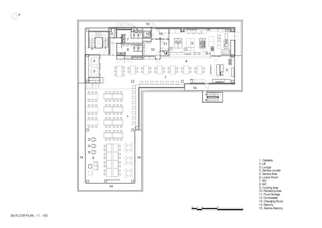
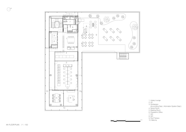
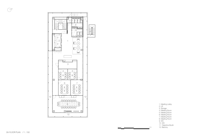
© Key Operation Inc. / Architects
Штаб-квартира Juzen Chemical Corporation в Тояме
© Key Operation Inc. / Architects
Штаб-квартира Juzen Chemical Corporation в Тояме
© Key Operation Inc. / Architects
Штаб-квартира Juzen Chemical Corporation в Тояме
© Key Operation Inc. / Architects
Штаб-квартира Juzen Chemical Corporation в Тояме
© Key Operation Inc. / Architects
Штаб-квартира Juzen Chemical Corporation в Тояме
© Key Operation Inc. / Architects
Штаб-квартира Juzen Chemical Corporation в Тояме
© Key Operation Inc. / Architects

Избранные архитекторы:

  • Оскар Нимейер
  • Норман Фостер
  • Рем Колхас
  • Питер Айзенман
  • Кэнго Кума
  • Рафаэль Виньоли
  • Кристиан де Портзампарк
  • Джон Поусон
  • Ричард Майер

Проект из каталога (случайный выбор)

«Путь паломника»
Алехандро Аравена, Татьяна Бильбао, – 2011
«Путь паломника»

Избранные постройки:

  • Городской суд Антверпена
  • Здание администрации департамента Буш-дю-Рон
  • Монастырь Нови Двур
  • Национальный стадион Японии
  • Жилой комплекс 8 HOUSE
  • Музей современного искусства Серралвеса
  • Выставочный павильон West Bund Orbit
  • Корпус Investcorp Центра Ближнего Востока Колледжа Сент-Энтони Оксфордского университета
  • Здание Lloyds

Зарубежные новости