Начальная школа с изучением иностранных языков Лиюань
Фото © Arch-Exist存在建筑/
Vector Architects直向建筑
Еще в 2000-м место, где теперь стоит школа, – в центральном округе Футянь, где штаб-квартиры органов власти соседствуют с банками и биржами – занимали склады и фабрики, но с развитием города их вывели на окраины, а участок использовали для свалки грунта. Так здесь образовался холмик, на котором выросла целая роща китайского баньяна (фикуса мелкоплодного), известного своей неприхотливостью.
Начальная школа с изучением иностранных языков Лиюань
Фото © Arch-Exist存在建筑/
Vector Architects直向建筑
Когда возник план строительства здесь начальной школы, архитекторы, учитывая дефицит зелени в городской среде, задумались о сохранении рощи. Помимо прочего, соседство с «маленьким лесом», как его называют авторы проекта, благотворно для учеников.
Начальная школа с изучением иностранных языков Лиюань
Фото © Arch-Exist存在建筑/
Vector Architects直向建筑
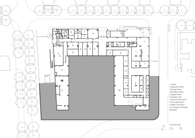
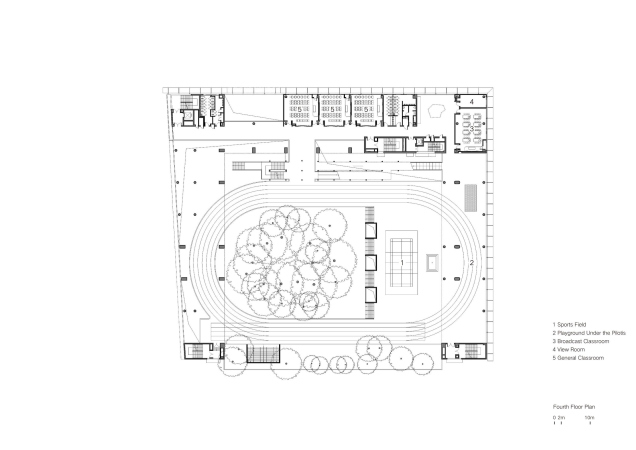
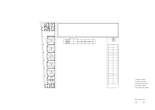
Так вместо привычного для школ гребенчатого плана возникла П-образная композиция из сравнительно высоких корпусов, учитывающая и расположение рощи, и небольшую площадь участка (менее 1 га), и перепад высот в 5 м по направлению север-юг. Западная сторона оставлена открытой.
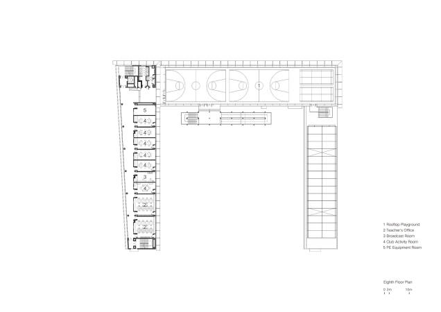
Роща оказалась в центре образовательного комплекса из 36 классов (по шесть на каждый год обучения) с разнообразной инфраструктурой. Спортивные объекты размещены по вертикали. Самый заметный, беговая дорожка, поднята на бетонных опорах ближе к кронам 20-метровых деревьев. Часть игровых площадок устроено на полуподземном ярусе, а остальные – на крыше.
Начальная школа с изучением иностранных языков Лиюань
Фото © DONG建筑影像/ Vector Architects直向建筑
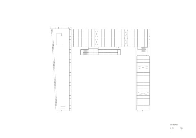
Общественные пространства на крыше закрыты навесами; окна классов защищены от дневного солнца панелями из высокоэффективного бетона (UHPC).
Начальная школа с изучением иностранных языков Лиюань
Фото © Arch-Exist存在建筑/
Vector Architects直向建筑
Начальная школа с изучением иностранных языков Лиюань
Фото © Arch-Exist存在建筑/
Vector Architects直向建筑
Начальная школа с изучением иностранных языков Лиюань
Фото © Arch-Exist存在建筑/
Vector Architects直向建筑
