Бани на горячем источнике Яньши в горах Улиншань
Фото © Liu Guowei 刘国威/ Vector Architects直向建筑
Vector Architects уже сотрудничали с Aranya на созданном этой компанией курорте Аранья в Циньхуандао, на берегу Желтого моря, опять же популярном у пекинцев: по проектам этих архитекторов здесь возвели библиотеку и небольшой концертный зал. Бани в Яньши, как и они, сооружены из бетона, но бучардированного, с фактурной поверхностью.
Бани на горячем источнике Яньши в горах Улиншань
Фото © Liu Guowei 刘国威/ Vector Architects直向建筑
Чтобы как можно меньше внедряться в природный ландшафт, авторы проекта приподняли свое сооружение на 10 колоннах. Только сервисный узел в восточной части полноценно касается земли и даже уходит под нее: подвальный этаж охватывает 200 м, почти половину общей площади бань. Узел и основной объем здания к западу соединены на каждом уровне мостом-коридором.
Вертикальная организация пространств позволила уменьшить пятно застройки, то есть сократить вмешательство в окружающую среду; переход с этажа на этаж также создает новые впечатления для посетителей, которые видят один и тот же пейзаж – скалы рядом, долину и горный хребет за ней в отдалении – с разных точек зрения.
Бани на горячем источнике Яньши в горах Улиншань
Фото © Liu Guowei 刘国威/ Vector Architects直向建筑
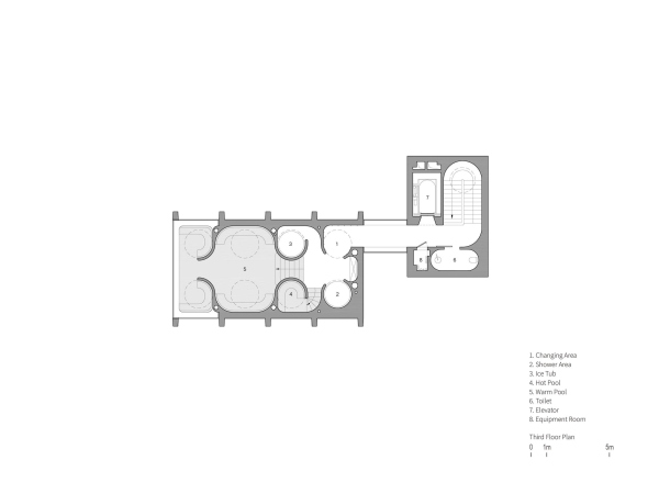
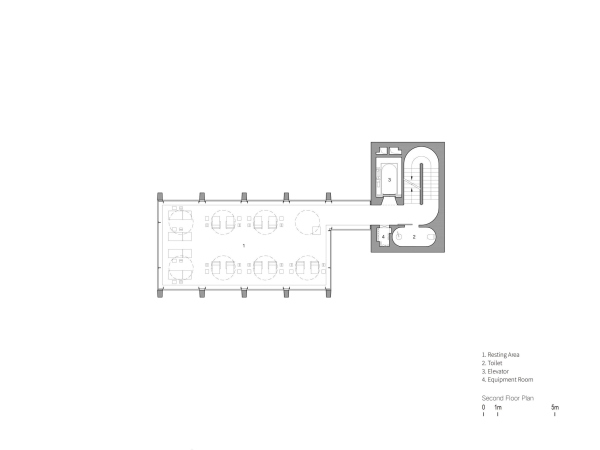
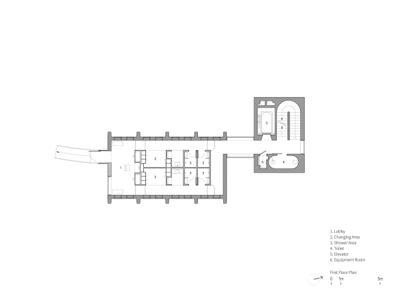
В первый этаж встроен объем из древесины тика, где размещены стойка администратора, кладовка, раздевалка и душевая. Выше устроен остекленный салон-лаундж, где предлагается отдохнуть с видом на кроны тополей; в теплую погоду окна можно открыть. На третьем уровне находятся бассейны с термальной водой разных температуры и режима подачи; они освещаются сверху, через 8-метровые световые колодцы. Бучардированная поверхность этих шахт смягчает освещение. О живописном окружении не дадут здесь забыть узкие ленточные окна на западном фасаде.
Бани на горячем источнике Яньши в горах Улиншань
Фото © Tian Fangfang 田方方/
Vector Architects直向建筑
Бани на горячем источнике Яньши в горах Улиншань
Фото © Tian Fangfang 田方方/
Vector Architects直向建筑
Бани на горячем источнике Яньши в горах Улиншань
Фото © Tian Fangfang 田方方/
Vector Architects直向建筑
