Отель «Сижан»
Фото © Luo Canhui / Vector Architects
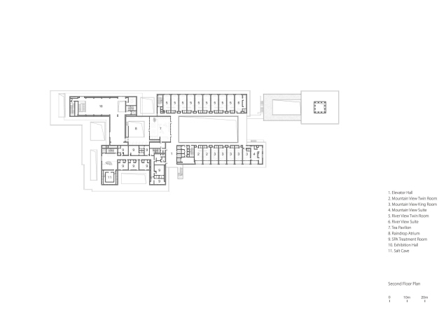
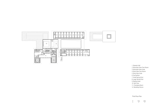
Отель находится в ландшафтной зоне Даюцю на озерном берегу, в границах города Чжоуте окружного города Исин, в свою очередь входящего в городской округ-мегаполис Уси провинции Цзянсу. Ландшафт и традиционный уклад жизни здесь сформированы водой: это дельта реки Янцзы, а Тайху – третье по величине пресноводное озеро Китая. Поэтому в этих местах процветают рыболовство и рыбоводство, и участок «Сижана» граничит с прудами для разведения рыбы.
Отель «Сижан»
Фото © Luo Canhui / Vector Architects
Поэтому часть его дворов занята водоемами, в том числе каскадными, а другая – озеленена: во влажном климате растительность процветает. Так, здесь есть двор с камфорным деревом – чрезвычайно важным для китайской культуры. Другой двор, высотой 16 м, посвящен дождевым каплям, которые попадают в него через огромную бронзовую воронку, уже покрывшуюся патиной.
Отель «Сижан»
Фото © Luo Canhui / Vector Architects
Главную роль в проекте играет бетон, однако им архитекторы не ограничились: мощение выполнено из натурального камня, фасады покрыты кирпичом, коридоры с номерами закрыты экранами из медной сетки. Живописные атмосферные эффекты отражает и усиливает декоративная 24-метровая башня из стеклоблоков. Отдельное приключение для гостей – «Соляная пещера», облицованная плиткой из розовой гималайской соли.
Отель «Сижан»
Фото © DONG / Vector Architects
Отель «Сижан»
Фото © Luo Canhui / Vector Architects
Отель «Сижан»
Фото © Luo Canhui / Vector Architects
Отель «Сижан»
Фото © Luo Canhui / Vector Architects
Отель «Сижан»
Фото © Vector Architects
